
Commercial property to rent • 390 m² without real estateStockumer Straße 28, , North Rhine-Westphalia
Stockumer Straße 28, , North Rhine-WestphaliaPublic transport 3 minutes of walkingThis high-quality storage area is located in the Intechlo Building B14, an established and representative commercial property in the Witten Technology Park. The building impresses with its solid steel-concrete construction, professional infrastructure, and a high level of security.
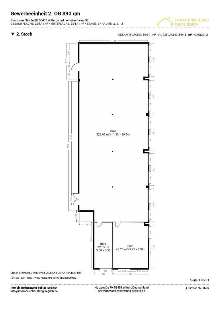
The approximately 390 m² storage unit on the 2nd floor offers optimal conditions for companies that value security, cleanliness, accessibility, and flexibility. Thanks to the generous layout, the space can be individually adapted to different storage concepts and used ideally.
Delivery is conveniently made via the freight elevator; alternatively, a modern passenger elevator is available. The access is barrier-free. The currently installed carpet can be easily removed. Underneath, there is a smooth, robust concrete floor that is ideal for storage and logistics purposes.
The Intechlo Building B14 is situated in an excellent location at the Bochum/Dortmund/Hagen motorway interchange, ensuring quick accessibility for customers and employees. The motorway ramp of the A44 towards Bochum and Dortmund is only a few minutes away. The Witten-Annen S-Bahn station can be reached on foot in about 3-5 minutes, connected by the main line S33, which links the neighboring cities of Bochum, Dortmund, and Hagen.
This optimal connection makes the property an ideal location for companies that depend on fast and easy accessibility.
Amenities & Added Value
Security & Service
- 24-hour access control
- Security and porter service
- Mail acceptance and visitor control
- Janitor service
- Well-maintained, representative surroundings
Technology & Comfort
- Optionally heated area (via gas central heating)
- High-quality lighting
- Data/IT cabling
- Fiber-optic internet available
- Fitted kitchen provided
- Ladies’, men's, and accessible restrooms
- Multiple weekly cleaning of the common areas
Sustainability
- Photovoltaic system on the roof
- Energy-efficient building technology
Viewing Appointments
Please leave an inquiry for further information or to schedule a viewing appointment, or contact us by phone.
Additional Information
The energy certificate will be available for viewing.
All information is provided to the best of our knowledge. Errors and interim rentals are reserved. This exposé is preliminary information; only the executed lease agreement is legally binding. No liability can be assumed for the accuracy and completeness.
Imprint
Information in accordance with § 5 TMG
Real Estate Consulting Tobias Segieth
Holzstraße 79
58453 Witten
Phone: +49 2302 7601670
Email: info@immobilienberatung-segieth.de
Owner:
Tobias Segieth
Legal form:
Sole proprietorship
Supervisory Authority:
Ordnungsamt der Stadt Witten
Marktstraße 16
58452 Witten
https://www.witten.de/rathaus-service/verwaltung/aemter-dezernate/dezernat-3/ordnungsamt/
License granted in accordance with § 34c of the Trade Regulation Act:
Ennepe-Ruhr-Kreis
Hauptstraße 92
58332 Schwelm
Professional Title and Professional Regulations
Professional Title:
Real Estate Broker
Responsible Chamber:
IHK Mittleres Ruhrgebiet
Ostring 30-32
44787 Bochum
Awarded in:
Germany
EU Dispute Resolution
The European Commission provides a platform for online dispute resolution (ODR): https://ec.europa.eu/consumers/odr/.
Our email address can be found in the imprint above.
Consumer Dispute Resolution/Universal Dispute Settlement Body
We are not willing or obliged to participate in dispute resolution proceedings before a consumer dispute settlement body.
Central Contact Point under the Digital Services Act - DSA (Regulation (EU) 2022/265)
Our central contact point for users and authorities according to Art. 11, 12 DSA can be reached as follows:
Phone: +49 2302 7601670
Email: info@immobilienberatung-segieth.de
Property characteristics
| Age | Over 5050 years |
|---|---|
| Condition | After reconstruction |
| Listing ID | 982456 |
| Price per unit | €5 / m2 |
| Available from | 28/01/2026 |
|---|---|
| Floor | 2. floor out of 2 |
| Land non-residential space | 390 m² |
What does this listing have to offer?
| MHD 3 minutes on foot |
What you will find nearby
Still looking for the right one?
Set up a watchdog. You will receive a summary of your customized offers 1 time a day by email. With the Premium profile, you have 5 watchdogs at your fingertips and when something comes up, they notify you immediately.











