
Flat for sale 3+1 • 75 m² without real estateFrankfurt am Main Gutleutviertel Hessen 60329
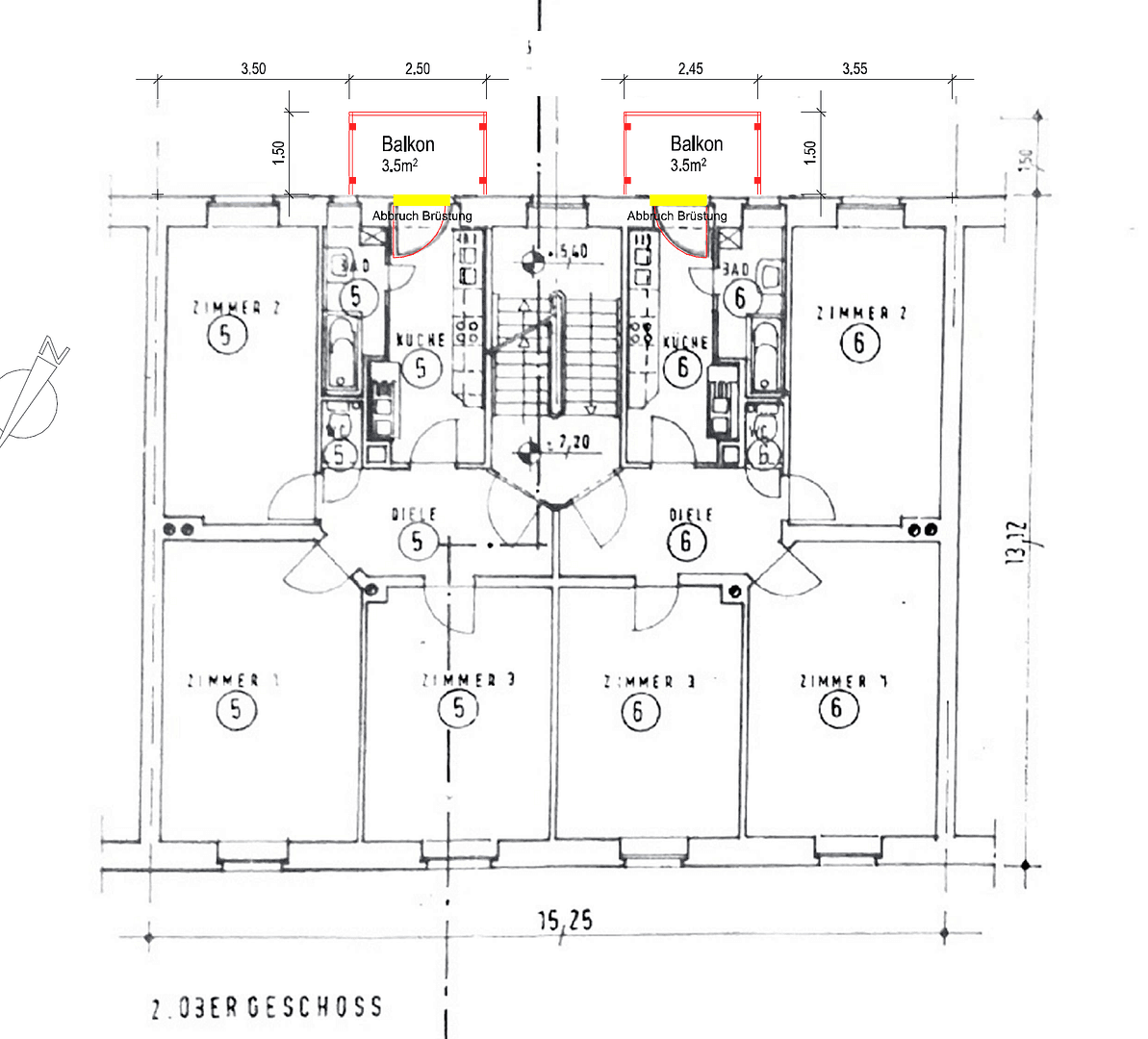
This bright, light-filled apartment is located on the second floor of a very well-maintained historic building and impresses with its unique charm. It is a very well-kept apartment featuring three lovely rooms (each approximately 20 m² with access from the hallway), a fitted kitchen, and parquet flooring. From the kitchen you can access a bathroom, and a separate WC is accessible from the hallway. The property is situated in a house built in 1910 and is heated by a gas-fired individual heating system. The apartment has an energy efficiency class C – no immediate heating conversion measures are required despite the building's age. Additionally, a storage room in the basement is available.
Currently, the apartment is rented at a monthly rate of €930.00 (with very high potential for rental increases), but it can be made available at short notice upon the buyer's request, making it suitable for both owner-occupation and investment purposes. We are also selling similar (mirror image) apartments on the first and fourth floors – please get in touch.
We kindly ask that only those interested who have secured financing contact us, i.e., those who have already had discussions with a bank or financial advisor and whose creditworthiness/net income is sufficient to finance the property.
The sale is directly from the owners and free of commission for the buyer.
The property is located on a residential street in Frankfurt am Main’s Gutleutviertel near Baseler Platz, just a 5-minute walk to the Main. Due to its central location and the large number of current and upcoming development projects (e.g., the new headquarters of Nestlé Germany), which contribute to the modernization and urbanization of the area around Baseler Platz, this location holds very high potential for value appreciation. In the immediate vicinity, you will find a number of restaurants, cafés, bakeries, doctors, and a shopping center. Several parks and green spaces, bars, bookstores, fitness studios, and fashion stores can also be reached on foot. The main train station is 700 meters away.
• Oak parquet flooring
• High ceilings typical of historic buildings (3.50 m), some with stucco elements
• Fitted kitchen
• Daylight bathroom (with bathtub)
• Permission for the addition of balconies has been granted
• Basement storage
• Bicycle parking space
• Gas water heater (gas-fired individual heating system) from 2021
PLEASE, NO BROKER INQUIRIES.
Property characteristics
| Age | Over 5050 years |
|---|---|
| Layout | 3+1 |
| Listing ID | 985065 |
| Usable area | 75 m² |
| Condition | After reconstruction |
|---|---|
| Floor | 2. floor out of 6 |
| EPC | C - Economical |
| Price per unit | €6,200 / m2 |
What does this listing have to offer?
| Balcony | |
| MHD 0 minutes on foot |
| Basement |
What you will find nearby
Still looking for the right one?
Set up a watchdog. You will receive a summary of your customized offers 1 time a day by email. With the Premium profile, you have 5 watchdogs at your fingertips and when something comes up, they notify you immediately.
















