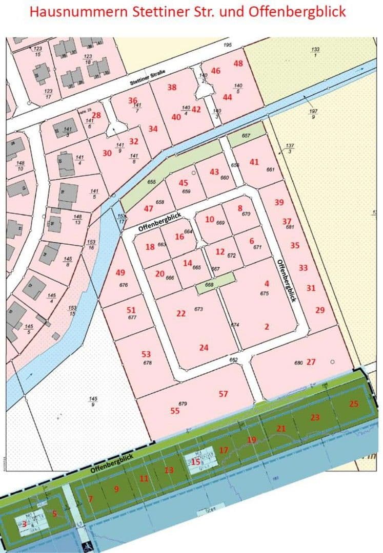
Plot for sale • 496 m² without real estateOffenbergblick 16, , Hesse
Offenbergblick 16, , HessePublic transport 3 minutes by carThe offered property with an area of 496 m² is located in the WA1 zone of the Offenbergblick new development area, Development Plan 67, Sudheimer Feld Ost in 34369 Hofgeismar, the core city.
Floor Space Index (GRZ): 0.4
Building Coverage (GFZ): 0.8
Building height: max. 9.0 m in total
2 full floors plus an attic
open construction style
The sale of the property is handled commission-free through k2s Projektentwicklungs GmbH.
The Offenbergblick new development area is situated in a central yet nature-adjacent location in the beautiful south of Hofgeismar, near the Albert-Schweitzer School!
A wide array of shopping, service, leisure, and dining options are nearby, as well as a well-equipped building and DIY market!
Several kindergartens, primary schools, a comprehensive school, and a renowned upper-level grammar school, along with vocational and special education schools, are also located in Hofgeismar.
Additionally, the historic pedestrian zone of the timber-framed town of Hofgeismar—just a 13-minute walk away—completes this offering for both daily needs and various street and city festivals. Hofgeismar boasts comprehensive medical care provided by various doctors’ offices, the district hospital, several day care centers, and physiotherapy practices.
Public transportation is within walking distance.
Thanks to the Regiotram at the nearby train station, excellent local transit connections are available in both directions towards Kassel and Warburg.
Property characteristics
| Listing ID | 984065 |
|---|---|
| Price per unit | €250 / m2 |
| Land space | 496 m² |
|---|
What does this listing have to offer?
| MHD 3 minutes by car |
What you will find nearby
Still looking for the right one?
Set up a watchdog. You will receive a summary of your customized offers 1 time a day by email. With the Premium profile, you have 5 watchdogs at your fingertips and when something comes up, they notify you immediately.







































