Plot for sale • 1175 m² without real estateSchillerstraße 17-19, , Hesse
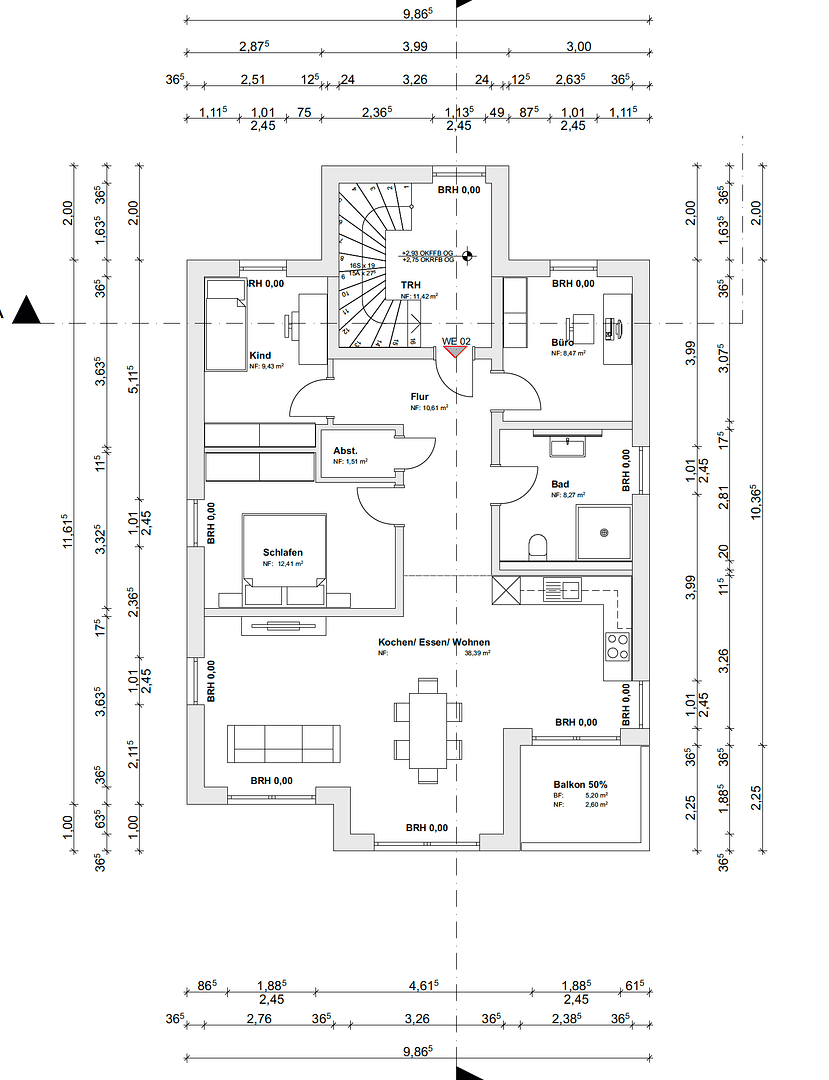
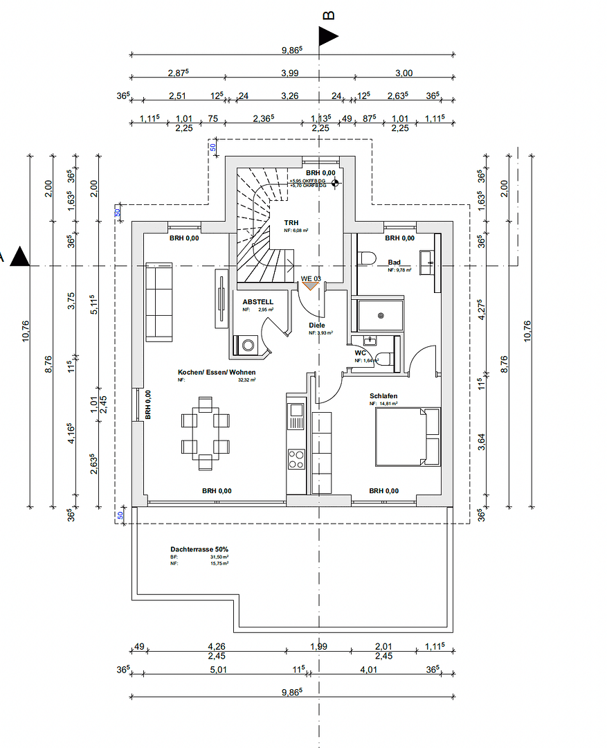
Schillerstraße 17-19, , HessePublic transport 4 minutes of walkingThe offered plot also includes two approved multi-family houses with a total of six residential units.
Building permit, structural analysis, and thermal insulation report are all fully available.
Construction can commence immediately, resulting in significant time savings compared to similar projects.
The building permit has been valid since 2022, making financing possible, including a KfW-55 promotional loan with an effective annual interest rate of currently approximately 1.90% since December 16, 2025.
The offered property is located in Langendernbach, a well-established and family-friendly community in the Limburg-Weilburg district of Hesse.
Langendernbach impresses with its quiet, nature-near setting combined with excellent regional connectivity.
The town is situated between Limburg an der Lahn and Montabaur, offering an attractive residential location for commuters, families, and investors.
Good access to the B49 and the A3 (Cologne–Frankfurt).
Quick access to the cities of Limburg, Montabaur, and Westerburg.
ICE stations in Montabaur and Limburg are reachable in approximately 15–20 minutes.
Good bus connections to the surrounding towns.
Kindergarten and primary school are located directly in the town!
Secondary schools are located in the neighboring cities, with shopping facilities, doctors, pharmacies, and banks in the nearby area.
There is a wide variety of club and leisure activities available.
Property characteristics
| Available from | 26/01/2026 |
|---|---|
| Land space | 1,175 m² |
| Listing ID | 983954 |
|---|---|
| Price per unit | €144 / m2 |
What does this listing have to offer?
| MHD 4 minutes on foot |
What you will find nearby
Still looking for the right one?
Set up a watchdog. You will receive a summary of your customized offers 1 time a day by email. With the Premium profile, you have 5 watchdogs at your fingertips and when something comes up, they notify you immediately.







