
Flat to rent 2 bedroom • 68 m² without real estate, Bavaria
, BavariaPublic transport 1 minute of walkingThe cozy 2-room apartment on the ground floor of a single-family home with an accessory apartment in Sulzbach a. Main invites you to feel at home. The house is heated energy-efficiently with a geothermal heat pump and a photovoltaic system. This concept is not only sustainable, it also saves you considerable additional costs.
Features
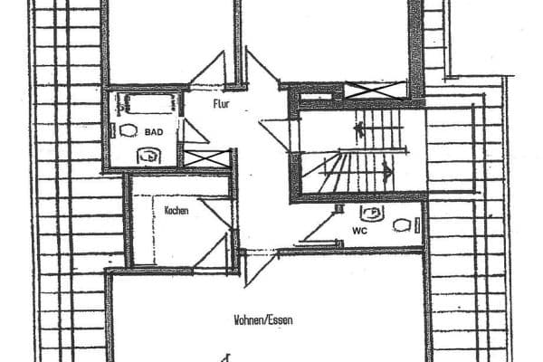
• 2 bright rooms with a storage room, cellar, and terrace.
• The kitchen is dismantled by the previous tenant and therefore cannot be taken over.
• Daylight bathroom with bathtub, shower, and WC.
• Tiled and laminate floors, as well as underfloor heating, ensure comfort.
• Practical storage room with a washing machine connection.
• TV cable connection is available.
• A fiber-optic connection is currently being installed and will be available shortly.
Commission-free with a move-in date of 01.03.2026 – we sign an indexed rental contract to ensure long-term tenant security. Contact us for a viewing!
Sulzbach am Main, with its approximately 8,000 inhabitants, is a market town in the Unterfranken district of Miltenberg and is located about 7 km south of Aschaffenburg on the western edge of the Spessart. In addition to good infrastructure with several markets and shops, the town is home to various doctors and dentists, kindergartens and nurseries, a primary and secondary school, as well as numerous retail stores, bakeries, and butcher shops. The unique, nature-oriented location and numerous clubs offer plenty of opportunities for leisure activities. The connection to public transport by bus and train is excellent, with a bus stop just a few meters away.
Property characteristics
| Age | Over 5050 years |
|---|---|
| Layout | 2 bedroom |
| Usable area | 68 m² |
| Condition | Good |
|---|---|
| Listing ID | 983597 |
| Price per unit | €12 / m2 |
What does this listing have to offer?
| MHD 1 minute on foot |
What you will find nearby
Still looking for the right one?
Set up a watchdog. You will receive a summary of your customized offers 1 time a day by email. With the Premium profile, you have 5 watchdogs at your fingertips and when something comes up, they notify you immediately.










