
Flat for sale 3+1 • 70 m² without real estateGroße Pranke 7b, , Lower Saxony
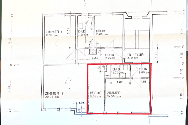
Apartment No. 14 on the ground floor (right, raised ground floor) with a living area of 69.4 m² and a good layout – comprising one bedroom, a living room with balcony, a tiled bathroom with WC, a children's room, and a kitchen with fitted kitchen. Also included with this apartment is a moderately sized basement room. The building was constructed in 1965 and has undergone regular maintenance. Since January 1, 2026, the monthly maintenance fee has been €440. The building is supplied with district heating, and hot water is generated with an instantaneous water heater.
The multi-family house consists of a centrally located entrance, above which there are a total of 6 apartments on 3 floors (ground floor to second floor), with two apartments arranged on each level.
An energy performance certificate from 2019 is available, assigning the property an annual energy consumption of 126 kWh/m².
The local infrastructure is very good…
Kindergartens, schools, specialist and general practitioners, as well as shopping opportunities, are available in the immediate vicinity. Connections with public transportation (buses and trains) are excellent. Hannover/Langenhagen Airport and the city center of Hannover can be reached by car in 15 minutes.
For everyday shopping, there is a Netto within walking distance, and for larger purchases, all major supermarkets (Kaufland, Edeka, Shopping Center) are available in Garbsen. The forest in the Marienwerder district invites you for walks.
The apartment was renovated before the second-to-last tenant change. A fitted kitchen was installed, laminate flooring was laid in the living room, children’s room, and bedroom, and floor tiles were installed in the bathroom, hallway, and kitchen. In 2023, the staircase was renovated and a new entrance door for the building and apartment was installed. All windows are equipped with electric blinds. (Not standard)
Property characteristics
| Age | Over 5050 years |
|---|---|
| Layout | 3+1 |
| EPC | D - Less economical |
| Price per unit | €2,686 / m2 |
| Condition | Good |
|---|---|
| Listing ID | 983490 |
| Usable area | 70 m² |
What does this listing have to offer?
| Balcony | |
| MHD 3 minutes on foot |
| Basement |
What you will find nearby
Still looking for the right one?
Set up a watchdog. You will receive a summary of your customized offers 1 time a day by email. With the Premium profile, you have 5 watchdogs at your fingertips and when something comes up, they notify you immediately.






