House for sale • 232 m² without real estate, Lower Saxony
, Lower SaxonyPublic transport 2 minutes of walking • ParkingThe property, built in 1937, is located on a 576 sqm freehold plot and is not under historical preservation. It was expanded with an extension in 1997 and has been continuously renovated. It is suitable both as a single-family home (with some minor conversion measures advisable) and as a three-family house for investment purposes. A combination of owner-occupation and rental is also possible.
Currently, the property is divided into three residential units, of which only the ground floor is rented out. The basement was not re-let due to the planned sale, and the lease for the attic was terminated on April 30, 2026 and will not be re-let. All apartments have separate electricity and water meters.
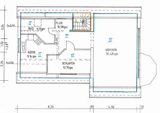
The rental income for the entire property was recently 29,154 EUR (27,900 EUR for the three residential units plus 1,254 EUR for three parking spaces). The living area is approximately 230 sqm. The ground floor rent increases in line with the consumer price index.
All apartments come with kitchens that are included in the purchase price. Each apartment can be accessed via its own separate external entrance. There are separate meters for electricity, water, and heating for each apartment, which are freely accessible in the basement. In addition, beside each apartment there is a usable space of about 35 sqm in the basement that the tenants use for storage.
Besides the three apartments, there is an uninhabited part of the building that can potentially be converted into living space. The expandable area is about 50 sqm.
The property is located in Adendorf, Artlenburger Landstr. 8. The center of Lüneburg can be reached by car in 5 minutes. A bus stop is only about 100 m from the house, from which the main train station is accessible within 10 minutes. Within a few minutes, you can get onto the A39 and be in Hamburg within 30 minutes.
All daily shops are in the immediate vicinity. Adendorf, with its over 10,000 inhabitants, has very good infrastructure.
Property characteristics
| Age | Over 5050 years |
|---|---|
| Listing ID | 983363 |
| Usable area | 232 m² |
| Total floors | 3 |
| Condition | Good |
|---|---|
| EPC | F - Very uneconomical |
| Land space | 579 m² |
| Price per unit | €2,155 / m2 |
What does this listing have to offer?
| Balcony | |
| Parking | |
| Terrace |
| Basement | |
| MHD 2 minutes on foot |
What you will find nearby
Still looking for the right one?
Set up a watchdog. You will receive a summary of your customized offers 1 time a day by email. With the Premium profile, you have 5 watchdogs at your fingertips and when something comes up, they notify you immediately.



































