
House for sale 4+1 • 116 m² without real estate, Baden-Württemberg
, Baden-WürttembergPublic transport 1 minute of walking • ParkingBeautiful end-of-terrace house available for private purchase.
The three-story, welcoming, and well-maintained end-of-terrace house impresses with its upscale interior finish.
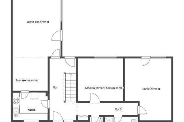
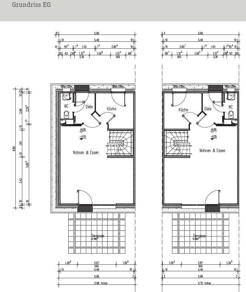
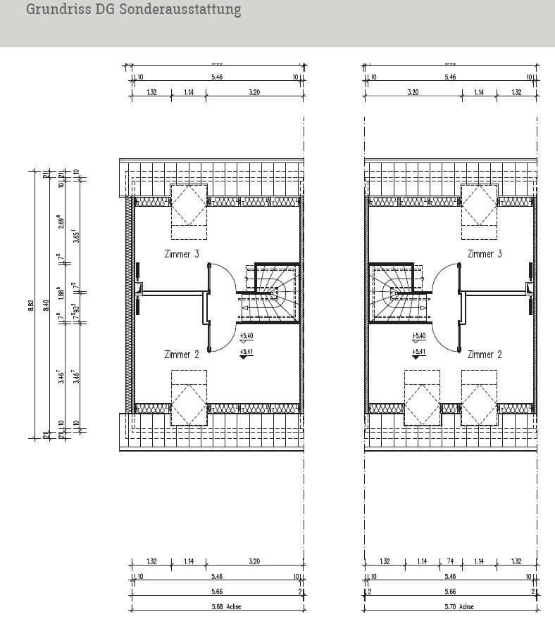
The house, offering 116 m² of living space, features a total of 4 rooms (ground floor: open plan living-dining area; first floor: bedroom; top floor: converted with 2 rooms), a daylight bathroom, a daylight guest WC, a utility room, a storage room, a terrace, a garden with a garden house, as well as 2 parking spaces right at the house.
Quality
Solid construction: 10 cm concrete, 20 cm insulation.
Soundproofing: no shared walls with neighbors – each house has its own walls.
Optimal thermal insulation achieved by insulating the heat transfer pump (WLG) at 0.035 W/(m*K), including a graphite component for effective fire protection.
Well-thought-out layout to accommodate your individual living preferences.
Living Comfort
Spacious, bright rooms (ceiling height: 2.50 m on both the ground floor and first floor).
High ceilings in the attic (up to 3.10 m ceiling height) thanks to the open roof slope with large roof windows.
Daylight bathroom with a walk-in shower, hexagon bathtub, and double washbasin.
Separate guest WC.
Garden with a large terrace and garden house.
Combined heat and power plant for energy supply, operated using district heating.
Currently, the house is rented. The tenancy ends on January 31, 2026.
Welcome to Weinheim – the attractive Two-Castles City on the Bergstraße that perfectly combines urban living, a historical atmosphere, and nature-oriented recreation. The property is located in a highly sought-after area with excellent infrastructure and a high quality of life.
The charming old town with its historic alleys, cozy cafés, and diverse shopping opportunities is within walking distance. In the immediate vicinity, you will find numerous daily amenities: supermarkets, bakeries, pharmacies, doctors, restaurants, as well as two shopping centers offering a wide range of fashion, books, and specialty stores.
Numerous green spaces and parks, such as the castle park or the exotic forest, invite you for a stroll, jog, or a moment of relaxation. Families benefit from nearby playgrounds and leisure facilities, while sports enthusiasts can make full use of fitness studios, clubs, or the well-developed cycling and hiking paths. Culturally, Weinheim has much to offer – with events, museums, and a varied program set against a historical backdrop.
The transport connections are excellent: In just a few minutes, you can reach the A5 or A659 highways, which provide quick access to the Rhine-Neckar metropolitan region. The cities of Mannheim, Heidelberg, and Darmstadt are equally accessible, as is Frankfurt International Airport, located approximately 40 minutes away. Weinheim train station offers direct access to public transportation.
Low-energy house.
Daylight bathroom as well as guest WC.
Laundry room and storage room.
Digital SAT system and telephone/internet preparation in all rooms.
Garden with a large terrace and garden house.
Two parking spaces directly at the house.
Property characteristics
| Age | Over 5050 years |
|---|---|
| Condition | Good |
| Listing ID | 982927 |
| Usable area | 116 m² |
| Total floors | 3 |
| Available from | 01/02/2026 |
|---|---|
| Layout | 4+1 |
| EPC | A - Extremely economical |
| Land space | 195 m² |
| Price per unit | €4,267 / m2 |
What does this listing have to offer?
| Parking | |
| Terrace |
| MHD 1 minute on foot |
What you will find nearby
Still looking for the right one?
Set up a watchdog. You will receive a summary of your customized offers 1 time a day by email. With the Premium profile, you have 5 watchdogs at your fingertips and when something comes up, they notify you immediately.













