
Flat for sale 5+1 • 149 m² without real estateAm Gemeindeweiher 9, , Bavaria
Am Gemeindeweiher 9, , BavariaPublic transport 2 minutes of walking • ParkingThis generously spacious 5-room apartment is located on the 2nd floor (attic) of a three-family house that will soon undergo energy-efficient renovation. The apartment itself is bright, spacious, and family-friendly, and it impresses with an outstanding price-performance ratio.
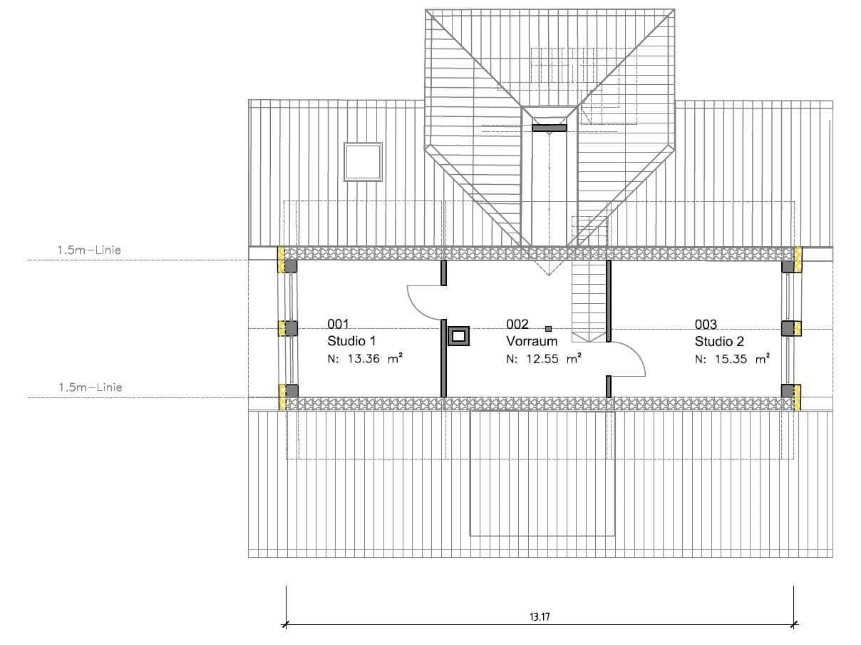
On the attic level, you have access to the following rooms for flexible use:
• Living/Dining area approx. 32.5 m² with optional access to the west balcony (approx. 16 m²)
• Bedroom approx. 22.1 m²
• Children’s room approx. 15.4 m²
• Bathroom with daylight approx. 7.7 m²
• WC approx. 2.2 m²
• Kitchen including a fitted kitchen with high-quality appliances (Siemens, Liebherr) approx. 11.6 m²
• Storage room 1.9 m²
• Hallway approx. 13.7 m² with access to the finished loft
The finished loft offers a real bonus in space (approx. 41.8 m²), comprising two additional, stylishly designed rooms – ideal as a study, children’s room, or hobby area.
The apartment convinces with an outstanding price-performance ratio that allows you to move in immediately. Optionally, you have the opportunity to redesign walls and floors on your own.
Note: All area measurements are according to DIN 277.
The apartment is located in an area surrounded by well-maintained residential buildings in Herzogenaurach in the Niederndorf district.
Everyday shopping is very convenient.
A bakery, a butcher, several doctors, and a pharmacy are within walking distance.
Two bus stops (toward Herzogenaurach and Erlangen) are reachable on foot in just a few minutes.
Approximately 2 km away is the city center of Herzogenaurach, and in about 8 km you’ll find the center of Erlangen. Nuremberg and Fürth can be reached by car in approximately 15–20 minutes.
Global companies such as Adidas, Puma, and Schaeffler are also in the immediate vicinity and can be conveniently reached by bicycle.
The following, partially energy-related renovations will still be carried out by the seller and are already included in the stated purchase price:
• Energy-efficient facade insulation including new facade plaster and exterior window sills
• Thermally insulating plastic windows with triple glazing and new interior window sills
• Exterior roller shutters with swivel motorized controls
• Apartment entrance door
• Main entrance door
• Gutters and downpipes
• 2 external parking spaces
• Optional purchase of the exterior balcony for an additional 20,000 euros
• Optional purchase of a garden portion
Apartment equipment:
• Includes a fitted kitchen with high-quality appliances (Siemens, Liebherr)
• Includes a fireplace stove
• Attractive bathroom with a bathtub, shower, and skylight as well as connection possibilities for a washing machine and dryer
• Additional storage room
• Internal staircase to the spacious loft
Current condition of the apartment:
• Electrical installation complies with the currently valid VDE regulations
• Pipework is in accordance with the state of the art as of the construction year 1989
• WOLF oil central heating, built in 2015 (according to the Building Energy Act GEG 2024, this condensing boiler may still be operated with fossil fuels until December 31, 2044 – that is, for at least another 19 years)
Götz Immobilienentwicklung GmbH
Registered office: Ringstraße 31c, 91341 Röttenbach
Commercial Register: Amtsgericht Fürth, HRB 21673
Tax No.: 216/127/60001
Property characteristics
| Age | Over 5050 years |
|---|---|
| Layout | 5+1 |
| Listing ID | 982542 |
| Price per unit | €2,671 / m2 |
| Condition | Good |
|---|---|
| Floor | 2. floor out of 1 |
| Usable area | 149 m² |
What does this listing have to offer?
| Balcony | |
| MHD 2 minutes on foot |
| Parking |
What you will find nearby
Still looking for the right one?
Set up a watchdog. You will receive a summary of your customized offers 1 time a day by email. With the Premium profile, you have 5 watchdogs at your fingertips and when something comes up, they notify you immediately.










