
Flat for sale 3+kk • 110 m² without real estateberlin Schmargendorf Berlin 14193
berlin Schmargendorf Berlin 14193Public transport 1 minute of walkingThe condominium for sale is located in the quiet section of a splendid historic Berlin building from 1909 that faces the inner courtyard. Situated on the elegant Caspar-Theyß-Straße in the exclusive Grunewald/Schmargendorf district, this property combines the classic charm of an old building with one of the city’s most desirable residential addresses. The entire building is in exceptionally well-maintained condition; the apartment itself has been renovated to a high standard and is ready for immediate occupancy.
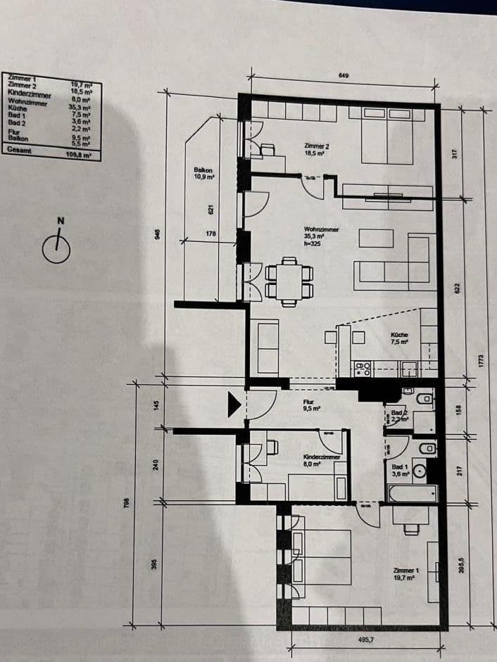
On approximately 110 m² of living space, a stylish floor plan unfolds featuring 3.5 rooms, two modern bathrooms, a high-quality fitted kitchen, and a spacious balcony overlooking the green, absolutely quiet inner courtyard. The dark, genuine hardwood parquet flooring emphasizes the elegant ambience and gives the apartment a timeless, refined atmosphere. The current laundry room offers potential for individual re-design – for example, it could be converted into an exclusive dressing room, home office, or comfortable guest room.
The high-quality fitted kitchen meets high demands and invites both culinary evenings and convivial moments. The spacious living and dining room impresses with its harmonious spatial effect and becomes the representative centerpiece of everyday life. The two modern bathrooms create a comfortable, high-quality living experience – ideal for couples, discerning singles, families, or shared apartments.
A gas central heating system ensures enjoyable living comfort in every season. An outdoor parking space can be rented additionally upon request. The entire property conveys an extremely well-kept, upscale impression and underlines the representative character of this property.
The sale is conducted on behalf of a private individual.
No inquiries from brokers will be entertained.
Charlottenburg-Wilmersdorf – Grunewald is characterized by its moderate population density and a pleasant age structure. Public transport connections are good, with the S-Bahn line S7 as well as bus lines 186 and X10 in the immediate vicinity. The neighborhood is known for its safety and its attractive surroundings, with many single-family houses and green spaces. The proximity to Wannsee and numerous parks makes Grunewald an ideal place of residence for nature lovers and active individuals.
The residential area near Bismarckplatz is one of the most sought-after and greenest quarters in southwest Berlin. The environment is defined by historic villa architecture, mature trees, and a quiet, upscale living atmosphere. Despite its tranquil setting, the location enjoys good public transport connections as well as access to the city’s road network. Shopping facilities for daily needs, dining options, and services are within walking distance. For longer shopping trips, the nearby Kurfürstendamm and KaDeWe are quickly accessible. The surrounding green areas, lakes, and extensive walking paths in the Grunewald offer high recreational quality and add a special residential value to the location.
• Quiet location in the inner courtyard-facing part of a representative historic building from 1909
• Desirable residential location on Caspar-Theyß-Straße (Grunewald/Schmargendorf)
• Fully renovated and ready for immediate occupancy
• Approximately 110 m² of living space with a stylish, efficiently usable floor plan
• 3.5 rooms with generous proportions
• Large balcony with a view of the green, absolutely quiet inner courtyard
• High-quality fitted kitchen for discerning cooking
• Spacious living and dining room with a representative spatial impression
• Two modern bathrooms with contemporary fittings
• Elegant dark genuine hardwood parquet flooring in the living areas
• High-quality white panel doors create stylish accents and emphasize the classic character of the old building
• Flexible additional space: laundry room usable as a dressing room, home office, or guest room
• Gas central heating for reliable living comfort
• Exceptionally well-maintained overall property with a high-quality appearance
• Private sale – no broker inquiries welcome
Energy certificate: available
Energy source: Gas
Type of heating: Central heating
Property characteristics
| Age | Over 5050 years |
|---|---|
| Condition | After reconstruction |
| Floor | 2. floor out of 4 |
| Usable area | 110 m² |
| Available from | 22/01/2026 |
|---|---|
| Layout | 3+kk |
| Listing ID | 981783 |
| Price per unit | €6,318 / m2 |
What does this listing have to offer?
| Balcony | |
| MHD 1 minute on foot |
| Basement |
What you will find nearby
Still looking for the right one?
Set up a watchdog. You will receive a summary of your customized offers 1 time a day by email. With the Premium profile, you have 5 watchdogs at your fingertips and when something comes up, they notify you immediately.





























