
Flat to rent 2+kk • 51 m² without real estateKolbenova, Prague - Vysočany
Kolbenova, Prague - VysočanyEquipped • LiftLiability insurance requiredVerification of debt-free status requiredInterested?
Communicate all private owners and save CZK 29,500 on commissions.
Architektonický loft s galerií | kompletně vybavený | Kolbenova
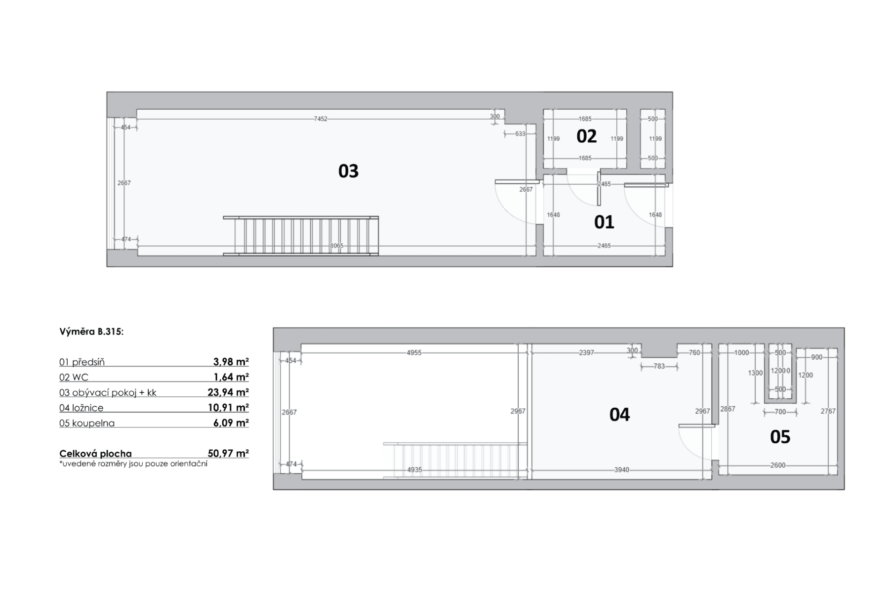
Nabízím k dlouhodobému pronájmu výjimečný loftový byt s galerií, navržený architektem a kompletně vybavený. Byt je řešen ve dvou úrovních, s vysokými stropy, kvalitními materiály a velmi příjemnou atmosférou pro dlouhodobé bydlení.
Byt je připraven k okamžitému nastěhování – stačí přijít s kufrem.
Co byt nabízí
otevřený obytný prostor s kuchyní
ložnice na galerii
samostatné WC
koupelna se sprchou
pračka a sušička
klimatizace, rekuperace
podlahové vytápění
venkovní žaluzie
designová svítidla
TV
Lokalita
metro Kolbenova pár minut chůze
klidná moderní čtvrť
rychlá dostupnost centra
Finanční podmínky
zálohy na služby: 3 000 Kč / měsíc
elektřina: přepis na nájemníka
kauce: 2 x nájem
Byt je vhodný pro jednotlivce nebo pár, nekuřáky.
Dlouhodobý pronájem vítán.
Property characteristics
| Available from | 19/01/2026 |
|---|---|
| Building construction | Brick |
| Fully furnished | Fully furnished |
| Listing ID | 981267 |
| EPC | B - Very economical |
| Usable area | 51 m² |
| Condition | New-build |
|---|---|
| Layout | 2+kk |
| Floor | 3. floor out of 5 |
| Ownership | Personal |
| Location | Quiet area |
| Price per unit | CZK 578 / m2 |
What does this listing have to offer?
| Lift |
What you will find nearby
Interested?
Communicate all private owners and save CZK 29,500 on commissions.
Still looking for the right one?
Set up a watchdog. You will receive a summary of your customized offers 1 time a day by email. With the Premium profile, you have 5 watchdogs at your fingertips and when something comes up, they notify you immediately.

















