
House for sale 5+1 • 152 m² without real estateSingerstr. 24 Weilheim Weilheim in Oberbayern Bayern 82362
Singerstr. 24 Weilheim Weilheim in Oberbayern Bayern 82362Public transport 1 minute of walking • ParkingThis modern terraced end-terrace house, built in 2020 using high-quality brick masonry, meets the energy-saving KfW-55 standard and offers you high comfort and energy efficiency. As the end unit in an upscale residential complex, you enjoy only one direct neighbor, which means extra privacy and a more spacious garden. Spread over four living levels, you have approximately 152 m² of living space (plus around 42 m² of usable space) – ideal for families with diverse needs. In total, you will find 5 rooms, including a spacious living-dining area, several bedrooms, and a converted studio in the attic that offers various possibilities. Floor-to-ceiling windows fill the rooms with light and create a harmonious transition between indoor and outdoor spaces. Enjoy the view from the rooftop terrace and the garden area, which invites you to relax on a covered terrace on the ground floor. Nearly new, energy-efficient, and stylish, this house presents itself as the perfect retreat for discerning families and owner-occupiers. See for yourself and experience how living dreams come true here.
The location of the house at Singerstraße 24 in Weilheim i. OB offers an ideal combination of tranquility and centrality. Located right by the Ammer river, you benefit from a nature-friendly environment with pleasant riverside walkways, play opportunities for children, and plenty of green spaces nearby. Despite the peaceful setting, the charming town center of Weilheim—with its shops, cafés, and restaurants—as well as the train station, schools, and kindergartens, are just a few minutes’ walk away. Recreational facilities such as the outdoor pool at Dietlhofer See or the city park are also not far away. Commuters can enjoy a quick connection to Munich: in about 35 minutes, you can reach Munich’s main train station with the regional train, and by car, you can get to the state capital in roughly 45 minutes via the A95. This location combines the advantages of a nature-oriented lifestyle in the popular Pfaffenwinkel region with the proximity to one of Germany’s most dynamic metropolises.
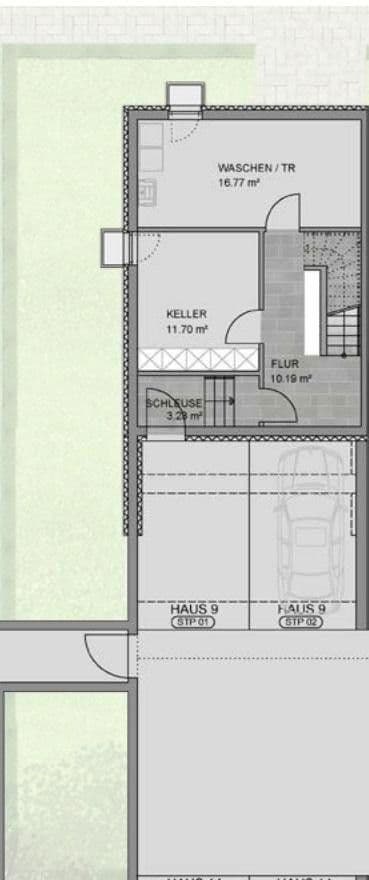
The terraced end house impresses with a high-end interior finish that offers the utmost living comfort. All living areas and parts of the basement are equipped with underfloor heating, operated by an environmentally friendly district heating system (wood pellets/gas) – ensuring cozy warmth and low energy costs. The high-quality triple-glazed windows and excellent insulation guarantee tranquility and a pleasant living climate. The premium oak parquet floors in the living areas and the large-format fine stone tiles in the bathrooms and entrance area ensure durability and ease of maintenance. Two modern bathrooms – one with a bathtub and rainshower, the other with a spacious comfort shower – impress with high-quality sanitary fixtures and create a feel-good atmosphere. Additionally, there is a stylish guest WC on the ground floor and a practical storage room. The heart of the house is the open living/dining area featuring a custom fitted kitchen equipped with modern appliances that delights both functionally and aesthetically. The basement is directly connected to the underground garage, so you can enter the house conveniently and dry. Please note that the two underground parking spaces are not included in the purchase price. Every detail, from the modern interior doors with designer fittings to the timeless bathroom fixtures, reflects the high quality and ambition of this house. Here, you can move in immediately and feel completely at home.
Property characteristics
| Age | Over 5050 years |
|---|---|
| Layout | 5+1 |
| EPC | B - Very economical |
| Land space | 214 m² |
| Price per unit | €5,783 / m2 |
| Condition | Very good |
|---|---|
| Listing ID | 979724 |
| Usable area | 152 m² |
| Total floors | 4 |
What does this listing have to offer?
| Basement | |
| MHD 1 minute on foot |
| Parking | |
| Terrace |
What you will find nearby
Still looking for the right one?
Set up a watchdog. You will receive a summary of your customized offers 1 time a day by email. With the Premium profile, you have 5 watchdogs at your fingertips and when something comes up, they notify you immediately.















