
Flat to rent 2 bedroom • 48 m² without real estateWeidigweg 31 Darmstadt Eberstadt Hessen 64297
Weidigweg 31 Darmstadt Eberstadt Hessen 64297Public transport 3 minutes of walking • Lift • GarageThe well-renovated and lovingly furnished, comfortable apartment is located in a quiet and well-maintained residential complex directly by the forest, offering distant views of the mountains. The apartment will be handed over on March 1, 2025.
The light-filled apartment is equipped for a comfortable stay for 2 people with all the necessary furniture and fixtures.
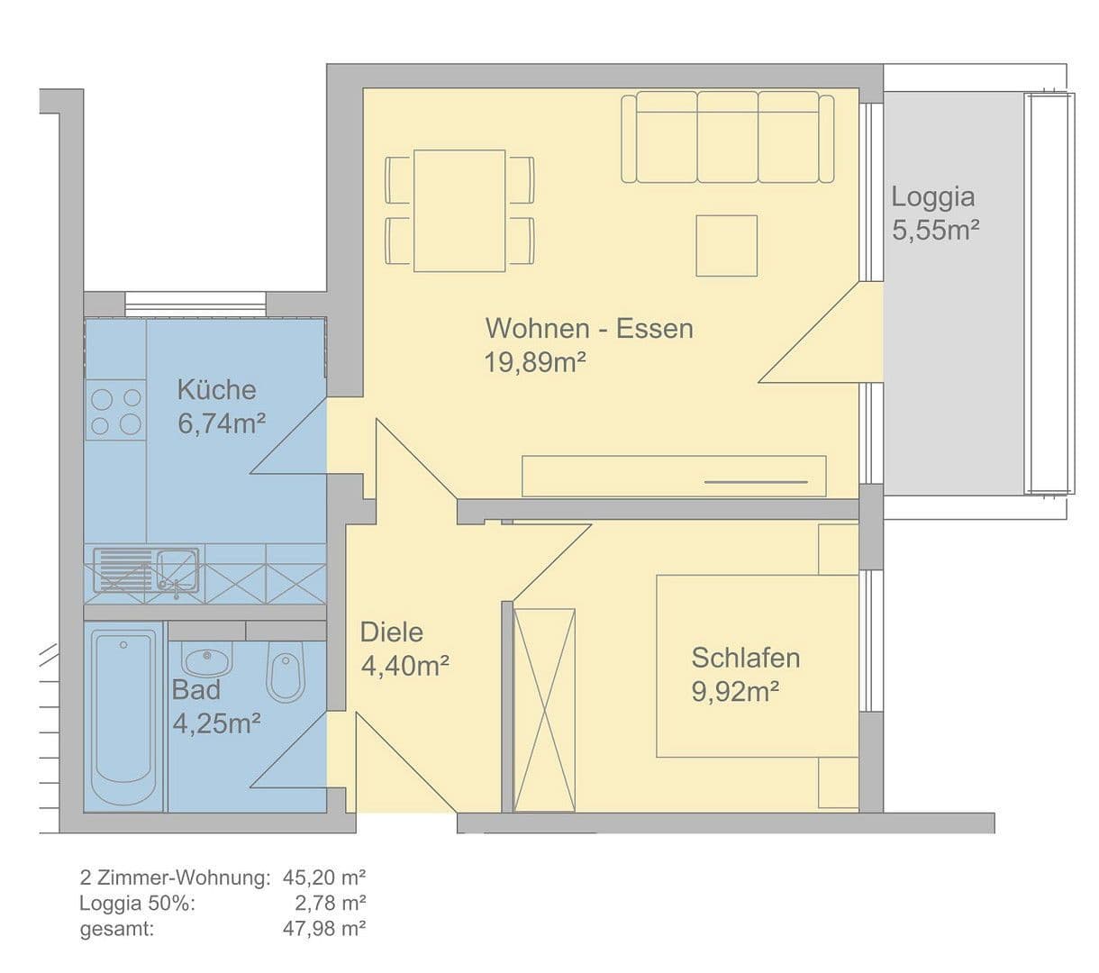
You enter the apartment on the 5th floor (half a floor above the elevator stop, which is reached by the stairs!), where you are greeted by the open and bright living room and balcony, which offer a beautiful, green distant view of the mountains. The kitchen features a modern, white fitted kitchen with all appliances, including a washing machine, dishwasher, and dishware. There is a lovely bedroom, and a bathroom with a bathtub, toilet, and washbasin. All windows provide views of the forest.
The well-maintained residential complex is quietly situated on the outskirts of Darmstadt in a car-free zone. Cars must be parked in the communal garage. Between the apartment buildings, throughout the complex, there are large trees that provide pleasant shade during the summer. The tram stop is about a 5-minute walk away:
• Approximately a 5-minute walk to the tram into the city center, with a travel time of about 20 minutes.
• About 8 minutes to the international school.
• By car:
– 3 minutes to the A5 motorway,
– 15 minutes to Darmstadt city center,
– 30 minutes to Frankfurt Airport.
All daily shops are within walking distance.
• Renovated and well-maintained residential complex in a car-free zone
• Modern bathroom with bathtub, guest toilet
• Parking space in the communal garage
• Elevator in the building (not wheelchair accessible)
• Bright laminate flooring
• Large fitted kitchen with electric stove, oven, dishwasher, washing machine, refrigerator, freezer, microwave, and dishware
• Double bed, two single beds, bed linen, towels
• Balcony
• TV, Wifi
• Sofa set, dining area, desk
The additional costs include the following:
• Heating
• Water, sewage
• Electricity
• Internet
• Caretaker, property tax, insurance, waste disposal
The additional costs are settled annually based on consumption. Smoking is permitted only on the balcony.
Upon departure, a cleaning fee of €500 is charged. The minimum rental period is 6 months. Smoking is only permitted on the balcony.
Property characteristics
| Age | Over 5050 years |
|---|---|
| Condition | After reconstruction |
| Floor | 5. floor out of 6 |
| EPC | E - Wasteful |
| Price per unit | €20 / m2 |
| Available from | 01/04/2026 |
|---|---|
| Layout | 2 bedroom |
| Listing ID | 978754 |
| Usable area | 48 m² |
What does this listing have to offer?
| Balcony | |
| Lift |
| Garage | |
| MHD 3 minutes on foot |
What you will find nearby
Still looking for the right one?
Set up a watchdog. You will receive a summary of your customized offers 1 time a day by email. With the Premium profile, you have 5 watchdogs at your fingertips and when something comes up, they notify you immediately.













