
Flat for sale 4+1 • 146 m² without real estatePrinzregentenstr. Berlin Wilmersdorf Berlin 10715
Prinzregentenstr. Berlin Wilmersdorf Berlin 10715Public transport 2 minutes of walking • LiftIn the interest of fairness …
we currently have a purchase offer of 659,000, which is a bit below our DESIRED PRICE – we’d say yes starting from 670,000!
Bright apartment with 2 entrances seeking a new owner !!!
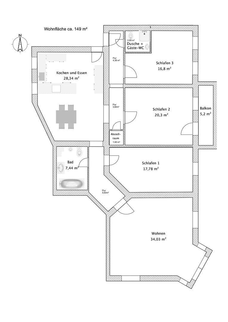
This bright, 149 m² apartment with a unique layout is looking for a new owner. The apartment is located on the 3rd floor of a multi-family building.
It was nicely refurbished 3 years ago and is currently rented out.
IMPORTANT!!! The ELEVATOR does NOT stop at this floor!!!
The property includes a spacious cellar and a bicycle carport in the courtyard.
Owner occupancy can begin on 28.02.2026!
The apartment is within a 2-minute walk to Volkspark Wilmersdorf and close to Bundesplatz. S-Bahn and U-Bahn stations can be reached on foot in 5 minutes, and the highway is also quickly accessible.
Fortunately, there are no parking fees yet, and the bakery is right next door.
Both Aldi and Edeka are within walking distance, and there is an abundance of restaurants.
It’s a 5-minute bike ride to Ku’damm, two U-Bahn stops to Schlossstraße, and nearby you’ll find schools, kindergartens, and several nice, large playgrounds in the local park around the corner.
A fully equipped open-plan kitchen with a 28 m² cooking island and dining area, as well as a 34 m² living room with a bay window and wonderful lighting, are part of this truly beautiful apartment.
Three bedrooms with sound-insulated windows help ensure that your morning coffee tastes just right.
The uncovered balcony has always invited us to move our Sunday breakfast there in the summer.
There is a guest WC with a shower and a full bathroom.
The apartment has 2 entrances – following the motto “making 1 out of 2,” we intentionally chose this approach.
In the land registry, the two combined apartments are recorded separately. Therefore, splitting them or subletting could also be an option.
A little tip: an added value might arise if you keep the larger apartment (approx. 96 m²) and rent out the smaller one to help cover a potential loan installment.
There is a reserve fund to cover future building projects in the communal property of the house for the near future. We will gladly provide the minutes of the homeowners’ meetings from the past 3 years if you are interested.
We are happy to arrange viewing appointments by appointment!
In short, it is a truly beautiful apartment – we loved living there.
-------------------------------------------------------------------
No broker fees and
-------------------------------------------------------------------
- please, dear brokers, let it remain that way -
Property characteristics
| Age | Over 5050 years |
|---|---|
| Condition | After reconstruction |
| Floor | 3. floor out of 5 |
| Usable area | 146 m² |
| Available from | 01/02/2026 |
|---|---|
| Layout | 4+1 |
| Listing ID | 978403 |
| Price per unit | €4,445 / m2 |
What does this listing have to offer?
| Balcony | |
| Lift |
| Basement | |
| MHD 2 minutes on foot |
What you will find nearby
Still looking for the right one?
Set up a watchdog. You will receive a summary of your customized offers 1 time a day by email. With the Premium profile, you have 5 watchdogs at your fingertips and when something comes up, they notify you immediately.










