
Flat for sale 3+1 • 96 m² without real estateFraunberg Reichenkirchen Bayern 85447
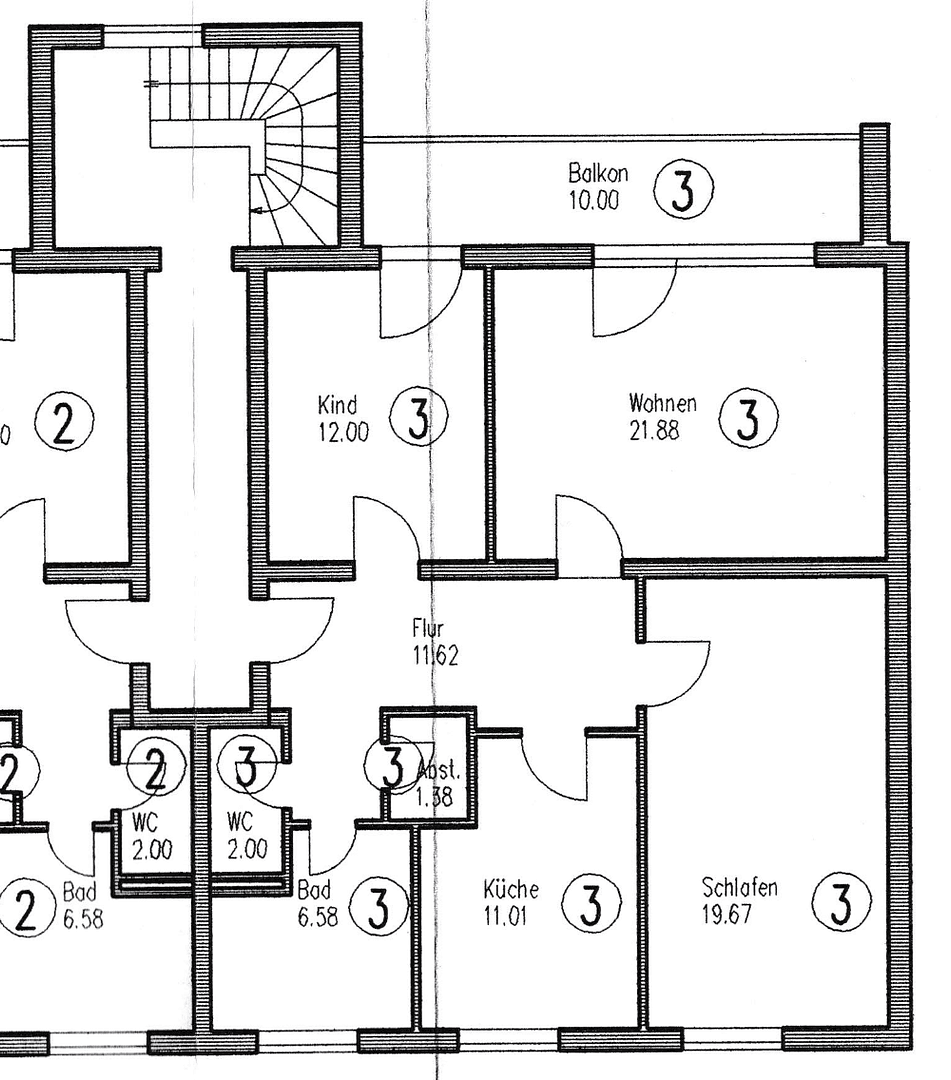
Fraunberg Reichenkirchen Bayern 85447Public transport 2 minutes of walking • GarageOnce you enter the apartment door on the first floor, you first arrive in the spacious hallway. From there, branching off to the right, you'll find the light-filled bathroom with a bathtub, the guest WC, and the pantry. On the left, you access the 12 sqm children’s room. Continuing along the hallway, the kitchen—with a spacious fitted kitchen and dining area—is located to the right. Straight ahead is the nearly 20 sqm master bedroom, and to the left is the bright, cozy living room of almost 22 sqm. Additionally, there is a west-facing balcony adjacent to the living room where you can wonderfully enjoy the evening sun.
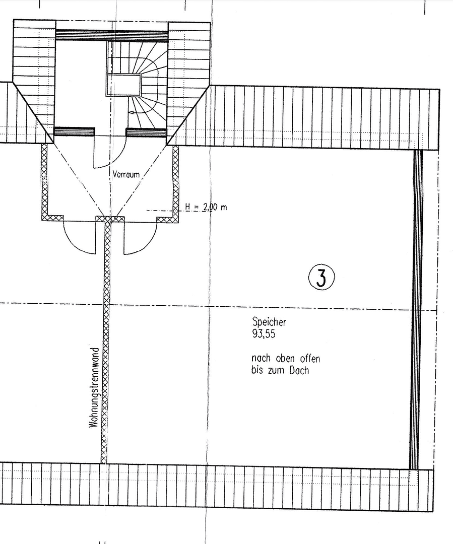
On the top floor, there is currently a 93 sqm storage room where you can store all your belongings. This room is sold together with the apartment.
The house was built in 1966 and has a cellar only in the room that houses the oil heating.
Another highlight is that the top floor, which currently contains the storage room, can be converted into living space! The first floor and the top floor could be converted into a maisonette apartment. There are no restrictions in this regard according to the district office (as of 08/2025).
The property is located in Fraunberg. Several bus lines operate nearby. Within walking distance, there is a bakery, and a fitness studio is also very close by. Further afield, you will find several shopping options, as well as schools and kindergartens. Additionally, several museums, a cinema, good medical care, and various recreational and sports facilities (including green and park areas) are available in the larger vicinity.
Property characteristics
| Age | Over 5050 years |
|---|---|
| Condition | Good |
| Floor | Ground floor |
| Usable area | 96 m² |
| Available from | 21/01/2026 |
|---|---|
| Layout | 3+1 |
| Listing ID | 977250 |
| Price per unit | €4,375 / m2 |
What does this listing have to offer?
| Balcony | |
| MHD 2 minutes on foot |
| Garage |
What you will find nearby
Still looking for the right one?
Set up a watchdog. You will receive a summary of your customized offers 1 time a day by email. With the Premium profile, you have 5 watchdogs at your fingertips and when something comes up, they notify you immediately.



















