
Flat for sale 2 bedroom • 93 m² without real estateDuncker Str. 20 Berlin Prenzlauer Berg Berlin 10437
Provision-free Garden Apartment Near Helmholtzplatz
93 m² Living Space + 82 m² Garden
PRIVATE SALE.
For sale is a charming garden apartment on Dunckerstraße – just a few steps from the popular Helmholtzplatz. The apartment is located on the ground floor of a well-maintained historic building and offers approximately 93 m² of living space as well as a generous garden of about 82 m². The sale is commission-free and by private owner.
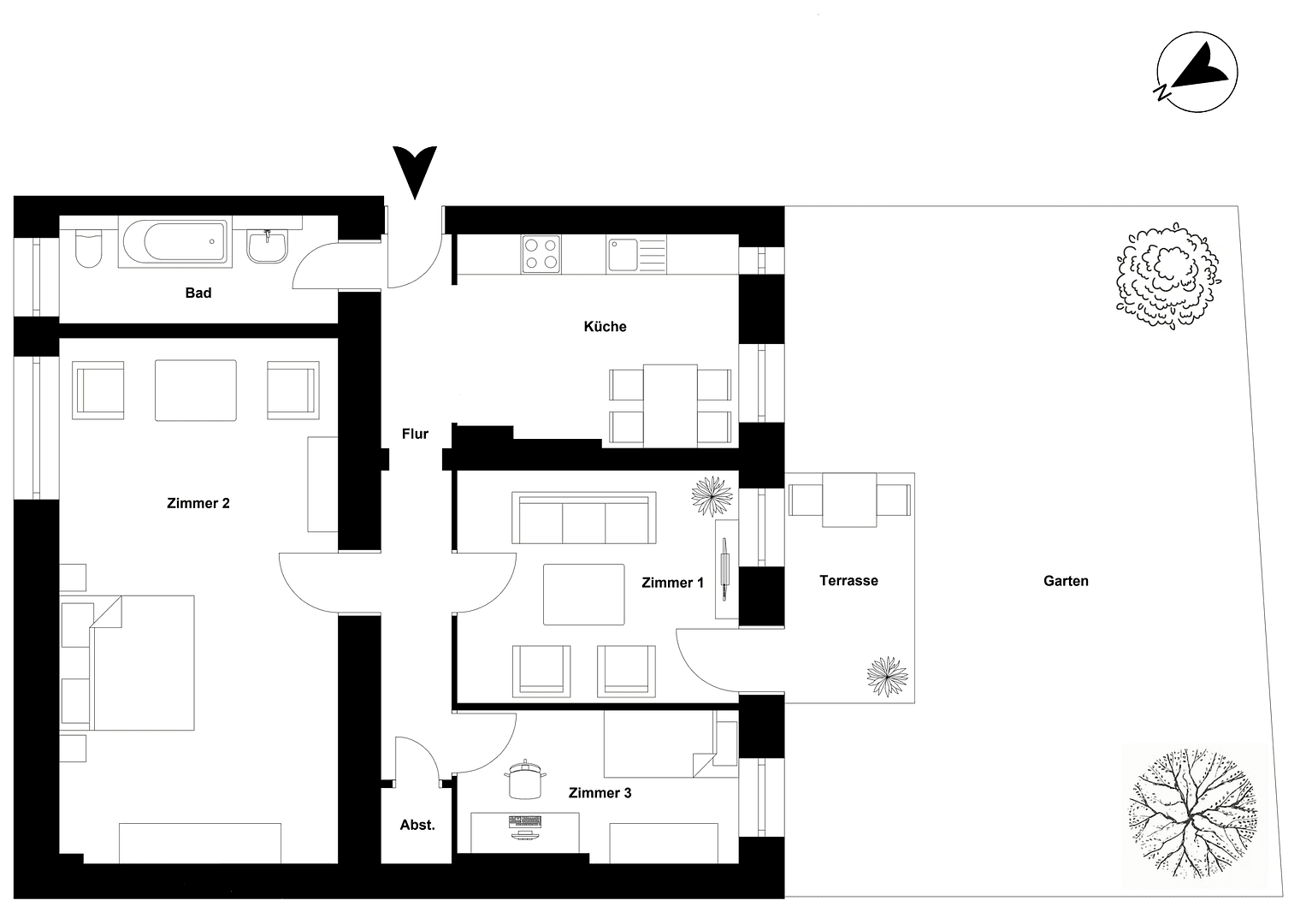
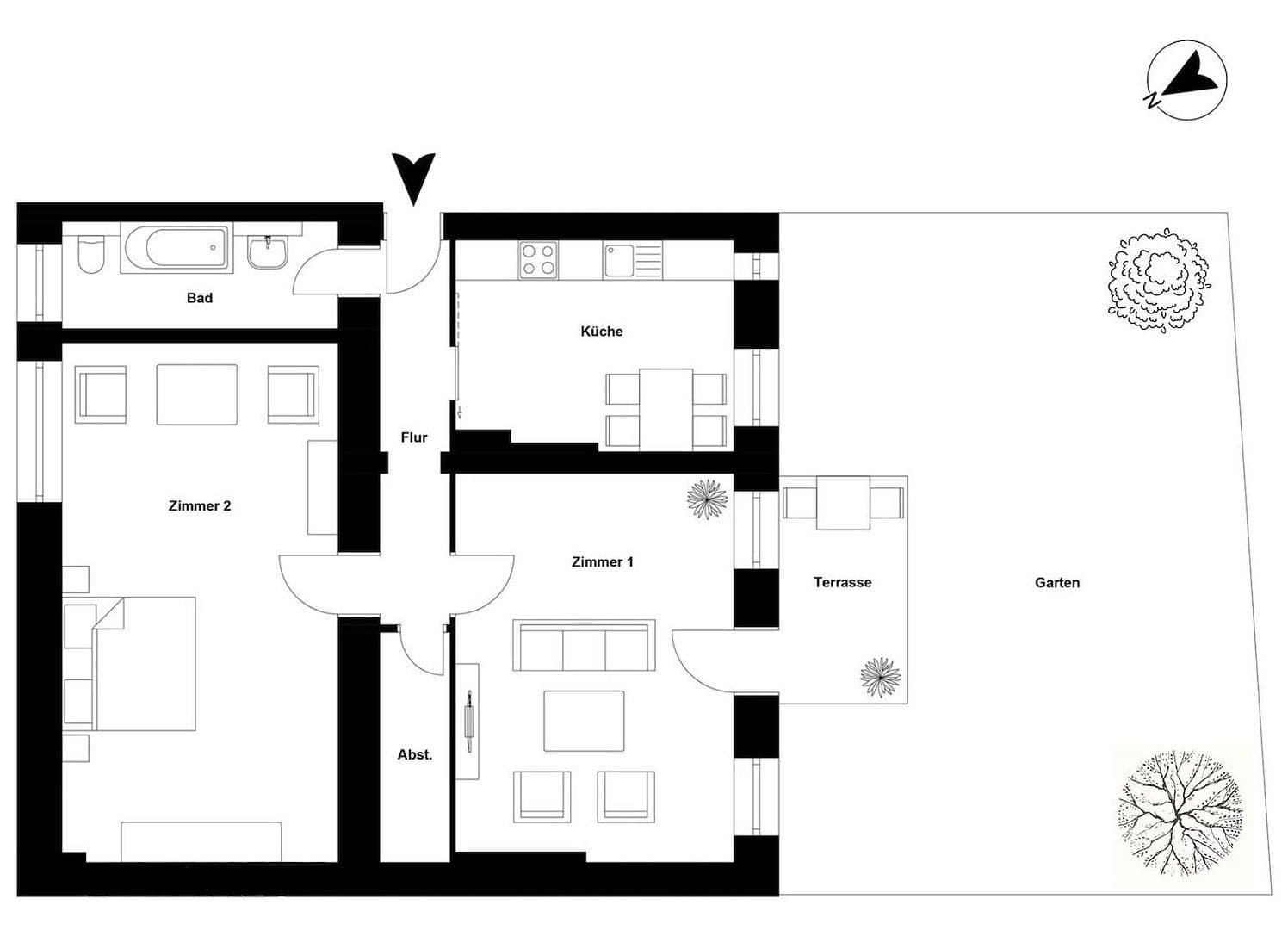
Current Layout:
The apartment is currently designed as a spacious two-room apartment and features a living room, a bedroom, a kitchen, a bathroom, a storage room, and access to the garden. (See layout and photos.)
Design Possibilities:
With a renovation, it could be reconfigured into a three-room apartment. An open-plan living kitchen adjoining the living room or other individual room concepts can also be easily realized.
Special Features:
The highlight of this apartment is the large garden – a green oasis right in the heart of Berlin-Prenzlauer Berg, ideal for relaxing, gardening, or for pets. It is perfect for people with dogs, cats, or other animals…
Barrier-Reduced:
The apartment is very well suited for couples, small families, seniors, or individuals with limited mobility. Access is almost barrier-free – there are only three steps separating the entrance from the apartment, which could be overcome with a small ramp.
Additional Advantages:
Ready for immediate occupancy – ideal for owner-occupiers or as an investment property. The new owner can move in immediately.
Location – Living at Helmholtzplatz on Dunckerstraße
The apartment is located on the sought-after Dunckerstraße, just a few steps from the popular Helmholtzplatz – one of the most charming neighborhoods in the heart of Berlin-Prenzlauer Berg. The area is characterized by historic buildings, small cafés, boutiques, organic supermarkets, and lively neighborhood life. Helmholtzplatz is a popular meeting point for families, creatives, and connoisseurs, offering green spaces, playgrounds, and excellent infrastructure. Thanks to excellent public transport connections (S-Bahn, U-Bahn, tram, and bus), Berlin’s city center can be reached within minutes. A location that ideally combines urban living with a relaxed neighborhood atmosphere.
Features:
• Maintained historic building with traditional charm (built in 1898)
• Terrace/Garden: 82 m² garden for exclusive use
• Fitted kitchen
• Very good room layout
• Daylight bathroom with bathtub
• Laminate flooring
• Cellar and storage room in the apartment
• Central gas heating
• Well-maintained property condition
• Monthly service charge: €350
• Maintenance reserve: €138.90 per month
• Total reserves: approximately €60,000
• Possibility for individual layout design
• Ready for immediate occupancy
Energy
Year of Construction (according to the energy certificate): 1898
Final energy consumption: 69 kWh/(m²*a)
Energy certificate: Energy Consumption Certificate
Energy efficiency class: B
Energy consumption for hot water included
Energy consumption: 69 kWh/(m²*a)
Type of heating: Central heating
Main energy source: Gas
For any questions, I am happy to assist. Additional photos, information, and documents are available upon request.
Property characteristics
| Age | Over 5050 years |
|---|---|
| Layout | 2 bedroom |
| Usable area | 93 m² |
| Condition | After reconstruction |
|---|---|
| Listing ID | 975151 |
| Price per unit | €7,194 / m2 |
What does this listing have to offer?
| MHD 3 minutes on foot |
| Terrace |
What you will find nearby
Still looking for the right one?
Set up a watchdog. You will receive a summary of your customized offers 1 time a day by email. With the Premium profile, you have 5 watchdogs at your fingertips and when something comes up, they notify you immediately.

























