
Flat for sale 3+1 • 100 m² without real estateTogostr. Berlin Wedding Berlin 13351
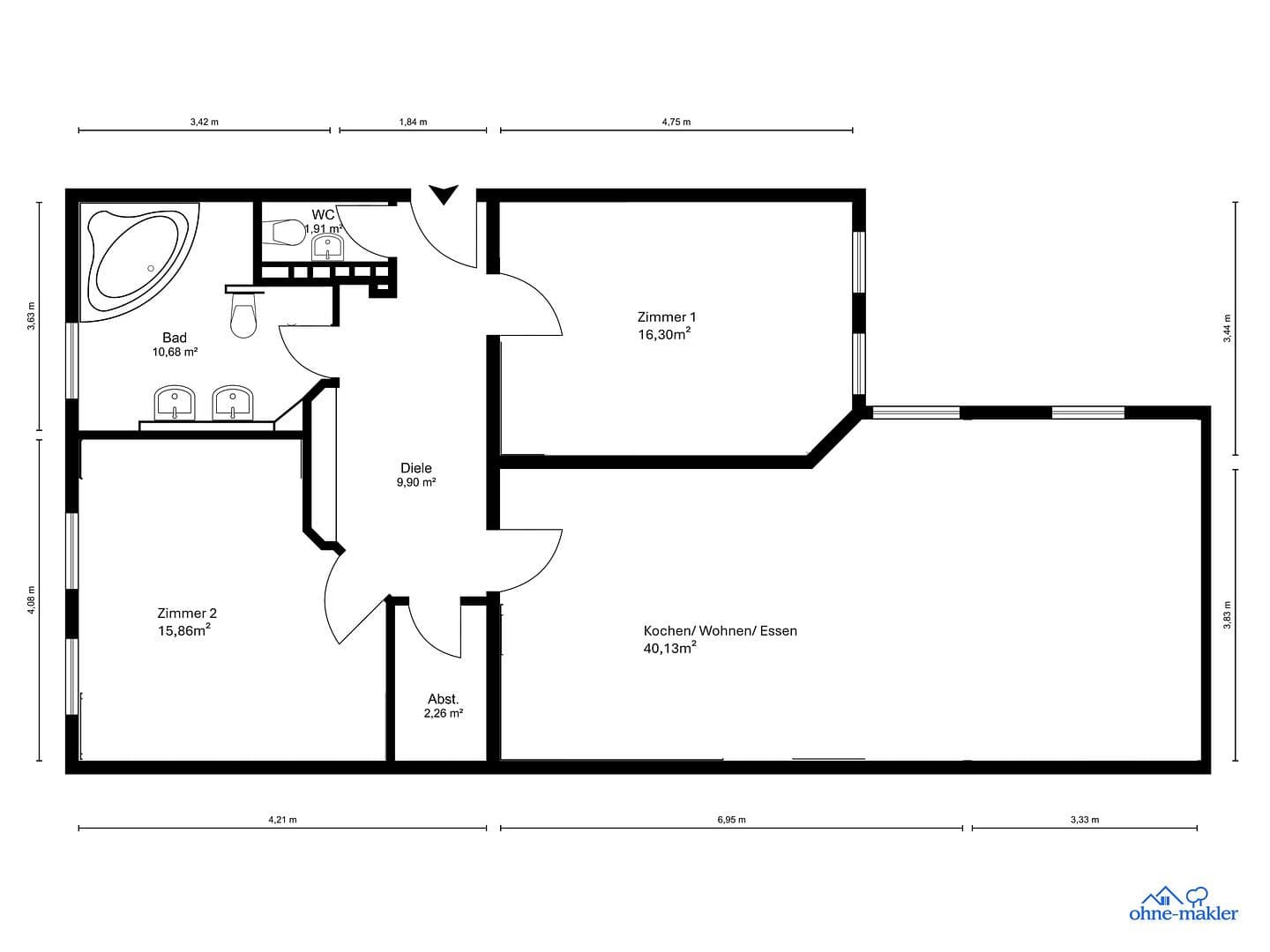
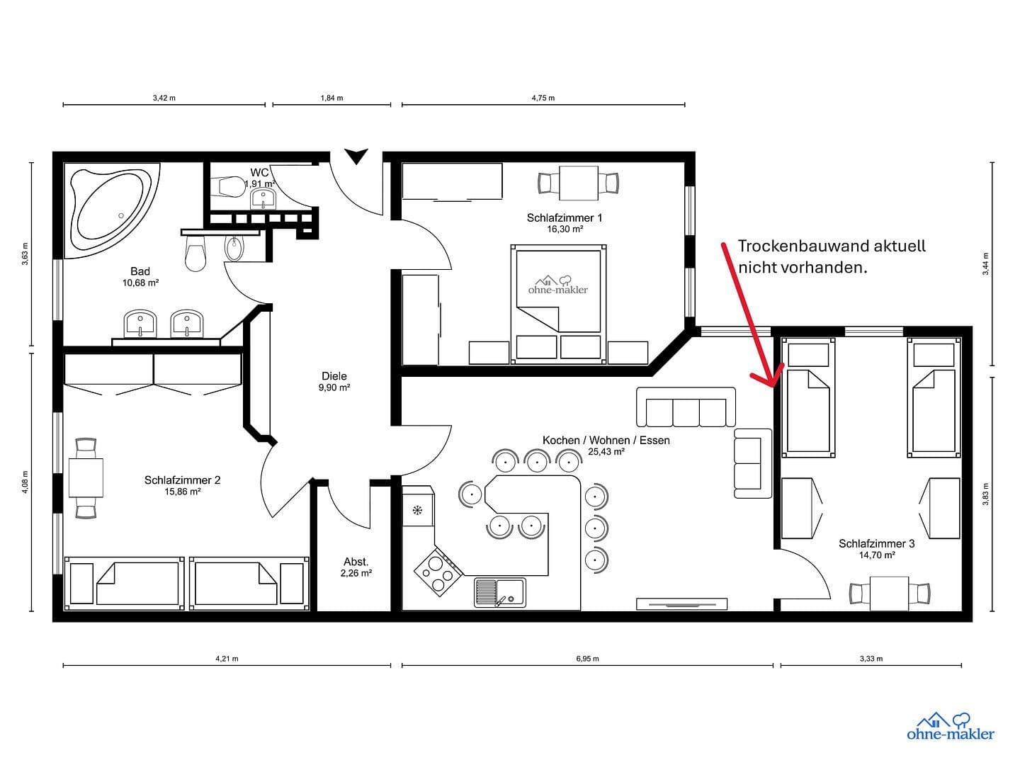
Togostr. Berlin Wedding Berlin 13351Public transport 3 minutes of walkingThis stylishly modernized pre-war apartment is located on the 3rd floor of the quiet garden building in a Berlin residential complex on Togostraße (near Seestr.) with perfect transportation links. With windows on both sides, the apartment is very bright. With a living space of 100 m² and a flexible floor plan, it currently offers three spacious rooms including a living kitchen – reverting to the original four-room layout is easily possible with a simple drywall partition in the living room.
The apartment was comprehensively renovated in 2009 and combines the charm of an old building with the comfort of a new one. Tiles and parquet flooring, plastered walls, a recessed ceiling mirror with indirect lighting, and modern windows create an elegant living atmosphere. The large bathroom features both a shower and a corner bathtub. The kitchen can serve as a living kitchen or be installed in the large bedroom—the necessary connections are in place.
Togostraße is a quiet bike street in the heart of Berlin-Wedding, surrounded by playgrounds, green spaces, and cultural offerings such as galleries and cafés. Public transport is excellent: the U6 (Seestraße) subway line and the M13 tram are only 500 m away. The Seestraße motorway ramp provides quick access by car. The Müllerstraße shopping street, as well as the Rehberge, Schillerpark, and Plötzensee parks with a bathing lake, are all in the immediate vicinity.
• 3–4 rooms (flexible floor plan)
• Large daylight bathroom + guest WC
• Storage room + fitted wardrobe
• Basement compartment (approx. 10 m²)
• Year of construction: 1910, Renovation: 2009
• Virtual tour: Matterport 3D tour
Living room with plenty of light and space:
A spacious living area with white tiles, several windows, and integrated ceiling lighting – ideal for socializing or as a combined living/dining area.
Modern kitchen with island and high-quality appliances:
An open fitted kitchen with a dark countertop, white fronts, and a cooking island – perfect for hobby chefs and families.
2× bright bedrooms or office with parquet flooring:
Abundant daylight from two windows and the warm wooden tone of the floor make these rooms flexibly usable as bedrooms, an office, or a children’s room.
Large bathroom with comfort features:
Double sinks, bathtub and shower, a daylight window, and modern tiles – a true highlight.
Hallway with storage and lighting:
A spacious entrance area featuring a fitted wardrobe and integrated lighting – both functional and stylish.
Green inner courtyard with bicycle parking:
A quiet courtyard with seating, trees, and “Kreuzberger Bügel” bicycle stands – urban living with a touch of relaxation.
Guest toilet and storage room available.
The apartment is being sold directly by the owner – commission-free. It is ideally suited for families, couples, or as a stylish city apartment with home office potential. The quiet inner courtyard, flexible room layout, and high-quality fittings make this property a rare opportunity in a central location.
Property characteristics
| Age | Over 5050 years |
|---|---|
| Layout | 3+1 |
| Listing ID | 974882 |
| Usable area | 100 m² |
| Condition | After reconstruction |
|---|---|
| Floor | 3. floor |
| EPC | D - Less economical |
| Price per unit | €4,800 / m2 |
What does this listing have to offer?
| Basement |
| MHD 3 minutes on foot |
What you will find nearby
Still looking for the right one?
Set up a watchdog. You will receive a summary of your customized offers 1 time a day by email. With the Premium profile, you have 5 watchdogs at your fingertips and when something comes up, they notify you immediately.




























