
Flat for sale 3+1 • 86 m² without real estateBerlin Rummelsburg Berlin 10317
This commission‑free 3‑room period apartment is located in Berlin‑Lichtenberg, in a setting that is rare in Berlin: just about a two‑minute walk to the S‑train while remaining pleasantly quiet – and the city centre is quickly reachable by S‑ and U‑train, sometimes without the need to change trains. It is ideal for owner‑occupiers who want to live centrally without sacrificing quality of living.
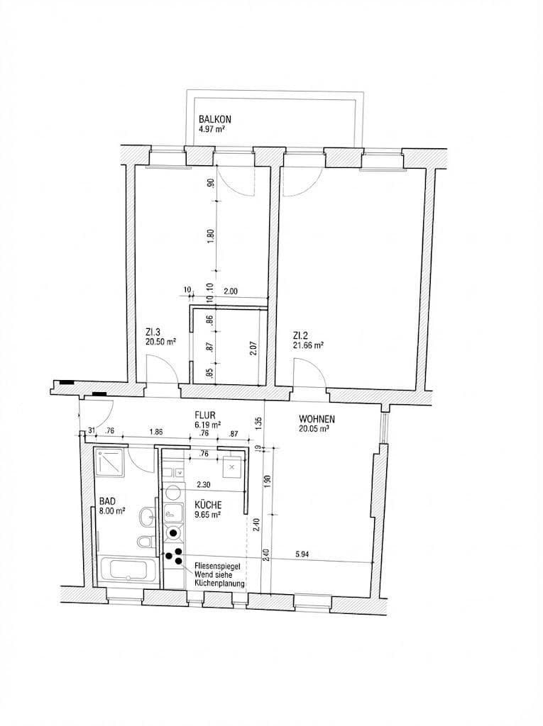
The floor plan is well thought‑out and practical for everyday use: two lockable rooms offer flexible functions (sleeping, working, children/guests), complemented by a spacious living and dining area with an open kitchen at the heart of the apartment.
The kitchen is functional and features refined details with a marble countertop as well as a newly installed sink and faucet. Although the rest of the kitchen is pre‑owned, it is fully usable.
A special comfort factor is the bedroom with its walk‑in closet, in which new built‑in units have been installed recently – offering plenty of storage space without sacrificing living space.
The bathroom provides both everyday practicality and comfort, featuring a large bathtub and a separate shower (a walk‑in/level shower).
In addition, the apartment comes with a large basement storage room, which is particularly valuable in an older building. Overall, the apartment is in a well‑maintained condition; individual details of the fittings have been updated in recent years, enabling immediate move‑in without major renovations.
The apartment is situated in the Berlin district of Lichtenberg, in a location that perfectly combines central accessibility with quiet living. The S‑train station is just about a two‑minute walk away.
From here, there is excellent access to central Berlin. Many key destinations can be reached quickly using both the S‑ and U‑train, often without the need to change trains.
Despite the excellent transportation connections, the residential environment remains pleasantly calm. Shopping facilities, cafés, doctors, and other daily necessities can be found in the immediate vicinity. This location is particularly popular with owner‑occupiers who want to live close to the city without compromising on living quality.
• Period apartment
• Well‑maintained condition
• Wooden floors
• Spacious living and dining area with open kitchen
• Kitchen with marble countertop, new sink, and new faucet
• Bedroom with walk‑in closet and new shelving
• Bathroom
• Large basement storage room
• Commission‑free private sale
Property characteristics
| Age | Over 5050 years |
|---|---|
| Condition | Good |
| Floor | 1. floor out of 5 |
| Usable area | 86 m² |
| Available from | 19/12/2025 |
|---|---|
| Layout | 3+1 |
| Listing ID | 974333 |
| Price per unit | €4,930 / m2 |
What does this listing have to offer?
| Balcony | |
| MHD 3 minutes on foot |
| Basement |
What you will find nearby
Still looking for the right one?
Set up a watchdog. You will receive a summary of your customized offers 1 time a day by email. With the Premium profile, you have 5 watchdogs at your fingertips and when something comes up, they notify you immediately.



















