
Flat for sale 1 bedroom • 44 m² without real estateJenullgasse 10 Wien 14. Bezirk Wien 1140
Apartment Near U4 Braunschweiggasse
For investors or as a starter apartment
This condominium is located on the 1st floor (with elevator) of a small condominium complex.
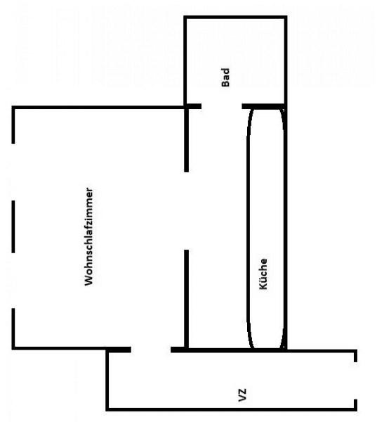
The apartment features:
• A spacious entrance hall
• A fully equipped kitchen with all appliances
• A bathroom with toilet
• A combined living/sleeping room
The building also offers an interior courtyard/garden.
This apartment has ideal transportation connections to U4 Braunschweiggasse or S45 Penzing as well as to the West Autobahn.
The apartment is currently rented out until March 31, 2026, at approximately €10 per m².
The tenant would be interested in extending the lease.
Heating is provided by gas and the hot water is produced electrically.
According to the WE protocol, rentals on platforms like Airbnb are not permitted.
Public transportation connections within walking distance via U4 Braunschweiggasse and S45 Penzing are excellent.
The local infrastructure is good. For leisure, the nearby Schönbrunn Palace or the Wienfluss bike path are attractive options.
KEY DATA
Address: 1140 Vienna, Jenullgasse 10/5
Year of construction: 1969 (reconstruction)
Condition of the apartment: habitable, but in need of renovation.
Usable area: 44 m²
Floor: 1st floor with elevator
Public connections: U4 Braunschweiggasse, S45 Penzing, West Autobahn
Monthly operating costs: €223.05 including reserve and VAT.
Room layout: Entrance hall, combined living/sleeping room, kitchen, bathroom with toilet
Operating costs: €160.71 (+10% VAT)
Total costs: €223.05 including VAT.
Repair reserve: €46.27 Total reserve: approx. €100,000.
Property characteristics
| Age | Over 5050 years |
|---|---|
| Floor | 1. floor out of 3 |
| Usable area | 44 m² |
| Layout | 1 bedroom |
|---|---|
| Listing ID | 973881 |
| Price per unit | €4,295 / m2 |
What does this listing have to offer?
| Basement |
| MHD 3 minutes on foot |
What you will find nearby
Still looking for the right one?
Set up a watchdog. You will receive a summary of your customized offers 1 time a day by email. With the Premium profile, you have 5 watchdogs at your fingertips and when something comes up, they notify you immediately.









