
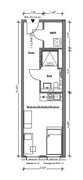
Flat to rent 1 bedroom • 31 m² without real estateRudower Chaussee 34 Berlin Adlershof Berlin 12489
New build. Move in with your suitcase and feel right at home. No hassle, as everything is already included. Two people can happily move in together. The apartment is 31 m² in size and offers everything you need – a high-quality kitchen with a refrigerator/freezer combination, stove, and oven; dishes, pots, and cutlery all provided; washing machine and drying rack; pleated blinds; robotic vacuum cleaner; dining table with two chairs; bed measuring 1.20 m x 2.00 m; wardrobe.
Internet and electricity are included. There is no need to set up your own contract because everything is already arranged by the landlord.
You will find the property in a vibrant area right in the middle of the Adlershof Technology and Science Park in Berlin. In the immediate vicinity, there are several bus and tram lines. Within walking distance, you can reach several restaurants, cafés, doctors, bakeries, and a shopping center. Various green spaces and parks, two fitness studios, two dry cleaners, a fashion store, and a library are also available on-site.
High-quality new building fittings. Modern and comfortable.
Parking is available on the street.
All costs, including electricity and internet, are included in the rental price.
Property characteristics
| Age | Over 5050 years |
|---|---|
| Condition | Very good |
| Floor | 3. floor out of 4 |
| Usable area | 31 m² |
| Available from | 01/01/2026 |
|---|---|
| Layout | 1 bedroom |
| Listing ID | 971066 |
| Price per unit | €29 / m2 |
What does this listing have to offer?
| Lift |
What you will find nearby
Still looking for the right one?
Set up a watchdog. You will receive a summary of your customized offers 1 time a day by email. With the Premium profile, you have 5 watchdogs at your fingertips and when something comes up, they notify you immediately.










