
House to rent 5+1 • 150 m² without real estateHamburg Rissen Hamburg 22559
Hamburg Rissen Hamburg 22559Public transport less than a minute of walking • GarageHere is the English translation of the text marked by the XML tag:
This high-quality, newly rebuilt and modernized end-terrace house is located in one of the most desirable residential areas of Hamburg-Rissen. The house was completely renovated, extended, and fitted with new equipment as well as modern building technology in 2016. A detailed documentation of the renovation is available for inspection upon request.
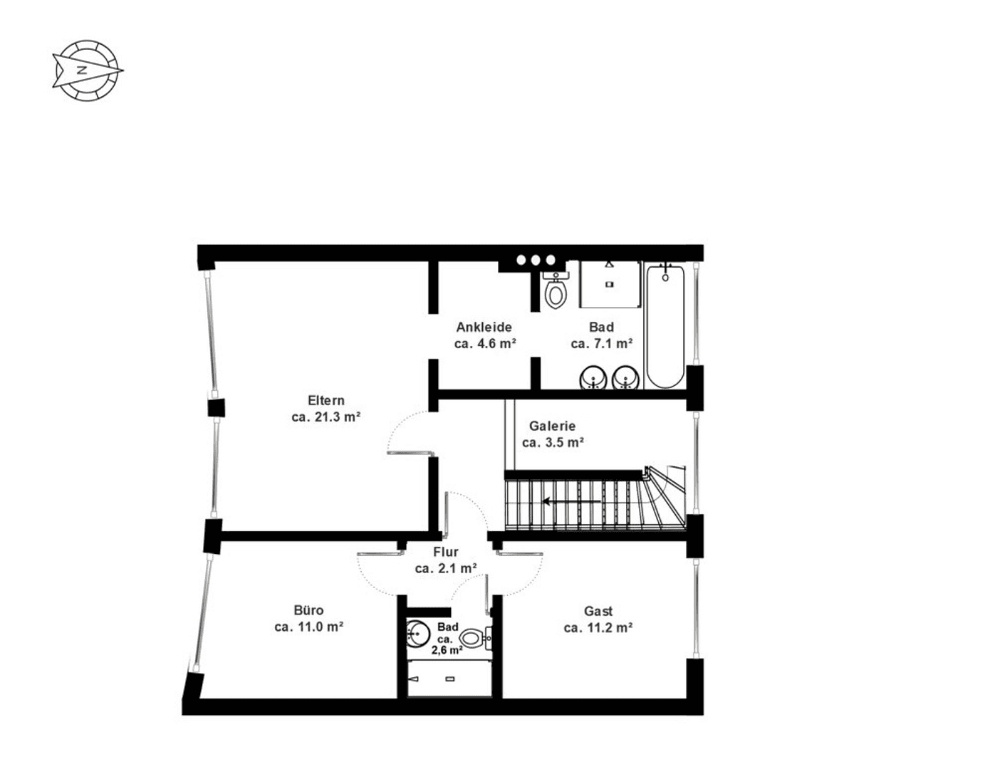
The house offers approximately 150 m² of living space spread across two levels, along with a fully usable basement – providing generous space for families who value comfort and quality.
It features four well-proportioned bedrooms, including a spacious master bedroom with a built-in wardrobe and its own bathroom with a bathtub. On the ground floor, there is a guest room with its own shower room, which is also ideal as an office. The two additional rooms on the upper floor are perfect as children’s rooms, guest rooms, or studies.
A bright, fully equipped kitchen along with an open-plan living and dining area creates a friendly and inviting atmosphere. High-quality materials, modern amenities, and thoughtful details can be found throughout the house. In addition, the property includes three bathrooms, a fully finished basement with plenty of storage space or room for hobbies, as well as a private garage.
The house is located on a quiet, green residential street with excellent transport connections: the nearest bus stop (Bookweetenkamp) is only about a 2–3 minute walk away, and Rissen’s S-Bahn station (S1) is approximately a 12-minute walk. The Rissen town center—with its shops, restaurants, and weekly market—is quickly accessible. The Elbe River, with its walking paths, is only about a 15-minute walk away. Hamburg’s city center can be reached by car in around 30 minutes.
This property combines peaceful, family-friendly living with optimal connectivity – ideal for families and professionals who equally appreciate comfort and quality of life.
Features:
• Approximately 150 m² of living space + fully usable basement
• Complete new construction and extension in 2016 (renovation documentation available)
• 4 bedrooms (including a master bedroom with an ensuite bathroom)
• 3 bathrooms (2 ensuite, 1 shared)
• High-quality fittings and a modern fitted kitchen
• Private garage
• 2–3 minute walk to the Bookweetenkamp bus stop
• 12 minute walk to Rissen S-Bahn station (S1)
• Proximity to the Rissen town center, shops, and schools
• Quiet, family-friendly residential location
• The Elbe with its beaches and walking paths is reachable in only 15 minutes on foot – perfect for strolls and nature experiences
• Rissen High School is about an 8-minute walk away
• The Zaubermäuse Kindergarten is only a few steps away
The property is located in one of the most sought-after residential areas of Hamburg-Rissen, known for its green surroundings, family-friendly atmosphere, and proximity to the Elbe. The neighborhood is characterized by quiet residential streets with well-kept houses and gardens, providing a pleasant and safe living environment for families and professionals.
The transport connections are excellent: the nearest bus stop (Bookweetenkamp) is only about a 2–3 minute walk away, while Rissen’s S-Bahn station (S1 line) is approximately a 12-minute walk away and offers a direct connection to Altona and Hamburg’s city center in less than 30 minutes.
The Rissen town center, with its daily shopping options, bakeries, cafés, restaurants, and a popular weekly market, is in the immediate vicinity. Schools, kindergartens, and sports facilities are also quickly accessible, making the location particularly attractive for families.
Nature lovers will appreciate the proximity to the Elbe and the Wittenbergener beach, which is approximately a 15-minute walk away and offers wonderful walking and cycling paths along the water.
Overall, the location combines peaceful, green living with optimal connectivity – ideal for those who cherish comfort, nature, and urban proximity.
The house was completely rebuilt, extended, and equipped with modern building technology in 2016. In the process, all installations – electrical, sanitary, heating, and insulation – were completely renewed. Throughout the house, high-quality materials and modern design details were used.
The kitchen is equipped with high-end built-in appliances from Miele, Siemens, and AEG, offering ample storage space and a functional layout – ideal for daily use and cooking with family or friends.
Real oak parquet flooring was installed in the living areas, while the kitchen, bathrooms, and entrance area are fitted with elegant natural stone slabs. This combination gives the house a warm, high-quality atmosphere while ensuring durability and easy maintenance.
The bathrooms impress with modern fixtures, elegant tiling, and an attractive design. The spacious master bedroom features a built-in wardrobe as well as its own bathroom with a bathtub.
Heating is provided by a modern gas central heating system, ensuring efficient warmth and high living comfort.
The outdoor area includes two terraces – one facing east and one facing south – which provide plenty of sunlight throughout the day. These spaces are ideal for relaxing, dining al fresco, or enjoying cozy moments with family and friends.
Additional features of the property include a private garage and a fully finished basement with utility and storage rooms.
The house combines the comfort of a new build with the charm of a quiet, green, and family-friendly neighborhood.
The house is a non-smoking property.
It is offered for rental for a minimum period of 2 years and a maximum of 5-7 years.
All information is provided to the best of our knowledge but without any guarantee. Changes and subletting are reserved.
Property characteristics
| Age | Over 5050 years |
|---|---|
| Layout | 5+1 |
| EPC | D - Less economical |
| Land space | 376 m² |
| Price per unit | €21 / m2 |
| Condition | After reconstruction |
|---|---|
| Listing ID | 968976 |
| Usable area | 150 m² |
| Total floors | 2 |
What does this listing have to offer?
| Basement | |
| MHD 0 minutes on foot |
| Garage | |
| Terrace |
What you will find nearby
Still looking for the right one?
Set up a watchdog. You will receive a summary of your customized offers 1 time a day by email. With the Premium profile, you have 5 watchdogs at your fingertips and when something comes up, they notify you immediately.




















