
Flat for sale 3+kk • 76 m² without real estateTýřovická, Prague - Radotín
Nabízíme k prodeji světlý a prostorný byt 3+kk o velikosti 76,5 m² včetně vlastní plnohodnotné garáže v osobním vlastnictví.
Byt se nachází ve 2. patře čtyřpodlažního domu v klidné části Prahy – Radotíně. Dům prošel kompletní revitalizací (nový obvodový plášť, zasklená lodžie, nová střecha a vytápění tepelnými čerpadly) a je ve velmi dobrém stavu.
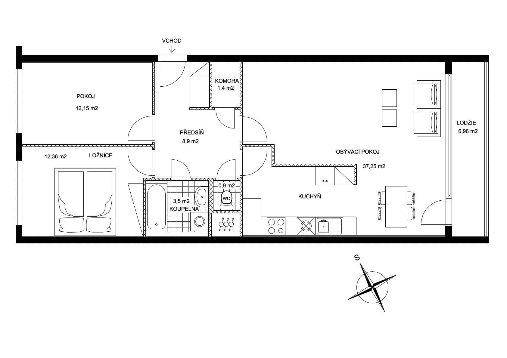
Dispozice bytu nabízí tři samostatné pokoje a kuchyňský kout, centrální chodbu s bezpečnostními dveřmi, koupelnu s vanou, samostatné WC a praktickou komoru. V celém bytě je vinylová podlaha. Díky velkým oknům je byt světlý, tichý a nabízí skvělý výhled.
K bytu náleží sklep, který poskytuje dostatek úložného prostoru.
Velikým benefitem je vlastní garáž (19,6m2) přímo v domě, která poskytuje nejenom pohodlné a bezproblémové parkování, ale i spoustu úložného prostoru.
Vzhledem k poloze domu je možné i bezproblémové parkování před domem.
V domě je také kočárkárna a přímo před domem oplocené dětské hřiště.
V docházkové vzdálenosti najdete školu, školku, polikliniku, obchody i sportovní areály, cyklostezku podél Berounky, plavecký bazén i koupaliště. V blízkosti je autobusová zastávka se spojením na Smíchovské nádraží a nedaleko se nachází také vlakové nádraží s výbornou dostupností do centra (Smíchov a Hlavní nádraží) Lokalita nabízí klid, výborné služby i přírodu v dosahu.
Prohlídky jsou možné po předchozí domluvě.
Pro více informací nás prosím kontaktujte.
Property characteristics
| Available from | 26/11/2025 |
|---|---|
| Building construction | Precast concrete |
| Fully furnished | Partly |
| Listing ID | 968505 |
| EPC | C - Economical |
| Usable area | 76 m² |
| Condition | Very good |
|---|---|
| Layout | 3+kk |
| Floor | 2. floor out of 4 |
| Ownership | Personal |
| Location | Quiet area |
| Price per unit | CZK 156,579 / m2 |
Are you choosing a apartment?
Make sure you have all the important information!
What does this listing have to offer?
| Basement: 3 m² | |
| Loggia balcony: 7 m² |
| Garage | |
| Parking |
What you will find nearby
Still looking for the right one?
Set up a watchdog. You will receive a summary of your customized offers 1 time a day by email. With the Premium profile, you have 5 watchdogs at your fingertips and when something comes up, they notify you immediately.






















