
House for sale • 216 m² without real estateKlammweg 11b Karlsruhe Neureut Baden-Württemberg 76149
Klammweg 11b Karlsruhe Neureut Baden-Württemberg 76149Public transport less than a minute of walkingThe offered 3-family house was built in 1962 on a plot of land measuring 219 m². An energy renovation, including facade insulation and a new roof, has already been carried out in recent years. Due to its location—which is both close to the city and close to nature in Neureut-Heide—the property is suitable for renting to families, couples, singles, and students.
The living area amounts to 216.36 m².
It is distributed among the three residential units as follows:
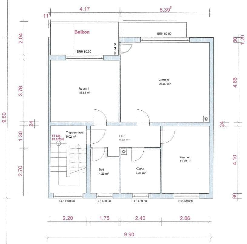
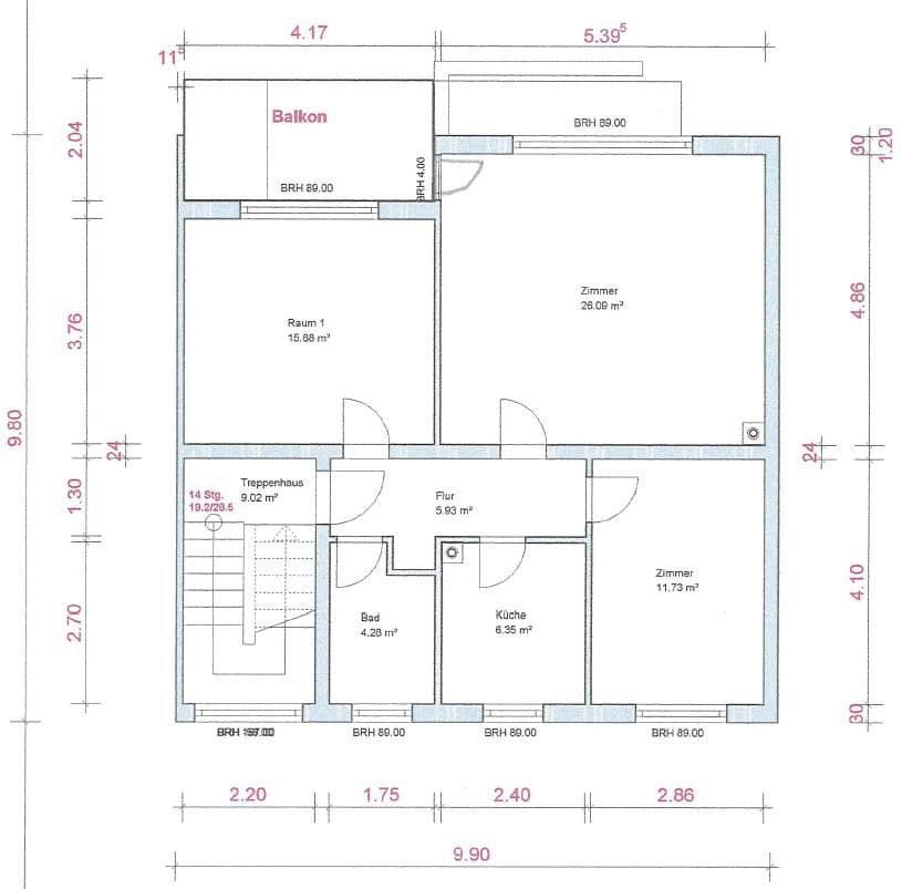
Ground floor: 74.31 m² of living space, a 3-room apartment with kitchen, bathroom, and a balcony with garden access
Upper floor: 74.31 m² of living space, a 3-room apartment with kitchen, bathroom, and balcony
Attic floor: 67.74 m² of living space, a 3-room apartment with kitchen, bathroom, and balcony
All three residential units are rented.
The current annual net cold rent is €24,816.00.
This corresponds to an average cold rent per m² per month of €9.69.
Therefore, there is plenty of potential for rent increases in the coming years.
The 3-family house is very well connected, being conveniently located in the Karlsruhe district of Neureut-Heide. The Neureut-Heide tram stop is only 300 m away.
There are no parking spaces for motor vehicles on the property. However, there is plenty of public parking available in the immediate vicinity.
All shopping opportunities and municipal infrastructure (doctors, schools, day care centers, etc.) are within a few minutes' reach.
For relaxation, the Heidesee is available, where one can unwind with a pleasant walk after a busy day.
The property impresses with its very good structural condition and its well-maintained state in an excellent location.
The house is fully basemented. Each rental apartment has its own separate basement storage room. In addition, a communal laundry room is available.
The beautiful, quiet garden is currently used by the tenant of the ground floor apartment.
In front of the building, there are enough bicycle parking spaces on the property for all residents.
The owner has maintained the property in excellent condition throughout and has already carried out all necessary investments.
The renovations and refurbishments in detail:
Apartment on the ground floor (2015):
• Modernization of the bathroom (new water/electrical installations, wall/floor tiles, sanitary fixtures, towel radiator)
• Bedroom, hallway, and living room with high-quality 3-layer parquet flooring.
• Bedroom and living room with new radiators
• All rooms with new windows, partly floor-to-ceiling
Apartment on the upper floor (2011):
• Modernization of the bathroom (new water/electrical installations, wall/floor tiles, sanitary fixtures, towel radiator)
• All rooms with new windows
Apartment in the attic (new build 2013):
• New roof structure with insulation and new roofing
• Construction of a new balcony
• Solid hardwood flooring in all rooms
• Renewal of interior walls, bathroom, radiators, as well as electrical and water installations
• Installation of new windows
Further modernizations:
• 2020: Installation of a new gas condensing boiler
• 2024: Insulation of the facade and the basement ceiling; replacement of blinds with exterior shutters
• 2024: Balcony renovation for the ground and upper floors
Energy certificate: Energy demand certificate valid until 22.08.2035
Final energy demand: 106.7 kWh/(m²a)
Main energy source: Gas
Energy efficiency class: D
Property characteristics
| Age | Over 5050 years |
|---|---|
| Listing ID | 967990 |
| Usable area | 216 m² |
| Total floors | 3 |
| Condition | Good |
|---|---|
| EPC | D - Less economical |
| Land space | 219 m² |
| Price per unit | €3,421 / m2 |
What does this listing have to offer?
| MHD 0 minutes on foot |
What you will find nearby
Still looking for the right one?
Set up a watchdog. You will receive a summary of your customized offers 1 time a day by email. With the Premium profile, you have 5 watchdogs at your fingertips and when something comes up, they notify you immediately.

















