
House for sale 4+1 • 120 m² without real estateIngolstadt Dünzlau Bayern 85049
Ingolstadt Dünzlau Bayern 85049Public transport less than a minute of walking • GarageModern semi-detached house with a beautiful garden and a great view
Welcome to Dünzlau, Ingolstadt!
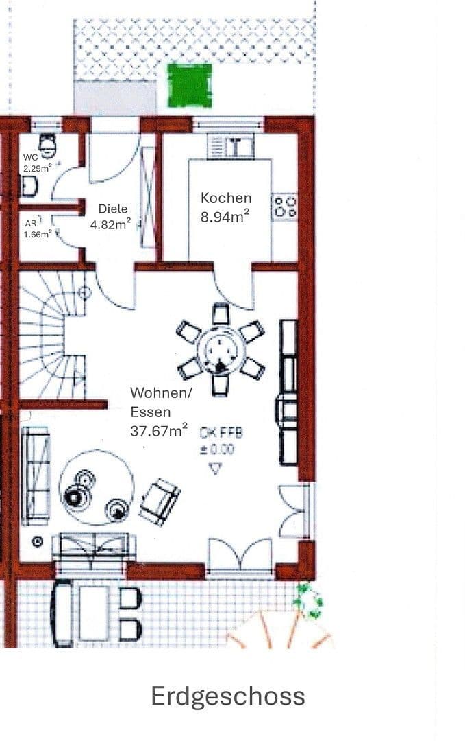
This inviting, well-maintained, and modern semi-detached house offers 120 square meters of living space—enough room for the entire family. With 4 spacious rooms and a modern bathroom equipped with comfortable underfloor heating, this home is ideal for families who value comfort and style. Enjoy relaxing hours in the existing beautiful garden or on the sunny terrace. Thanks to the many bee-friendly perennials, you can observe a variety of insects and butterflies during the spring and summer. A prefabricated garage, as well as a parking space, is also available to make everyday life easier for you. Additionally, a nearly new, modern wood-burning stove provides cozy warmth and comfort during winter.
The semi-detached house is equipped with a photovoltaic system with a capacity of 4.86 kWp. A solar water heater on the roof supplies the hot water.
The exterior of the semi-detached house was freshly painted in 2023. Last year, the open-plan living and dining area received a new designer floor, and the interior walls were also repainted at the end of 2023.
The attic is partially finished (including staircase access, subfloor, windows, and inter-beam insulation). Finishing this area could create an additional living space of approximately 35 m².
The basement, which comprises three spacious rooms, is completely tiled.
The city center of Ingolstadt is just a stone's throw away. In the vicinity, you'll find several shopping options, including a supermarket, and both the elementary and secondary schools, as well as a kindergarten, are not far away. Dünzlau is surrounded by numerous fields and cycle paths that invite you to enjoy various sports activities.
Take advantage of this opportunity to purchase a home in a family-friendly neighborhood. Don't let this dream slip away! Contact us for a viewing! Please, no inquiries from real estate agents!
Property characteristics
| Age | Over 5050 years |
|---|---|
| Condition | Good |
| Listing ID | 967277 |
| Usable area | 120 m² |
| Total floors | 2 |
| Available from | 01/04/2026 |
|---|---|
| Layout | 4+1 |
| EPC | C - Economical |
| Land space | 260 m² |
| Price per unit | €5,542 / m2 |
What does this listing have to offer?
| Basement | |
| MHD 0 minutes on foot |
| Garage | |
| Terrace |
What you will find nearby
Still looking for the right one?
Set up a watchdog. You will receive a summary of your customized offers 1 time a day by email. With the Premium profile, you have 5 watchdogs at your fingertips and when something comes up, they notify you immediately.














