
House for sale 4+1 • 93 m² without real estateHamburg Heimfeld Hamburg 21075
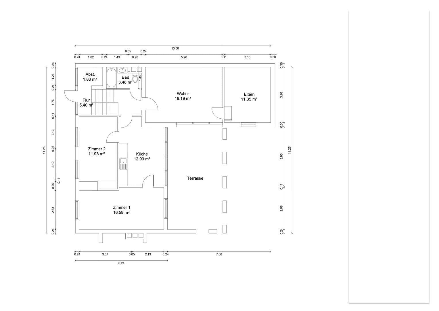
In the green and quiet Schüslerweg, a freshly renovated terraced house awaits you, offering families a structured, warm, yet modern home. Spread over approximately 83 m², four well-designed rooms are available, including three bedrooms that can be used flexibly as children’s rooms, home offices, or guest rooms. The terrace, measuring around 20 m², is partially included in the living area.
A highlight is the newly renovated, modern bathroom that combines comfort with clean lines – ideal for everyday family life, along with the expansive garden.
The triple-glazed windows ensure tranquility, energy efficiency, and a pleasant living environment. The bright living area opens onto the sheltered terrace, inviting you to enjoy relaxed moments outdoors. The house, built in 1957, has been well-maintained throughout, and district heating provides added planning security.
A charming, modernized home in the heart of Hamburg-Heimfeld – perfect for families who want to move in immediately and feel at home.
Hamburg-Heimfeld is one of the most popular residential areas in southern Hamburg – green, quiet, and yet excellently connected. Schools, daycares, and shopping facilities are immediately nearby, making everyday life especially comfortable for families. The Heimfeld S-Bahn station is easily accessible and connects the district directly with downtown Hamburg. Parks, playgrounds, and the nearby Klövensteen Forest offer valuable local recreation right at the doorstep.
Number of rooms: 4
Bedrooms: 3
Bathrooms: 1
Living area: 93 sqm (including half the terrace as listed)
Heating: District heating
Year of heat generator construction: 1990
Energy efficiency: F
Energy certificate valid until: 14.11.2035
Year built: 1957
Property characteristics
| Age | Over 5050 years |
|---|---|
| Condition | After reconstruction |
| Listing ID | 967269 |
| Usable area | 93 m² |
| Total floors | 1 |
| Available from | 24/11/2025 |
|---|---|
| Layout | 4+1 |
| EPC | F - Very uneconomical |
| Land space | 480 m² |
| Price per unit | €4,290 / m2 |
What does this listing have to offer?
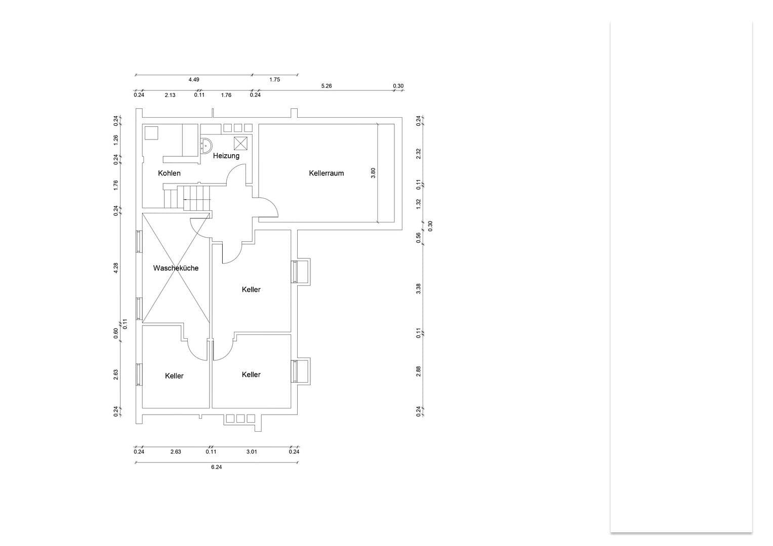
| Basement | |
| Terrace |
| MHD 1 minute on foot |
What you will find nearby
Still looking for the right one?
Set up a watchdog. You will receive a summary of your customized offers 1 time a day by email. With the Premium profile, you have 5 watchdogs at your fingertips and when something comes up, they notify you immediately.











