
House for sale 5+1 • 127 m² without real estateEschenweg 41 Bamberg Bamberg Bayern 96050
You save 20,349 € in broker commission!
This well-maintained terraced mid-house built in 2000 is located in the quiet and popular former NATO settlement – a place that combines a sense of security, community spirit, and family-friendly living.
Upon entering, you will feel welcome: The ground floor opens up to a spacious living room of approximately 34 m² that impresses with its brightness and openness. From here, you gain direct access to the sunny west terrace – the perfect spot for relaxed evenings at sunset, convivial barbecue gatherings, or a glass of wine after a fulfilling day. The separate kitchen invites shared cooking, while a guest WC and the friendly entrance area complete this level.
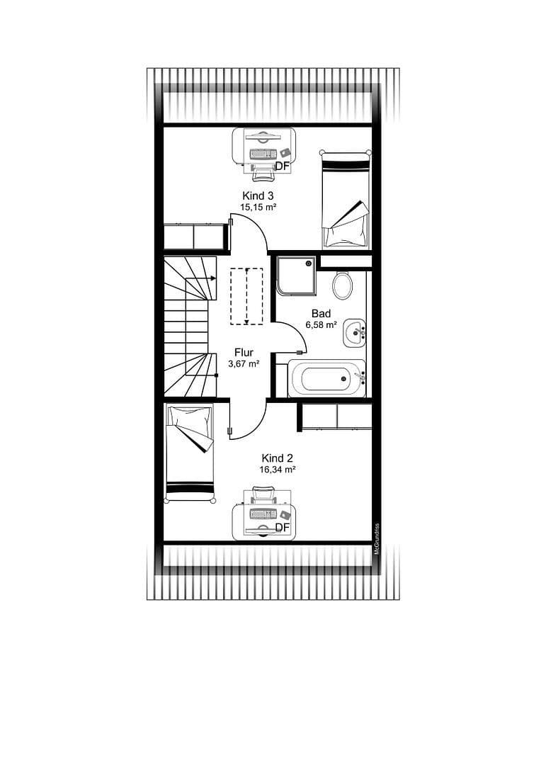
On the upper and attic floors, you will find a total of four cozy bedrooms and two modern bathrooms – ample space for the whole family, for guests, or even for an inspiring home office. Here, every family member can find their personal retreat.
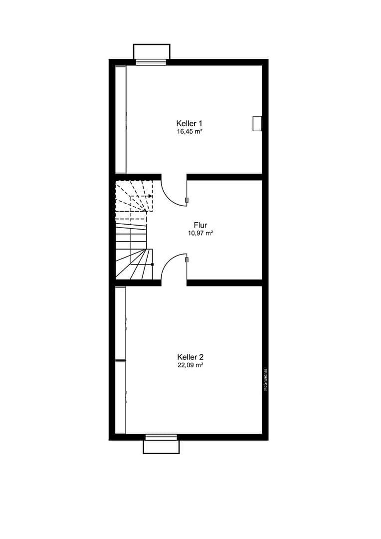
The full basement offers additional space: two versatile rooms for hobbies or storage, along with a practical laundry room, make the house a true space wonder in everyday life!
The house is ideally suited for families of up to five people – plenty of room for children to play, learn, and grow up.
The offer is rounded off by two outdoor parking spaces, available for purchase at 20,000 €.
This terraced mid-house is not only well-maintained and in excellent condition, but also a place where your family life can flourish completely. Move in, feel at home – and enjoy every moment in your new residence.
Eschenweg in the former "NATO settlement" in eastern Bamberg is more than just an address – it is a place to arrive and feel comfortable. The quiet residential area, characterized by ample greenery and a harmonious neighborhood, has long since established itself as a popular retreat for young families.
Here, children can still play carefree on safe streets while you enjoy the exceptional quality of living. The settlement exudes an atmosphere of security and community – a genuine feeling of home that you experience immediately.
Despite the idyllic location, you are excellently connected: Only about 500 meters away, the city bus stop—with services running every 15 minutes—conveniently takes you to the city center. By car, you can reach the highway access point in just about 1,000 meters – perfect for commuters or trips to the surrounding area.
Shopping facilities, schools, kindergartens, doctors, and leisure amenities are all within close proximity, ensuring that you and your family enjoy short distances and the highest quality of living.
Eschenweg combines peaceful, nature-oriented living with excellent infrastructure – creating the ideal environment where family life and everyday dreams go hand in hand.
Property characteristics
| Age | Over 5050 years |
|---|---|
| Condition | Good |
| Listing ID | 967225 |
| Usable area | 127 m² |
| Total floors | 3 |
| Available from | 23/11/2025 |
|---|---|
| Layout | 5+1 |
| EPC | B - Very economical |
| Land space | 176 m² |
| Price per unit | €4,330 / m2 |
What does this listing have to offer?
| Basement | |
| MHD 7 minutes on foot |
| Parking | |
| Terrace |
What you will find nearby
Still looking for the right one?
Set up a watchdog. You will receive a summary of your customized offers 1 time a day by email. With the Premium profile, you have 5 watchdogs at your fingertips and when something comes up, they notify you immediately.

























