
Flat to rent 2 bedroom • 65 m² without real estateOkenstraße 38 Nürnberg Steinbühl Bayern 90443
Okenstraße 38 Nürnberg Steinbühl Bayern 90443Public transport 2 minutes of walkingBelow is the English translation of the text contained within the XML tag:
With this exposé we present to you a bright and friendly 2-room apartment in the beautiful, centrally located Nuremberg district of Steinbühl. The apartment is situated on the second floor of a very well-maintained multi-family house.
The apartment impresses in particular with its brightness. The modern layout and the well-kept communal property complete the appealing overall impression of the apartment.
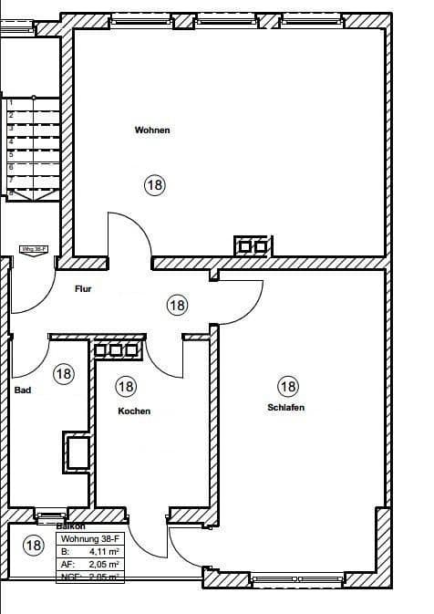
You enter the apartment via the hallway, which offers ample space for a wardrobe. From here, you first reach the bathroom, which is equipped with a bathtub and also features a window.
Next to the bathroom is the bright and spacious kitchen, which invites you to linger, cook, and relax, and it provides direct access to the balcony.
Directly opposite the kitchen you will find the generous living room. Due to its size, it offers a variety of possibilities to adapt the apartment to your needs.
At the end of the hallway is the cozy-looking bedroom. Here, you will find room for a bed as well as for wardrobes and dressers.
Additionally, extra storage space is provided by the basement compartment allocated to the apartment.
The property is located in a very well-maintained multi-family house in the beautiful and desirable Steinbühl district. From here, you can reach the Nuremberg city center within a few minutes.
Due to the ideal transport connections, all public transportation options (subway, S-Bahn, bus, tram) are within a few minutes’ walk.
Everyday shopping facilities such as supermarkets, pharmacies, bakeries, doctors, etc., are available in the immediate vicinity. Similarly, schools and kindergartens as well as the popular Südstadtbad are in the direct surroundings.
By car, you immediately reach the Frankenschnellweg as well as Federal Road 4R, which rings the city and provides connections in all directions (e.g., Ingolstadt, Munich, Regensburg, Berlin, Stuttgart, etc.).
- Gas central heating (monthly installments are to be paid directly to the supplier and are NOT included in the total rent)
- Double-glazed plastic windows
- Daylight bathroom with a bathtub
- Appealing floor plan
- Balcony
- Central location (a few minutes to the city center)
- Optimal connection to public transportation
- Comprehensive modernization of the communal property in 2024
- Spacious basement compartment
Property characteristics
| Age | Over 5050 years |
|---|---|
| Condition | Good |
| Floor | 2. floor out of 4 |
| EPC | D - Less economical |
| Price per unit | €11 / m2 |
| Available from | 15/12/2025 |
|---|---|
| Layout | 2 bedroom |
| Listing ID | 966947 |
| Usable area | 65 m² |
What does this listing have to offer?
| Balcony | |
| MHD 2 minutes on foot |
| Basement |
What you will find nearby
Still looking for the right one?
Set up a watchdog. You will receive a summary of your customized offers 1 time a day by email. With the Premium profile, you have 5 watchdogs at your fingertips and when something comes up, they notify you immediately.












