
Flat to rent 3+1 • 60 m² without real estateEibenweg 7 Stuttgart Degerloch Baden-Württemberg 70597
Eibenweg 7 Stuttgart Degerloch Baden-Württemberg 70597Public transport 8 minutes of walkingCharming 3-room apartment on the first floor in the popular Waldau area.
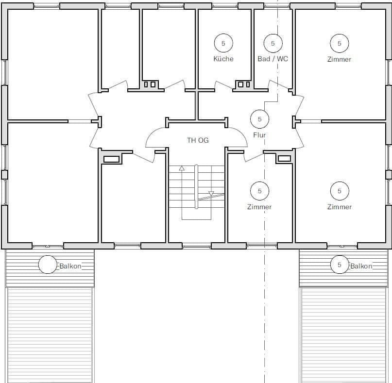
Located in the sought-after residential area of Stuttgart-Degerloch, in the quiet district of Waldau, we offer you a cozy apartment that has been completely newly renovated from scratch and features a well-thought-out floor plan for rent.
Highlights of the Apartment
- 3 separate rooms
- Bright bathroom with a bathtub
- Private basement storage compartment
- New gas-fired central heating for individual temperature control
- Balcony facing southwest
Living Area and Layout
The apartment has an area of approximately 60 m². The three separate rooms offer versatile usage possibilities, be it as a living room, bedroom, or study.
Location and Infrastructure
Eibenweg 7 is located in the popular Stuttgart district of Degerloch, specifically in the Waldau area. The location impresses with:
- Very good light rail connection within walking distance
- Ample free parking right outside the door
- Quiet, established residential area
- Proximity to recreational areas
- Good infrastructure with shopping facilities in the vicinity
Boston Immobilien GmbH
Baronstraße 4, 92533 Wernberg-Köblitz
Tel.: +49 711 7220 33 44
Email: info@boston-immo.de
VAT ID No. DE413891480
Managing Director: Dr. Martin Kunschert
Company Headquarters: Wernberg-Köblitz, Commercial Register: Amberg HRB 7027
Property characteristics
| Age | Over 5050 years |
|---|---|
| Condition | After reconstruction |
| Floor | 1. floor out of 3 |
| EPC | G - Extremely uneconomical |
| Price per unit | €22 / m2 |
| Available from | 19/11/2025 |
|---|---|
| Layout | 3+1 |
| Listing ID | 966791 |
| Usable area | 60 m² |
What does this listing have to offer?
| Balcony | |
| MHD 8 minutes on foot |
| Basement |
What you will find nearby
Still looking for the right one?
Set up a watchdog. You will receive a summary of your customized offers 1 time a day by email. With the Premium profile, you have 5 watchdogs at your fingertips and when something comes up, they notify you immediately.













