
Flat to rent 4+1 • 101 m² without real estateStuttgart Zuffenhausen Baden-Württemberg 70435
If you do not meet the requirements, we kindly ask you to refrain from inquiring.
Requirements:
• SCHUFA report for tenants (without a positive credit rating/SCHUFA report, a viewing is not possible)
• Maximum 4 persons (the apartment is unfortunately not suitable for more)
• Regular income (proof of income will be required later)
• No JOBCENTER clients
• No large pets (small pets may be considered by arrangement)
The apartment is currently being renovated and will be available from January 1, 2026. Viewing appointments will mostly be scheduled on weekends.
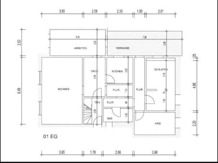
The spacious and modern 4-room ground-floor apartment is located in a two-family house in the center of Zuffenhausen and features exactly 4 rooms. Since the floor heating is located in one of the smaller rooms (see floor plan), it is up to you whether you want to include that room for someone.
The following renovations and modernizations have been carried out in recent years: complete floor renovation, new flooring, thermal insulation, renovated walls, double-glazed plastic windows, complete bathroom renovation, fitted kitchen (including appliances), renewed water and gas pipes, and updated electrical wiring (in 1970, 1992, 2007–2012, and 2015). The apartment impresses especially with its well-maintained, high-quality features, its spacious layout, and its central location. The apartment is comfortably heated by a gas floor heating system.
The ground-floor apartment is situated on a quiet side street in the heart of Zuffenhausen, only 50 meters from the main shopping street “Unterländerstraße.” Shops for daily needs, as well as doctors, pharmacies, banks, daycare centers, and much more can be reached within a few minutes on foot. The U-Bahn stop “Kirchtalstraße” (U15) is only a 1-minute walk away, while the stops “Zuffenhausen Rathaus” (U15) and “Kelterplatz” (U7) are a 2-minute walk away. Zuffenhausen station is approximately a 5-minute walk away (serviced by S-Bahn lines S4, S5, and S6), which will get you to Stuttgart Central Station in 7–9 minutes. By car, downtown Stuttgart is about a 15-minute drive (approximately 6 km) away. There is also good access to federal highways B10 and B27 as well as the A81 autobahn. In the surrounding area, many large companies such as Porsche, Bosch, Mahle-Behr, and Alcatel-Lucent can be found.
The apartment has been renovated and modernized and offers the following high-quality features:
• A fitted kitchen complete with electrical appliances (refrigerator with freezer compartment, cooktop, oven, microwave, extractor hood, dishwasher, as well as base and wall cabinets)
• A bright bathroom with a shower, washbasin, WC, ceiling-mounted recessed lighting, towel radiator, and a wall cabinet with a mirror
• An outdoor terrace accessible from the kitchen
• In the living room, a feature wall with high-quality tiles for added comfort
• Quality laminate flooring throughout all rooms
• High-quality tiles in the entire hallway along with thermal insulation
• Double-glazed plastic windows
Property characteristics
| Age | Over 5050 years |
|---|---|
| Condition | Good |
| Listing ID | 967091 |
| Price per unit | €13 / m2 |
| Available from | 01/11/2025 |
|---|---|
| Layout | 4+1 |
| Usable area | 101 m² |
What does this listing have to offer?
| Wheelchair accessible | |
| MHD 1 minute on foot |
| Basement | |
| Terrace |
What you will find nearby
Still looking for the right one?
Set up a watchdog. You will receive a summary of your customized offers 1 time a day by email. With the Premium profile, you have 5 watchdogs at your fingertips and when something comes up, they notify you immediately.
















