
Flat to rent 4+kk • 92 m²Dismanova, Prague - Stodůlky
Dismanova, Prague - StodůlkyPublic transport 3 minutes of walking • Equipped • Parking • GarageInterested?
Communicate all private owners and save CZK 33,990 on commissions.
Vzhledem k vysokému zájmu o námi inzerované nemovitosti žádáme všechny vážné zájemce o prohlídky, aby nás pro rychlý a efektivní postup kontaktovali výhradně skrze formulář níže. Následně Vám emailem zašleme krátký osobní dotazník, ve kterém bude třeba uvést několik základních informací. Po vyplnění tohoto dotazníku obdržíte informaci o dalším postupu. Než se setkáme na prohlídce, podívejte se prosím na výhody bydlení s námi na webu Dokonalý nájemník v sekci „Hledám bydlení“. Tuto sekci najdete přímo v horním menu našich internetových stránek.
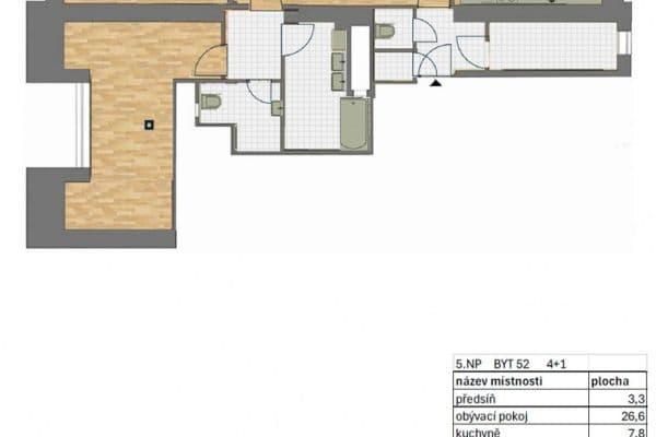
Nabízíme k podnájmu prostorný byt 4+kk s neprůchozími pokoji, o celkové výměře 92 m², ve 2. nadzemním podlaží cihlového domu s výtahem na Praze 5 - Stodůlky. Byt je podnajímán zařízený nábytkem, který si můžete prohlédnout ve fotogalerii, což umožňuje pohodlné nastěhování a poskytuje vysoký komfort bydlení. Kuchyňská linka, umístěná prakticky v rohu obývacího pokoje, je vybavena všemi nezbytnými spotřebiči (lednice, trouba, varná deska, digestoř, myčka a mikrovlnná trouba). Koupelna je laděna do oranžových odstínů a disponuje vanou, žebříkovým radiátorem a navíc i pračkou. Toaleta s vlastním umyvadlem je samostatná. Velkou předností této nemovitosti je zastřešená terasa s výhledem do vzrostlých stromů, která nabízí příjemné posezení. K bytu náleží i kryté parkovací stání, které Vám zajistí bezproblémové parkování.
Nemovitost je určena výhradně k dlouhodobému podnájmu a je k nastěhování od 14.2.2026.
Dům se nachází v klidné lokalitě plné zeleně, v těsné blízkosti Centrálního parku, který nabízí ideální prostor pro procházky, pikniky i sportovní vyžití. Nedaleko najdete také rozlehlý přírodní park Prokopské údolí. V docházkové vzdálenosti se nachází zastávky autobusů a stanice metra B – Hůrka, která poskytuje přímé a rychlé spojení do centra města. Lokalita je výhodná i pro cestování autem díky snadnému přístupu na dálnici D5 a Městský okruh. Okolí poskytuje kompletní občanskou vybavenost, včetně OC Luka Living, škol, školek a dalších služeb.
Poznámka k ceně: Poplatky za služby vč. pojištění domácnosti a odpovědnosti činí 4.921 Kč/měsíc + elektřina, která bude převedena na nájemníka. Při podpisu smlouvy nájemník hradí první nájemné, dále rezervaci a vratnou kauci ve výši jedné měsíční platby.
Pokud se nemůžete na prohlídku bytu dostavit osobně, je možné domluvit prohlídku formou videohovoru. V reakci na tento inzerát o sobě prosím uvádějte alespoň základní informace (počet osob, zaměstnání, od kdy hledáte bydlení, zda máte domácího mazlíčka). Děkujeme.
Property characteristics
| Available from | 14/02/2026 |
|---|---|
| Building construction | Brick |
| Fully furnished | Fully furnished |
| Listing ID | 966529 |
| EPC | G - Extremely uneconomical |
| Usable area | 92 m² |
| Price per unit | CZK 369 / m2 |
| Condition | Very good |
|---|---|
| Layout | 4+kk |
| Floor | 1. floor |
| Ownership | Personal |
| Sewage | Public sewage |
| Water | From a public source |
What does this listing have to offer?
| Garage | |
| MHD 3 minutes on foot |
| Parking |
What you will find nearby
Interested?
Communicate all private owners and save CZK 33,990 on commissions.
Still looking for the right one?
Set up a watchdog. You will receive a summary of your customized offers 1 time a day by email. With the Premium profile, you have 5 watchdogs at your fingertips and when something comes up, they notify you immediately.































