
Flat to rent 4+1 • 100 m² without real estateHradeckých, Prague - Nusle
Interested?
Communicate all private owners and save CZK 35,000 on commissions.
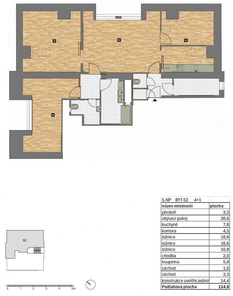
Nabízím k pronájmu velmi pěkný a prostorný byt 4+1 v 5. patře činžovního domu (cihla), 100 m2, podkroví, bez výtahu, bez balkonu, zařízený nábytkem, max. pro 4 dospělé osoby. V bytě jsou neprůchozí pokoje.
Praha 4, metro Pražského povstání;
Kuchyňská linka je vybavena sklokeramickou varnou deskou, elektrickou troubou, mikrovlnnou troubou, myčkou a lednicí s mrazákem.
Koupelna s vanou a se sprchovou zástěnou, 2x umyvadlo, 2x samostatné WC, 5.pokoj nebo skladovací komora. K dispozici je pračka a sušička.
Podlahy plovoucí a dlažba. Okna plastová trojskla z roku 2025, s roletami. Střešní okna stíněná vně roletou a uvnitř termožaluzií.
K dispozici je společná zahrada.
Parkování na ulici, modrá a fialová zóna 8:00-20:00.
Dům se nachází v bezprostřední blízkosti metra, 10 minut chůze do zeleně (Kavčí hory, Vyšehrad). Lokalita s dobrou občanskou vybaveností (Tesco, Penny, OC Arkády) a dopravní dostupností MHD.
K nastěhování ihned.
Energetický štítek budovy G, budova z roku 1937
Nájem: 35.000,-
Poplatky (voda, el, plyn, odpad, úklid): 4.860,-
Kauce: 1 měsíční nájem
Pro více informací a sjednání prohlídky mne prosím kontaktujte skrz zprávy či komunikační platformu.
Property characteristics
| Available from | 05/01/2026 |
|---|---|
| Building construction | Brick |
| Fully furnished | Fully furnished |
| Listing ID | 977720 |
| Usable area | 100 m² |
| Condition | Very good |
|---|---|
| Layout | 4+1 |
| Floor | Ground floor |
| Location | Centre |
| Price per unit | CZK 350 / m2 |
What does this listing have to offer?
| Parking |
What you will find nearby
Interested?
Communicate all private owners and save CZK 35,000 on commissions.
Still looking for the right one?
Set up a watchdog. You will receive a summary of your customized offers 1 time a day by email. With the Premium profile, you have 5 watchdogs at your fingertips and when something comes up, they notify you immediately.


















