
House for sale 5+1 • 141 m² without real estate, Brandenburg
, BrandenburgPublic transport 6 minutes of walking • ParkingHere’s the English translation of the text:
Property Description
Direct sale from the owner – no broker’s commission!
Welcome to your new oasis of well-being in Eichwalde near Berlin – a charming, green location by Zeuthen Lake. Here, a modern single-family house (new construction 2025) with a garden has been built, perfectly combining tranquility, comfort, and individuality.
The garden is not yet finished, offering plenty of space for your own design ideas – whether natural, family-friendly, or low-maintenance.
Only a few minutes on foot separate you from the water and everyday life:
• 3 minutes to the bathing area at Zeuthen Lake
• 1 minute to the nearest bus stop
A home for families, nature enthusiasts, and water sports lovers seeking something special.
________________________________________
Features
The house was built according to the latest energy standards (EnEV 2024) and impresses with thoughtful space planning, high-quality materials, and state-of-the-art building technology.
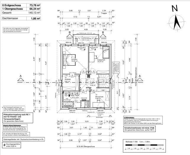
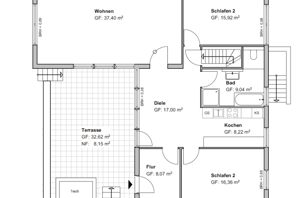
Ground Floor:
• Bright, spacious living and dining area with floor-to-ceiling windows
• Prepared connection for a fireplace stove
• Access to the terrace via a bay window
• Spacious kitchen-diner with room for individual design (the kitchen can be created to your own specifications)
• Guest shower room with high-quality sanitary fixtures
• Utility room equipped with modern technology
Upper Floor:
• Two bedrooms/guest rooms, each with balcony access
• Additionally, a dressing room and an office/home office
• Large family bathroom featuring:
o Bathtub
o Large shower
o Double sink
o Hand-selected tiles and branded fixtures
Technology & Energy:
• Year of construction 2024 / Completion 2025
• Energy-efficient according to the latest standards
• Photovoltaic system prepared (empty conduits available)
• Underfloor heating, modern heating technology, fiber-optic connection
• All media connections are installed to the current state of technology
Location, Location, Location – Only 3 Minutes to Zeuthen Lake!
Start your day with the sunrise over the water – or enjoy the view right from one of the balcony rooms of your new home.
Eichwalde is pure idyll!
Located at the doorstep of the capital and in the green belt, Eichwalde – an unincorporated community in the Dahme-Spreewald district – offers the perfect combination of nature, recreation, and proximity to the city, situated on Berlin’s southeastern border.
The single-family house is in a quiet side street, just a 3-minute walk from Zeuthen Lake (or the Dahme River). The surroundings are characterized by well-maintained single-family homes on spacious plots in an exclusively residential area without through traffic – offering you peace, privacy, and a rural atmosphere.
In the summer months, the nearby bathing area is a popular destination for swimmers and water sports enthusiasts, while in winter a soothing calm prevails. Walks along Havellandstraße or beside the Dahme invite you to slow down.
Along the water, you will find cozy excursion restaurants, cafés, and marinas – ideal for boat owners, sailors, or stand-up paddlers. Hardly any region around Berlin offers so many opportunities for leisure and nature experiences right on your doorstep.
Transport & Infrastructure:
Just a few meters from the house, you’ll find the bus stop with services toward the Zeuthen S-Bahn station and Königs Wusterhausen S-Bahn station. Despite the proximity to all these transport links, the house is pleasantly quiet on a side street.
The Eichwalde S-Bahn station is approximately 7 minutes by bicycle or 5 minutes by car. From there, lines S8 and S46 quickly and directly connect you to Berlin-Westend, Südkreuz, or Königs Wusterhausen.
All everyday necessities are available around the station:
Supermarkets, pharmacies, bakeries, restaurants, day care centers, and schools. The Humboldt-Gymnasium Eichwalde is nearby, as are numerous kindergartens and elementary schools in the surrounding communities of Schulzendorf, Zeuthen, and Schmöckwitz.
For larger purchases and weekend outings, the A10 Center in Wildau (about 12 minutes by car) or the Waltersdorf commercial center with IKEA and many other specialty stores are excellent options.
By car you can reach:
Berlin-Alexanderplatz in about 35 minutes
Kurfürstendamm in about 35 minutes
Here, on the southeastern edge of the capital, awaits a village-like, idyllic residential setting with high recreational value – quiet, green, and excellently connected.
It’s a place where you live in harmony with the seasons and look forward to coming home every day.
Features (Recap)
The house was built according to the latest energy standards (EnEV 2024) and impresses with thoughtful space planning, high-quality materials, and state-of-the-art building technology.
Ground Floor:
• Bright, spacious living and dining area with floor-to-ceiling windows
• Prepared connection for a fireplace stove
• Access to the terrace via the conservatory/bay window
• Spacious kitchen-diner with room for individual design
• Guest shower room with high-quality sanitary fixtures
• Utility room equipped with modern technology
Upper Floor:
• Two bedrooms/guest rooms, each with balcony access
• Additionally, a dressing room and an office/home office
• Large family bathroom featuring:
o Bathtub
o Large shower
o Double sink
o Hand-selected tiles and branded fixtures
Technology & Energy:
• Year of construction 2024 / Completion 2025
• Energy-efficient according to the latest standards
• Photovoltaic system prepared (empty conduits available)
• Underfloor heating, modern heating technology, fiber-optic connection
• All media connections are installed to the current state of technology
Additional Documents
All construction and planning documents for the property are fully available:
• Architectural drawings, construction documents, and a complete record of the construction process
• All invoices from installers and tradespeople
• Complete electrical and installation plans
• Detailed site plans and a description of the property’s features
This comprehensive documentation makes the entire construction process of the house transparent and fully traceable.
Property characteristics
| Age | Over 5050 years |
|---|---|
| Layout | 5+1 |
| EPC | A - Extremely economical |
| Land space | 525 m² |
| Price per unit | €5,667 / m2 |
| Condition | New-build |
|---|---|
| Listing ID | 966485 |
| Usable area | 141 m² |
| Total floors | 1 |
What does this listing have to offer?
| Balcony | |
| MHD 6 minutes on foot |
| Parking | |
| Terrace |
What you will find nearby
Still looking for the right one?
Set up a watchdog. You will receive a summary of your customized offers 1 time a day by email. With the Premium profile, you have 5 watchdogs at your fingertips and when something comes up, they notify you immediately.









