
Flat for sale 2+kk • 67 m² without real estateTorstraße 220 Berlin Mitte Berlin 10115
Below is the English translation of the provided text:
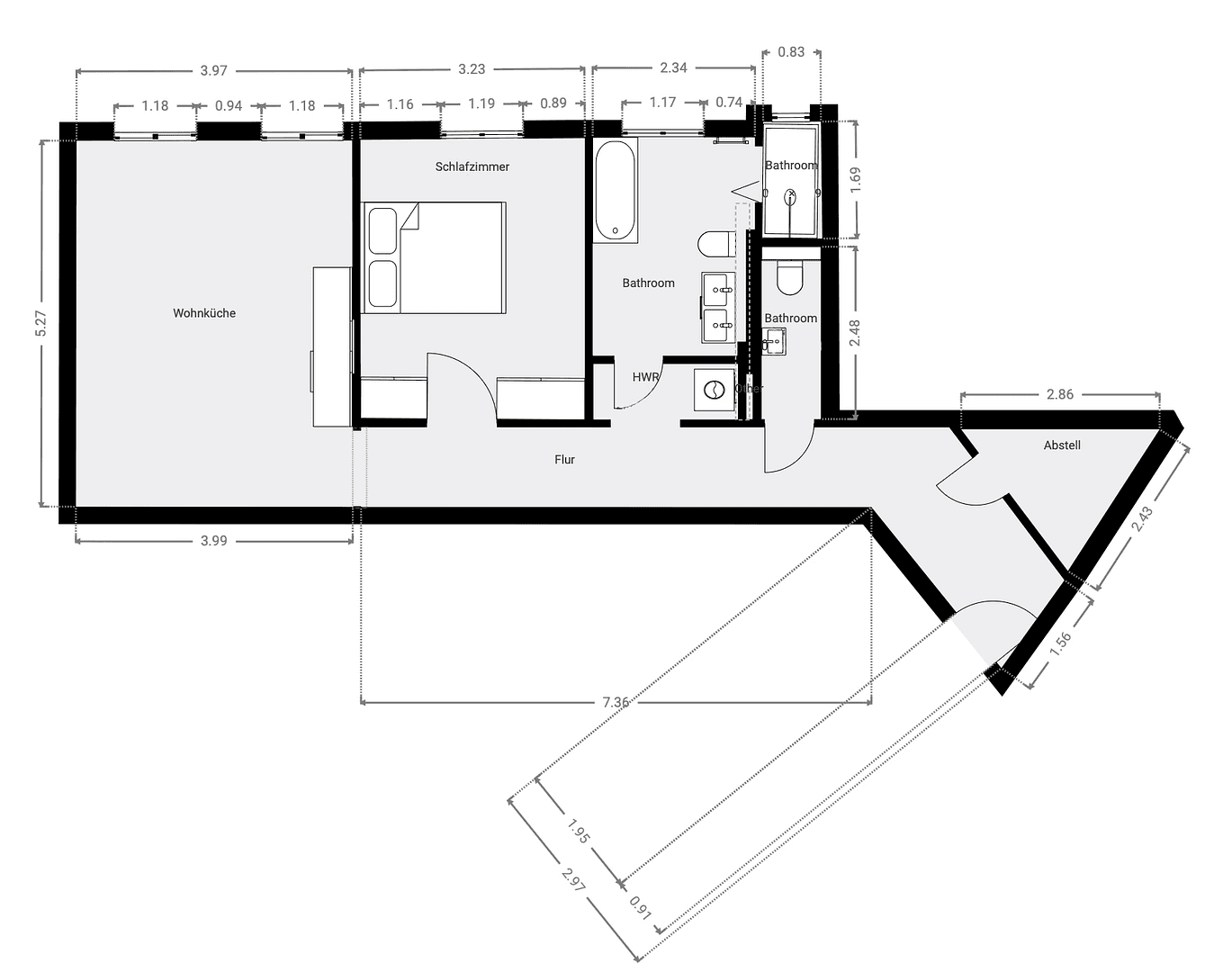
This exceptionally high-quality, fully refurbished period apartment is located on the second floor of a listed Gründerzeit building from 1900 on Torstraße in Berlin-Mitte. The apartment immediately impresses with its spectacular ceiling height of approximately 360 cm and the restored historic gypsum stucco, which bestows a special spaciousness and elegance on the property. A modern living concept has been implemented on approximately 67 m², combining the charm of an old building with contemporary design. The newly laid herringbone oak parquet floor adds warmth and a premium atmosphere. From the hallway, all rooms are perfectly arranged: first a practical storage room, followed by a stylish guest toilet with designer wallpaper. Next, you reach the utility room with an integrated washing machine connection and plenty of storage space. The large bathroom is an absolute highlight of the apartment. Handcrafted cement tiles, high-quality wall ceramics, a Duravit washbasin unit, black fittings from Steinberg, and an inset shower area beneath a restored brick arch create an exclusive, hotel-like ambiance. The bathtub and spacious shower form a harmonious overall design. The quiet bedroom, with its high windows and stucco ceiling, offers a pleasant retreat atmosphere. At the end of the hallway, the light-flooded living and kitchen area opens up, impressing with its high ceilings and outlook towards the courtyard. The displayed kitchen is part of a professional home staging and is used to better illustrate the spatial concept; all connections for a customized kitchen solution have been prepared. The furniture and accessories shown are not included in the purchase price but can be bought separately upon request.
A new gas-fired individual heater, high-quality brand products, and a coherent overall concept complete this exceptional property.
This apartment is the perfect choice for buyers looking for design, high-quality refurbishment, and authentic old building charm in the heart of Berlin.
The apartment is located in the absolute best area of Berlin-Mitte, right on the famous Torstraße – one of the liveliest and most sought-after hotspots of the capital. Few streets represent modern, creative, and international Berlin as strongly as Torstraße: here, trends, gastronomy, design, architecture, and urban lifestyle come together.
In the immediate vicinity, you will find trendy cafés, upscale restaurants, bars, concept stores, galleries, and small boutiques – everything that defines Berlin-Mitte today. The area is characterized by historic old buildings, contemporary architecture, and a unique cultural diversity. The transport connections are excellent: several tram and U-Bahn lines (including U8, U2, U6 as well as various tram lines) can be reached on foot in just a few minutes. From Alexanderplatz, Rosenthaler Platz, or Hackescher Markt, all major transport hubs of the city are accessible in no time. At the same time, quiet side streets, green courtyards, and numerous small parks in the area offer pleasant retreats from urban life. Torstraße is one of the streets that has seen enormous appreciation in recent years and is now considered a premium location for condominiums – both for owner-occupiers and for investors. In short: one of the most desirable, vibrant, and value-retaining locations in Berlin – urban, authentic, central, and full of character.
• Complete renovation in 2025 – first occupancy after refurbishment
• Impressive ceiling height of approximately 360 cm with restored gypsum stucco elements
• Newly laid oak herringbone parquet (PARAT, natural oil/wax)
• High-quality gas-fired individual heater (new in 2025)
• Listed Gründerzeit building from 1890 (ensemble historical monument protection)
• Large designer bathroom featuring:
– Handcrafted cement tiles
– Wall tiles “Lume Bone Lux”
– Duravit Qatego washbasin unit
– Black Steinberg fittings
– Bathtub & spacious shower
– Inset shower area beneath a historic brick arch
• Separate guest toilet with high-quality designer wallpaper by Hooked on Walls
• Utility room with washing machine connection & storage space
• Modern new electrical installations & new spotlights
• High-quality wooden doors with black fittings
• Practical storage room right at the entrance
• Open living and kitchen area facing the courtyard
• The displayed kitchen is part of home staging – connections for a fitted kitchen are available
• All furniture, lamps & decorations are not included in the purchase price but can be acquired separately upon request
• Quiet bedroom with stucco, tall windows, and an elegant atmosphere
• Basement storage compartment available
• Bicycle parking spaces in the inner courtyard
• Highly sought-after location on the famous Torstraße – right in the heart of Berlin-Mitte
Has this offer caught your interest?
Then we look forward to receiving your inquiry. Please use the contact form for this or call us directly if you would like further information or to arrange a viewing appointment.
This offer is made directly by the owner and is commission-free.
All information has been compiled to the best of our knowledge. However, we cannot guarantee the completeness, accuracy, and timeliness of the information.
Property characteristics
| Age | Over 5050 years |
|---|---|
| Condition | After reconstruction |
| Floor | 2. floor out of 5 |
| EPC | D - Less economical |
| Price per unit | €8,582 / m2 |
| Available from | 17/11/2025 |
|---|---|
| Layout | 2+kk |
| Listing ID | 965438 |
| Usable area | 67 m² |
What does this listing have to offer?
| Basement |
| MHD 2 minutes on foot |
What you will find nearby




Flat for saleColbe Str. 23 Berlin Friedrichshain Friedrichshain Berlin 10247- 2+kk
- 86 m²
€665,000 + €343
Still looking for the right one?
Set up a watchdog. You will receive a summary of your customized offers 1 time a day by email. With the Premium profile, you have 5 watchdogs at your fingertips and when something comes up, they notify you immediately.





















