
Flat for sale 4+kk • 133 m² without real estateAschaffenburg Aschaffenburg Bayern 63739
Aschaffenburg Aschaffenburg Bayern 63739Public transport less than a minute of walking • LiftModern living on one level – a ground floor apartment with a large garden and terrace!
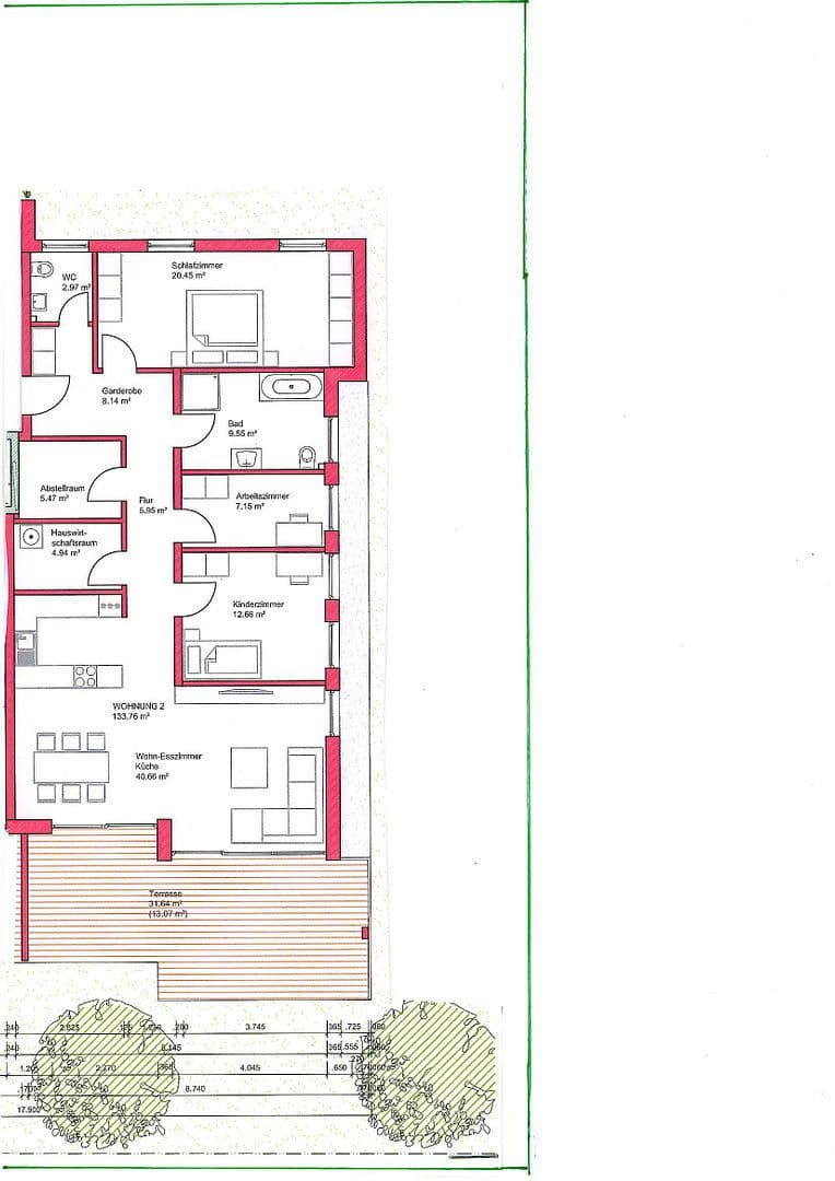
Whether alone, as a couple, or with the whole family – this modern ground floor apartment impresses with its well-thought-out layout, generous living space, and high level of comfort over approximately 132 m² of living area.
The apartment features a spacious bedroom, a children's room, and a separate study – ideal for a home office. A large bathroom with both a bathtub and a shower, as well as a separate guest WC, provide added comfort. Practical storage options are offered by the storage room and the separate utility room.
The highlight of the apartment is the open-plan living and dining area with an integrated kitchen – here, cooking, dining, and relaxing merge into one central living space. From here, you can step out onto the over 31 m² large, partially covered terrace that invites you to enjoy the outdoors.
A special feature is the approximately 375 m² large garden that surrounds the apartment, offering plenty of space for children to play, for gardening enthusiasts, or for hosting social gatherings.
Garden area approx. 375 m² plus €20,000
Underground parking space available for an additional €30,000
The shell construction has been completed. The apartment is expected to be ready for occupancy in September 2026.
This property is located in an absolutely prime location at Aschaffenburg’s Godelsberg.
Within walking distance, the expansive Fasanerie Park with its beer gardens and idyllic green spaces invites you to relax.
Particularly noteworthy is the excellent infrastructure: numerous shopping opportunities, kindergartens, and schools are in the immediate vicinity. Secondary schools, the university, the pedestrian zone with a variety of shops, restaurants, cafes, the theater, and much more are easily accessible.
The connection to public transportation is excellent. Via the nearby highways A3 (Frankfurt/Würzburg) and A45 (Hanau/Gießen), for example, Frankfurt Airport can be reached in just about 30 minutes.
Energy Performance Certificate
Final energy requirement: 23.5 kWh/(m²a)
Energy efficiency class: A+
Primary energy source: Electricity
Year of construction: 2025
Property characteristics
| Age | Over 5050 years |
|---|---|
| Listing ID | 964631 |
| Price per unit | €7,060 / m2 |
| Layout | 4+kk |
|---|---|
| Usable area | 133 m² |
What does this listing have to offer?
| Wheelchair accessible | |
| Lift | |
| Terrace |
| Basement | |
| MHD 0 minutes on foot |
What you will find nearby
Still looking for the right one?
Set up a watchdog. You will receive a summary of your customized offers 1 time a day by email. With the Premium profile, you have 5 watchdogs at your fingertips and when something comes up, they notify you immediately.









