
House for sale 4+1 • 170 m² without real estate, Lower Saxony
This charming thatched roof house is located in the heart of Luhmühlen.
In 2007, the house was converted from a semi-detached house into a single-family home. The layout was changed and large, family-friendly rooms were created.
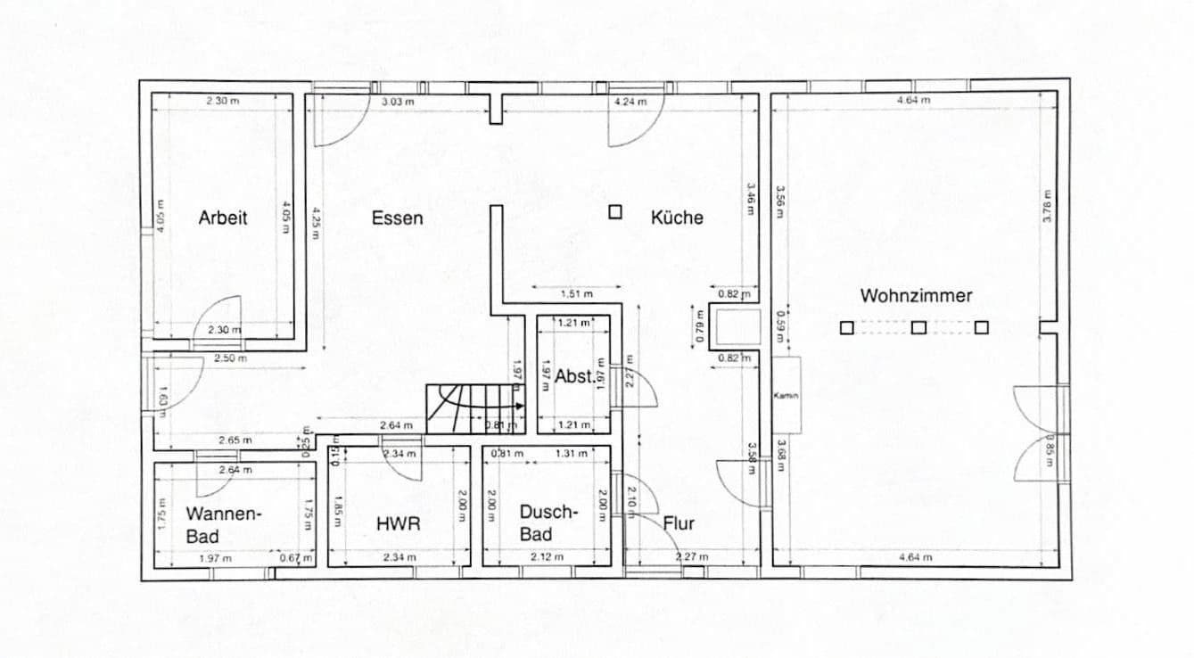
At the center of the house is its heart—the spacious living kitchen. The light-green country-style fitted kitchen was newly installed in 2018 and offers plenty of storage. From here, you can directly access the south terrace and the beautiful garden.
The kitchen features a stove with an induction field, a dishwasher, and a refrigerator. The utility room provides enough space for a freezer, washing machines, and dryers.
On the ground floor, there is a stunning wide oak plank floor, with the exception of the bathrooms and the living room (which have tiles and laminate). Throughout the ground floor, except in the living room, there is underfloor heating.
Both the shower room and the bathtub room are bright and modern.
On the west-facing gable side lies the large, cozy living room with a stove. Here, some floor-to-ceiling windows have been installed.
Another small room, currently used as a dressing room, is located on the east side.
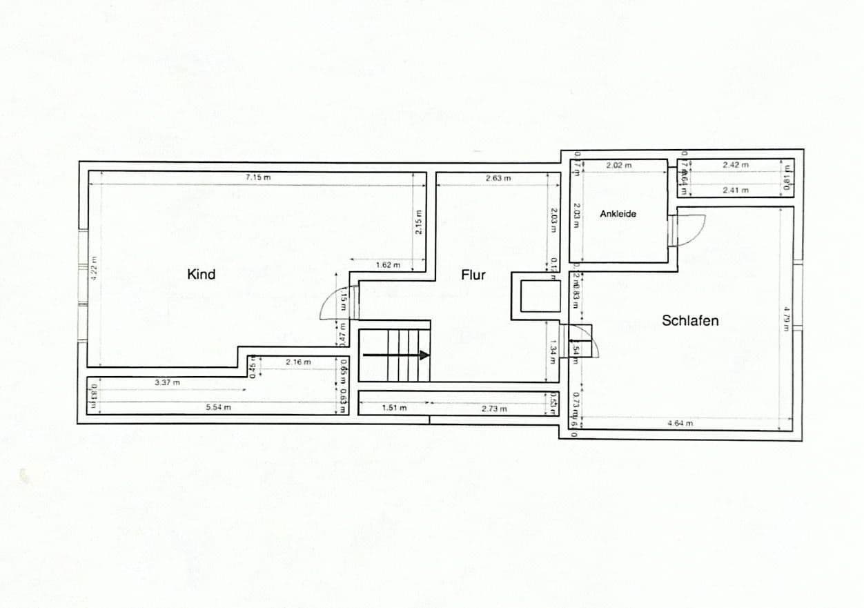
A lovely wooden staircase leads to the upper floor. Here, you will find two further spacious rooms and a large corridor, with radiators installed throughout the upper floor.
In the garden, there is a wooden sauna house that was built about 7 years ago.
The entire property is fenced. A lightning rod is installed on the roof.
At the beginning of 2023, the house was retrofitted with an alarm system. At the end of 2023, a new gas heating system was installed. At the beginning of 2024, a large new carport was built, providing 3 parking spaces, a small room for garbage bins, and a spacious room for garden tools and outdoor furniture. At the beginning of 2025, the thatched roof was replastered and repaired.
The house is not listed as a monument.
Luhmühlen is a small, rural village that belongs to the collective municipality of Salzhausen. The village center, located about 2 km away, offers many shopping opportunities, a few small shops, doctors, and pharmacies. An outdoor swimming pool is also within cycling distance.
Salzhausen features a school center with a primary school, a secondary school, and a high school.
For equestrians, Luhmühlen offers the AZL (Riding Center) and several other stables, which can also be reached by bicycle.
Property characteristics
| Age | Over 5050 years |
|---|---|
| Condition | Very good |
| Listing ID | 963960 |
| Land space | 943 m² |
| Price per unit | €3,706 / m2 |
| Available from | 15/11/2025 |
|---|---|
| Layout | 4+1 |
| Usable area | 170 m² |
| Total floors | 1 |
What does this listing have to offer?
| Parking | |
| Terrace |
| MHD 2 minutes on foot |
What you will find nearby
Still looking for the right one?
Set up a watchdog. You will receive a summary of your customized offers 1 time a day by email. With the Premium profile, you have 5 watchdogs at your fingertips and when something comes up, they notify you immediately.




















