
Flat for sale 3+1 • 75 m² without real estateFrankfurt am Main Gutleutviertel Hessen 60329
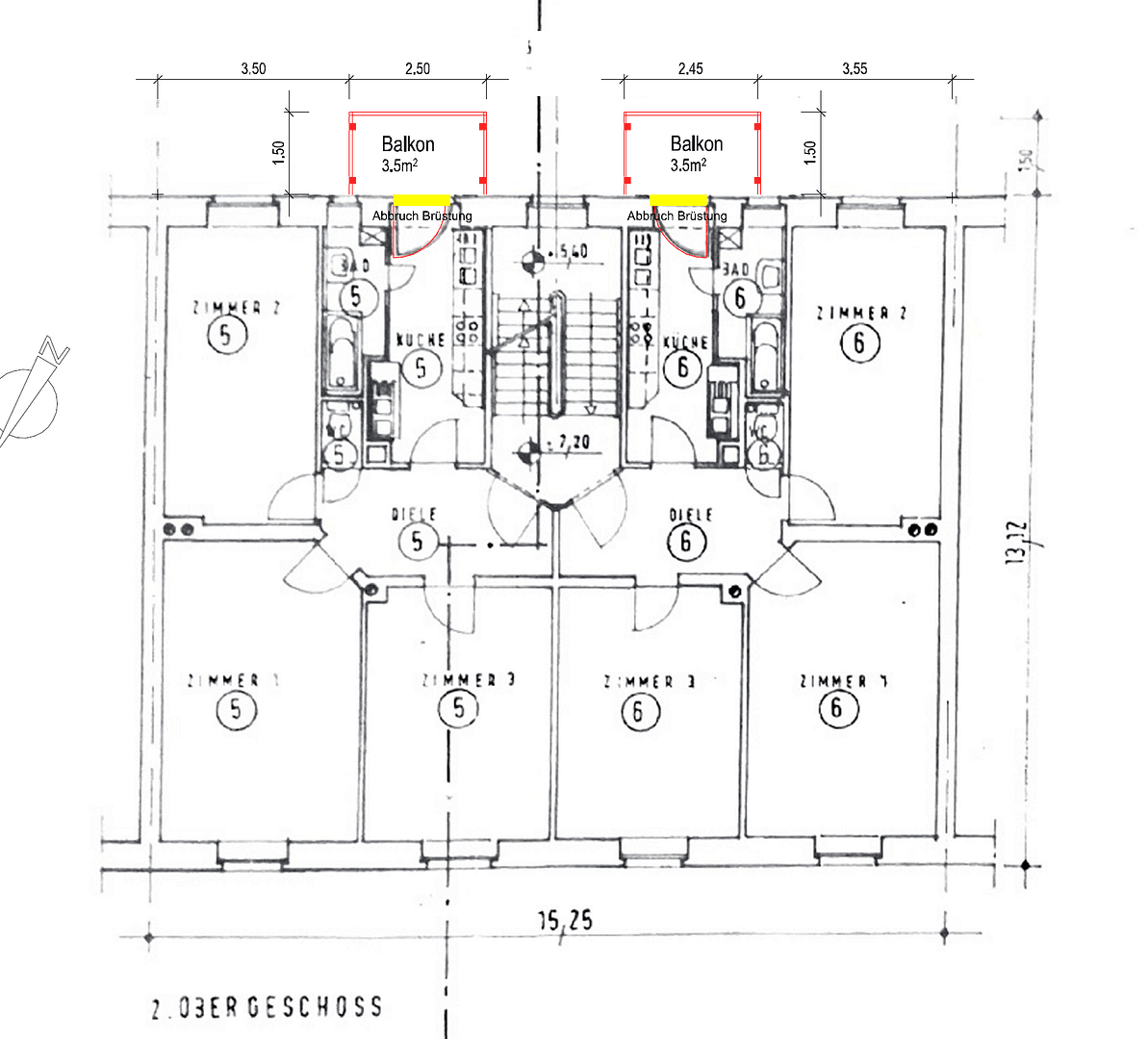
Frankfurt am Main Gutleutviertel Hessen 60329Public transport less than a minute of walkingThis bright, light-filled apartment is located on the second floor of a very well-maintained old building and impresses with its special charm. It is a very well-kept apartment featuring three lovely rooms (each approximately 20 m², accessible from the hallway), a fitted kitchen, and parquet flooring. From the kitchen, you can access a bathroom, and a separate WC is accessible from the hallway. The property is situated in a house built in 1910 and is heated by a gas individual heating system. The apartment has an energy efficiency rating of Class C – no immediate heating conversion measures are required despite the 1910 construction date. A basement/storage room is also available for your use.
Currently, the apartment is rented out at a monthly rental price of €930.00 (with a very high potential for rent increases); however, it can be made available shortly upon the buyer’s request and is suitable both for owner-occupiers and as an investment. We also sell similar (mirror image) apartments on the first and fourth floors – please contact us.
We kindly ask that only parties with secure financing get in touch, i.e. you have already held discussions with a bank or financing advisor and your creditworthiness/net income is sufficient to finance the property.
The sale is made directly by the owners and is commission-free for the buyer.
The property is located on a residential street in Frankfurt am Main’s Gutleut district, near Baseler Platz and a 5-minute walk to the Main. Due to its central location and the high number of current and upcoming development projects (for example, the new headquarters of Nestlé Germany), which contribute to the modernization and urbanization of the area around Baseler Platz, this location offers very high potential for appreciation. In the immediate vicinity, you will find several restaurants, cafés, bakeries, doctors, and a shopping center. There are also several parks and green areas, bars, bookstores, fitness centers, and fashion stores within walking distance. The main train station is 700 meters away.
• Oak strip parquet
• High ceilings typical of old buildings (3.50 m), partially featuring stucco elements
• Fitted kitchen
• Daylight bathroom (with bathtub)
• Permit for the addition of balconies is available
• Basement
• Bicycle parking space
• Gas boiler (gas individual heating system) from 2021
PLEASE, NO BROKER INQUIRIES.
Property characteristics
| Age | Over 5050 years |
|---|---|
| Layout | 3+1 |
| Listing ID | 963247 |
| Usable area | 75 m² |
| Condition | Good |
|---|---|
| Floor | 2. floor out of 6 |
| EPC | C - Economical |
| Price per unit | €6,200 / m2 |
What does this listing have to offer?
| Balcony | |
| MHD 0 minutes on foot |
| Basement |
What you will find nearby
Still looking for the right one?
Set up a watchdog. You will receive a summary of your customized offers 1 time a day by email. With the Premium profile, you have 5 watchdogs at your fingertips and when something comes up, they notify you immediately.
















