
Flat for sale 3+kk • 112 m² without real estate, Hesse
, HessePublic transport 1 minute of walking • Parking**English speakers are welcome – information material in English is available**
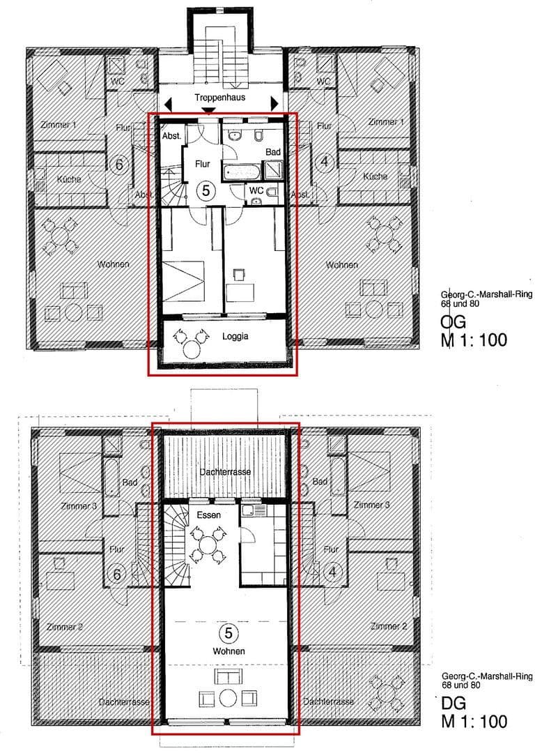
Modern, light-filled, and generously laid-out 3-4 room apartment spread over two levels. It is located on the 1st floor and the attic of a small multi-family house with only 6 apartments. In this architect-designed building, most of the interior walls are non-load-bearing. This allows you to design the floor plan to suit your wishes and, if desired, even integrate a 4th room * (At the end of the photo gallery you will find a few floor plan suggestions).
The living area is a very generous 111.40 m². The apartment comes with its own carport and a parking space. On the 1st floor, the bright apartment includes a large loggia, an entrance area, 2 separate rooms that can serve as bedrooms, offices, or children’s rooms, a bathroom and a separate guest WC, as well as a closed storage room. In the attic, where there are no sloping ceilings, you will find the spacious living room with a separate dining area, the kitchen, and the large roof terrace overlooking the nearby forest. The solid wood terrace decking on the roof terrace and the loggia was completely renewed in 2021 (including the substructure). The green strip in front of the house offers peace and a pleasant distance from the next row of houses, which especially on the roof terrace provides unique privacy.
There are plenty of public parking spaces available for visitors. In addition, the apartment comes with its own cellar room (14.8 m²) as well as a communal laundry/drying room and a separately accessible bicycle room. The favorable layout makes it ideal for couples as well as for families of up to 4 people.
* Legal note: The seller will not carry out any remodeling according to your wishes. The costs for any desired conversion measures are to be borne by the buyer and are explicitly not part of the offer. No guarantee can be given for the feasibility of the proposed remodeling options.
Oberursel in the Hochtaunus district, together with the district town of Bad Homburg, is one of the most sought-after residential areas in the Rhine-Main region. With its excellent connection to Frankfurt am Main and the airport on one hand and the nearby Taunus on the other, an optimal balance between work and leisure is ensured.
Your new home is located in the highly desirable “Camp King” residential area, one of the last self-contained housing developments in the city of Oberursel. The location offers:
+ High recreational value
+ Very good transport connections (U-Bahn station and highway junction in the immediate vicinity, close to the airport without the noise of planes)
+ A shopping center (large supermarket, post office, bank, pharmacy, optician, hairdresser, various doctors and other shops)
+ Several playgrounds
+ Kindergarten and primary school
+ A free Waldorf school and Waldorf kindergarten
+ The International School in the immediate vicinity
+ A large central park
A quiet residential area with friendly neighbors, free of through traffic, and with high recreational value. The Taunus and the forest swimming pool are easily accessible. The adjoining forest invites you to go jogging and take walks.
In all living and sleeping rooms, you will find bright real wood parquet flooring. The entrance area/hallway as well as the staircase to the upper floor feature high-quality light tiles, creating a pleasant transition. The spacious bathroom, the guest WC, and the kitchen are tiled in white marble. The bathroom features a bathtub, a separate shower cabin, and two sinks. In all living and sleeping areas, electric external blinds are installed, allowing you to control the light individually. The house boasts low energy consumption. Further details can be found in the attached energy certificate.
Property characteristics
| Age | Over 5050 years |
|---|---|
| Layout | 3+kk |
| Listing ID | 961887 |
| Price per unit | €4,911 / m2 |
| Condition | Good |
|---|---|
| Floor | 2. floor out of 2 |
| Usable area | 112 m² |
What does this listing have to offer?
| Balcony | |
| Parking | |
| Terrace |
| Basement | |
| MHD 1 minute on foot |
What you will find nearby
Still looking for the right one?
Set up a watchdog. You will receive a summary of your customized offers 1 time a day by email. With the Premium profile, you have 5 watchdogs at your fingertips and when something comes up, they notify you immediately.


























