
Office to rent • 165 m² without real estateWuppertal Elberfeld Nordrhein-Westfalen 42103
Wuppertal Elberfeld Nordrhein-Westfalen 42103Public transport 2 minutes of walking • Lift • Parking • GarageRepresentative commercial space with an elevator and underground parking in the best location of Wuppertal-Elberfeld!
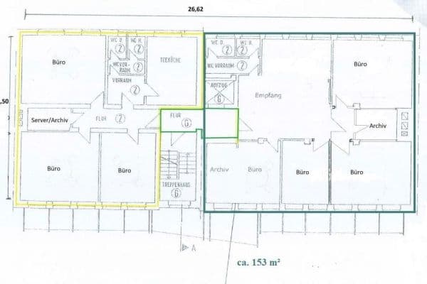
Property Description
Available for rent is a light-filled, modern office or practice space in the popular Luisenviertel, one of the most sought-after business addresses in Wuppertal.
The unit was completely modernized in 2024, including flooring, walls, ceilings, lighting, kitchen, and sanitary facilities. The well-maintained building already houses doctors, insurance companies, and service providers, creating a professional environment with optimal external appeal.
Formerly used as an ENT practice, the space offers versatile usage options – ideal for medical, consulting, or creative industries. An elevator provides barrier-free access, and an underground parking space directly in the building perfectly rounds off the offering.
Location
The property is located on Untergrünewalder Straße, right in the heart of the popular Luisenviertel of Wuppertal-Elberfeld. The district is known for its charming old building architecture, stylish gastronomy, and high pedestrian traffic – ideal for customer flow and employees.
Transportation Links:
️ Wuppertal Central Station is approximately 5 minutes away
️ Bus stops in the immediate vicinity
️ Public parking options in the area
️ Direct access to the A46
Suitable for
- Medical or therapy practice
- Law firm, tax consultant, or insurance company
- IT, marketing, or administrative office
- Creative agency or start-up
ℹ️ Additional Information
Rental price plus additional costs
Security deposit: 2 months’ cold rent
1 underground parking space included in the rental price
Elevator available
No commission
Viewings are possible at any time by appointment.
Property characteristics
| Available from | 22/11/2025 |
|---|---|
| Floor | 2. floor out of 3 |
| Land office | 165 m² |
| Condition | Very good |
|---|---|
| Listing ID | 963057 |
| Price per unit | €15 / m2 |
What does this listing have to offer?
| Garage | |
| Parking |
| Lift | |
| MHD 2 minutes on foot |
What you will find nearby
Still looking for the right one?
Set up a watchdog. You will receive a summary of your customized offers 1 time a day by email. With the Premium profile, you have 5 watchdogs at your fingertips and when something comes up, they notify you immediately.












