
Flat for sale 4+1 • 125 m² without real estateBamberg Bamberg Bayern 96050
Bamberg Bamberg Bayern 96050Public transport 9 minutes of walkingThe attractive top-floor apartment is housed in a historic building of the former Ulanen barracks. The quiet apartment is located on the 4th floor and offers an unparalleled view over Bamberg. It is oriented entirely toward the courtyard side, away from the street.
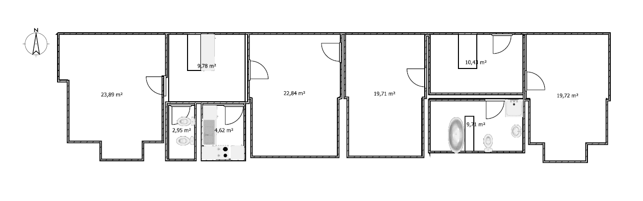
The charming apartment (approx. 125 sqm) features four rooms – two of which are separate (bed)rooms and two through-rooms located in the middle of the apartment – offering plenty of space for, for example, a home office, yoga area, or studio… all according to your taste. In addition to a large bathroom with a shower, separate bathtub, and washing machine connection, there is an extra guest WC.
About six years ago, the walls and doors were completely renovated and extensive insulation measures were carried out. At the same time, a modern kitchen was installed. New facade windows were fitted in December 2020. The windows and the high rooms with welcoming laminate floors make the apartment very bright and give it a truly special character.
The two separate large basement storage compartments that belong to the apartment provide additional storage space. In front of the building, there is the option to park bicycles.
In the Wunderburg district, you can find shops within walking distance, such as a bakery, pharmacy, or REWE, as well as the traditional breweries Keesmann and Mahrs Bräu with their beer gardens. The historic buildings of the former Ulanen barracks shape Wunderburg just as much as the Maria Hilf parish church.
Bamberg’s old town can be reached on foot within 25 minutes, and by bicycle, it takes about 7 minutes to get to the city center. It also takes barely 10 minutes by bike to reach Hainpark, and approximately the same time to get to Bambados. City bus lines stop very nearby, so you can be at the central bus station (ZOB) within a 5-minute ride. Bamberg’s main train station is reachable on foot in about fifteen minutes.
The fitted kitchen is included in the purchase price. The apartment is currently rented to reliable tenants, with monthly rental income amounting to 820 € cold rent. Viewings are possible by arrangement with the current tenants.
The apartment is heated by a central gas heating system, and the hot water is provided by decentralized electric boilers.
Sketch of the apartment – not to scale, and area figures may vary.
We kindly request serious inquiries with a full name and telephone number.
For a prompt purchase decision, it is advisable to clarify the financing framework with a bank in advance.
Property characteristics
| Age | Over 5050 years |
|---|---|
| Floor | 4. floor out of 4 |
| EPC | D - Less economical |
| Price per unit | €2,560 / m2 |
| Layout | 4+1 |
|---|---|
| Listing ID | 962903 |
| Usable area | 125 m² |
What does this listing have to offer?
| Basement |
| MHD 9 minutes on foot |
What you will find nearby
Still looking for the right one?
Set up a watchdog. You will receive a summary of your customized offers 1 time a day by email. With the Premium profile, you have 5 watchdogs at your fingertips and when something comes up, they notify you immediately.










