
Flat to rent 2 bedroom • 60 m² without real estateKeplerstr 7x Essen Holsterhausen Nordrhein-Westfalen 45147
Keplerstr 7x Essen Holsterhausen Nordrhein-Westfalen 45147Public transport 4 minutes of walkingThe modern 60 m² ground floor apartment was comprehensively renovated in 2025. Move in, unpack, and feel at home – all without any hassle. Available immediately!
• Non-smoking apartment
• Underfloor heating with individual room thermostats
• Daylight bathroom
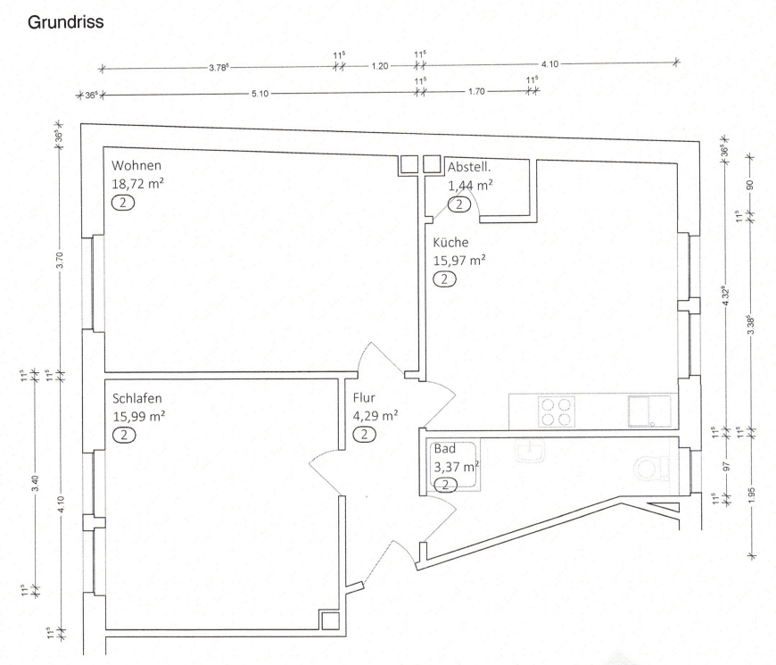
• Well-proportioned fitted kitchen with storage room
• Shared garden courtyard
• Shutters facing the street
The furnishings (fitted kitchen including appliances, cupboards, wardrobe, and lighting) are rented for an additional flat rate. The total rent is comprised of:
590 euros (basic rent)
+ 60 euros (flat rate for partial furnishing) = 650 euros
+ 200 euros (operating costs)
= 850 euros (total rent)
Essen-Holsterhausen is located about 1.5 kilometers southwest of Essen City and is a predominantly densely built and highly sought-after residential area. The apartment is situated in a well-maintained 12-unit building at Keplerstr. 7x (a traffic-calmed bicycle street) in close proximity to the University Hospital (approximately 900 m) – ideal for medical professionals. Shopping facilities and public transportation are directly in the immediate vicinity.
• Wardrobe, shoe cabinet, lighting, storage room
• Fitted kitchen with dishwasher, ceramic hob, oven, refrigerator with freezer compartment, microwave
• High-quality tiled daylight bathroom with shower, towel radiator, and mirrored cabinet
• Underfloor heating
• Washing machine hookup available in the basement
• Spacious basement storage room
The apartment is ideally suited for one, maximum two persons. We are looking for an open and easy-going tenant. Please briefly tell us a bit about yourself in your inquiry. A rental period of at least 3 years is preferred. The following documents are required:
• Tenant self-disclosure
• Proof of salary payments for the last three months
• Submission of a current credit (Schufa) report
• If applicable, a joint and several liability guaranty
I assume no liability or guarantee for the completeness and accuracy of the information and statements made in this advertisement. Changes and errors are reserved.
Property characteristics
| Age | Over 5050 years |
|---|---|
| Condition | After reconstruction |
| Listing ID | 962890 |
| Usable area | 60 m² |
| Available from | 11/11/2025 |
|---|---|
| Layout | 2 bedroom |
| EPC | E - Wasteful |
| Price per unit | €10 / m2 |
What does this listing have to offer?
| Basement |
| MHD 4 minutes on foot |
What you will find nearby
Still looking for the right one?
Set up a watchdog. You will receive a summary of your customized offers 1 time a day by email. With the Premium profile, you have 5 watchdogs at your fingertips and when something comes up, they notify you immediately.






















