
Flat to rent 2+kk • 62 m² without real estate, North Rhine-Westphalia
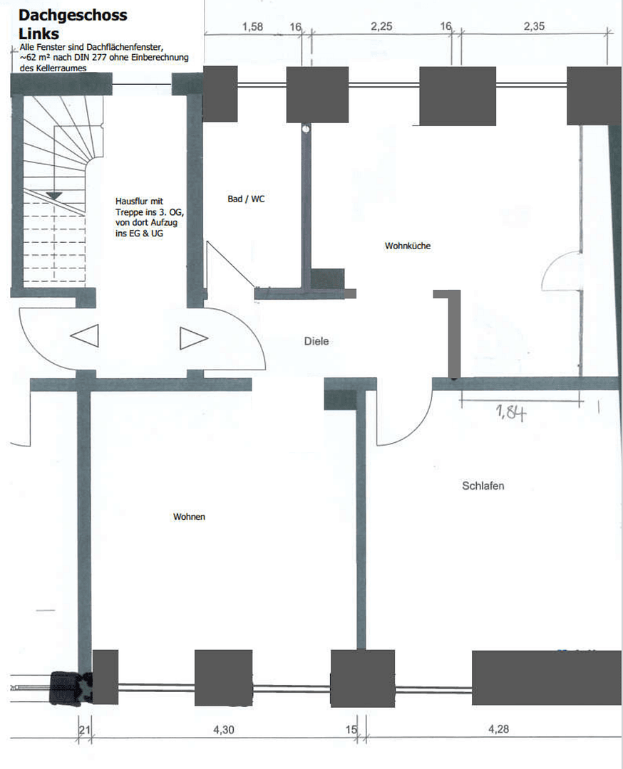
, North Rhine-WestphaliaPublic transport 1 minute of walking • LiftThis charming, sunny top-floor apartment in the heart of the city impresses with its living comfort and central location – 2 rooms, a shower room, and a living kitchen beautifully arranged on the top floor.
A few years ago it was completely renovated and is in very well-maintained condition, so you can truly enjoy life here. The bright living kitchen offers plenty of space for cooking and dining, for example, enjoying breakfast with a view over the city’s rooftops. The fitted kitchen is available for takeover at a negotiable price.
The modern shower room is designed in a bright style and equipped with high-quality fixtures. The luminous living room provides a retreat for relaxed evenings. The separate bedroom offers ample space for rest and relaxation, with plenty of room for a large wardrobe.
Practical features include the storage room within the apartment and an additional basement storage locker – plenty of storage space!
Whether you’re looking for a single apartment, a couple’s home, or a city refuge, this property offers a comfortable residence right in the middle of urban life.
The apartment is located on the top floor (4th floor). An elevator takes you up to the 3rd floor, and from there a charming wooden staircase leads to the quiet top floor – your new cozy nest.
Please note: The apartment is not suitable for a shared-flat arrangement.
Situated directly in the city center of Heiligenhaus at Rathausplatz – you couldn’t be more in the midst of things! Just a short walk to everything you need daily: within 5 minutes you’ll reach 3 supermarkets, drugstores, pharmacies, doctors, clothing stores, a savings bank, etc.
Cafés and restaurants invite you to linger, and the panoramic trail is also reachable in less than 5 minutes. By bike, you’re in the greenery or the surrounding towns in just a few minutes – about 15 minutes to Kettwig or Hösel and 10 minutes to Velbert.
For commuters and urban explorers: right in front of the building, the bus stop offers connections to the surrounding area, the express bus to/from Essen, and the Hösel S-Bahn station (S6).
Directly outside your door, you can stroll through the weekly market on Wednesdays and Saturdays or visit the evening market for a glass of wine on the first Thursday of each month. If you appreciate classical music or opera, you can catch the Cultural Office bus several times a year to attend concerts and opera performances in Essen – every event in the city is just a stone’s throw away.
And the best part? Thanks to its location on the top floor, you still enjoy peace and quiet when you need it.
The apartment was completely renovated in 2020. The bathroom, floors, doors, and roof windows are all new. Inside, you’ll find high-quality laminate flooring and a white-tiled bathroom with plenty of shelving.
The fitted kitchen is 3 years old and can be taken over from the previous tenant by arrangement, including the stove, oven, extractor, and the possibility of installing a dishwasher.
A storage room in the apartment and a basement storage locker offer plenty of storage space. (Please note: there is no balcony.)
The multi-family house is very well maintained and has also been renovated, with a new elevator and central heating.
Property characteristics
| Age | Over 5050 years |
|---|---|
| Condition | After reconstruction |
| Floor | 4. floor out of 1 |
| EPC | C - Economical |
| Price per unit | €10 / m2 |
| Available from | 01/02/2026 |
|---|---|
| Layout | 2+kk |
| Listing ID | 961967 |
| Usable area | 62 m² |
What does this listing have to offer?
| Basement | |
| MHD 1 minute on foot |
| Lift |
What you will find nearby
Still looking for the right one?
Set up a watchdog. You will receive a summary of your customized offers 1 time a day by email. With the Premium profile, you have 5 watchdogs at your fingertips and when something comes up, they notify you immediately.






















