
Office to rent • 240 m² without real estateBuckower Damm 235 Berlin Buckow Berlin 12349
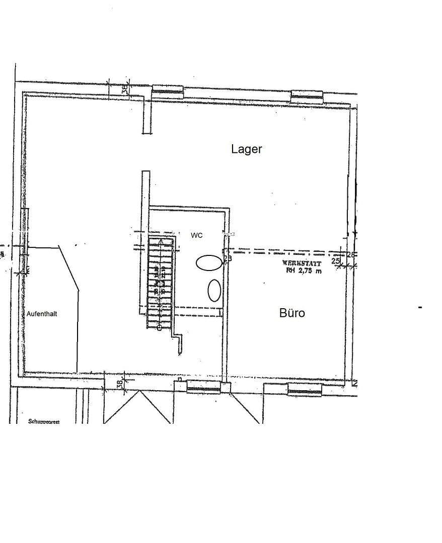
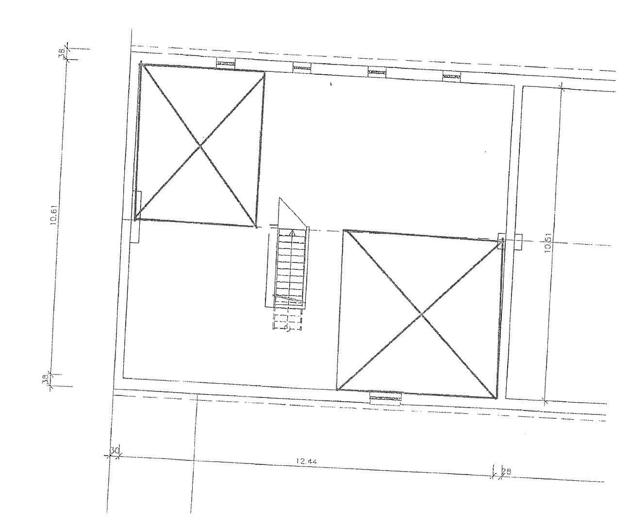
Buckower Damm 235 Berlin Buckow Berlin 12349Public transport 1 minute of walking • ParkingFor rent in the courtyard of the property Buckower Damm 235 is a commercial unit featuring an office, a common room, and warehouse space on the ground floor, approximately 120 m² in size. The attic, which can be accessed via a staircase within the ground floor area, is unheated and has a size of about 120 m², and can be used for storage. Additionally, a carpentry/kitchen studio is located on the premises.
The commercial unit is situated near the intersection of Buckower Damm and Johannisthaler Chaussee and is well connected by several bus lines. The nearest motorway on-ramps (Gradestr. as well as Johannisthaler Chaussee) are approximately 4 km away.
Property characteristics
| Available from | 01/01/2026 |
|---|---|
| Listing ID | 961984 |
| Price per unit | €7 / m2 |
| Condition | Good |
|---|---|
| Land office | 240 m² |
What does this listing have to offer?
| Parking |
| MHD 1 minute on foot |
What you will find nearby
Still looking for the right one?
Set up a watchdog. You will receive a summary of your customized offers 1 time a day by email. With the Premium profile, you have 5 watchdogs at your fingertips and when something comes up, they notify you immediately.







