
Flat to rent 3+1 • 68 m² without real estateNeubiberg Neubiberg Bayern 85579
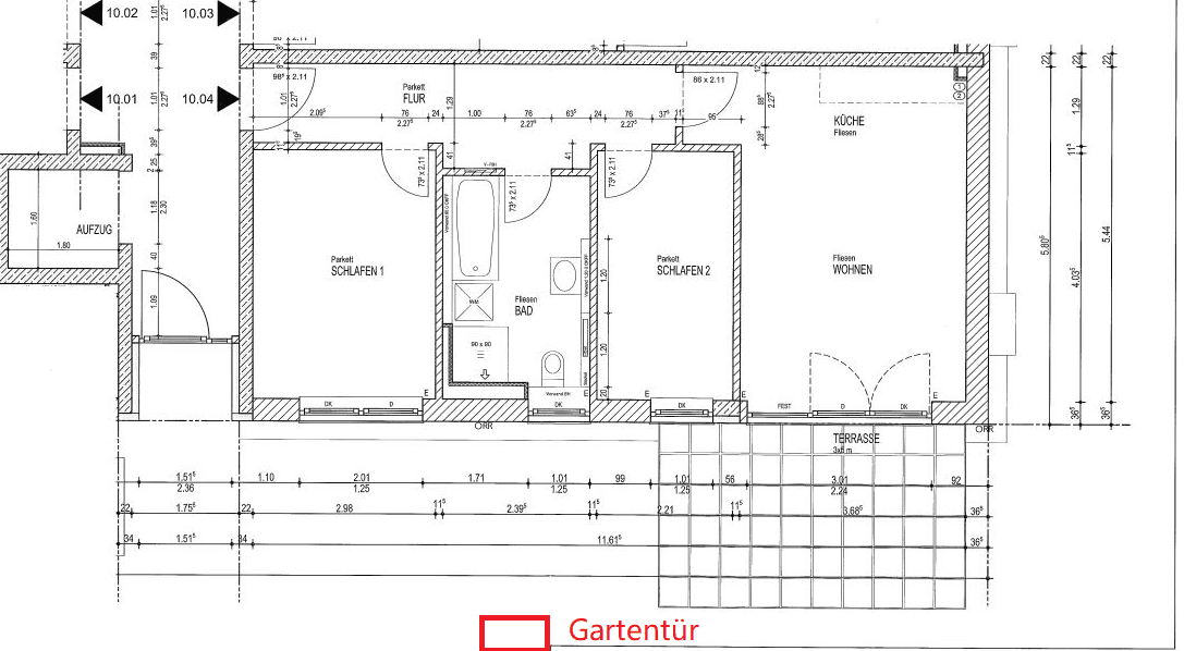
Neubiberg Neubiberg Bayern 85579Public transport 3 minutes of walking • GarageThis attractive, light-filled 3-room ground floor apartment with about 68 m² of living space is located in a very well-maintained multi-family building built in 2018. All rooms face south, so you will benefit from plenty of sunlight throughout the day, and the rooms will glow in bright, pleasant light.
A special highlight is the generous private garden (special right of use, about 75 m²) with a sunny terrace. Here, you can enjoy relaxing hours outdoors – ideal for families, couples, or anyone who appreciates being close to nature.
Equipment highlights:
• Underfloor heating in all rooms for a pleasant living climate
• Electric shutters on all windows
• Fitted kitchen with dishwasher and refrigerator
• Private basement storage room for extra storage
• Underground parking space included – charging station for electric vehicles possible
The apartment will be available from January 1, 2026.
Neubiberg, a popular suburb in the southeast of Munich, offers excellent infrastructure and quality of life.
The apartment is centrally located in Neubiberg. Just about 300 meters away, you will find the nearest S-Bahn station as well as various shopping opportunities such as EDEKA and REWE – ideal for everyday needs. Schools, kindergartens, cafés, and green spaces are also easily accessible.
The existing furniture can be taken over for an attractive price, giving you the opportunity to immediately use the apartment fully furnished and move in right away.
Property characteristics
| Age | Over 5050 years |
|---|---|
| Condition | Very good |
| Listing ID | 961529 |
| Usable area | 68 m² |
| Available from | 01/01/2026 |
|---|---|
| Layout | 3+1 |
| EPC | B - Very economical |
| Price per unit | €23 / m2 |
What does this listing have to offer?
| Basement | |
| MHD 3 minutes on foot |
| Garage |
What you will find nearby
Still looking for the right one?
Set up a watchdog. You will receive a summary of your customized offers 1 time a day by email. With the Premium profile, you have 5 watchdogs at your fingertips and when something comes up, they notify you immediately.
















