
Flat for sale 3+kk • 70 m² without real estateŘehořova, Prague - Žižkov
Nabízíme nový designový byt 3+kk po kompletní rekonstrukci v ulici Řehořova , Praha 3. Byt o ploše 70 m² je čerstvě po rekonstrukci (dokončeno 11/2025). Byt se nachází v krásné historické cihlové budově v 3. nadzemním podlaží ze 4. Byt je světlý a vzdušný. Historický dům je v dobrém stavu: proběhla výměna oken do vnitrobloku, stoupačky, vchodové dveře na čip, vymalované chodby, ostatní části domu v dobrém stavu.
K tomu sklepní kóje o velikosti 1,5 m² v suterénu.
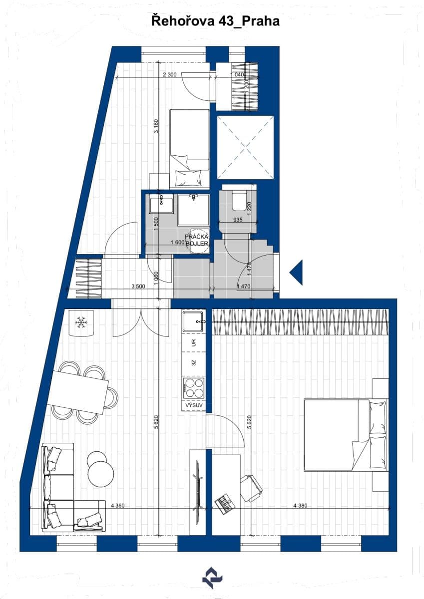
Dispozice bytu:
• obývací pokoj s přípravou pro kuchyňskou linku
• pokoj 1.
• pokoj 2. s komorou
• koupelna se sprchovým koutem, umyvadlem a bojlerem
• samostatné WC
• chodba s prostorem na vestavěnou skříň
• sklepní kóje
Poplatky týkající se bytu jsou nyní 2.500 Kč / měsíčně (voda, fond oprav, atd.) + poplatky ze elektřinu.
Rekonstrukce bytu zahrnovala:
• kompletní výměnu elektroinstalačních rozvodů
• kompletní výměnu rozvodů vody a odpadu
• topení el. podlahové
• kompletní úprava povrchů stěn (stěrkování, malování)
• nové dřevěné parkety na podlahách v pokojích
• podlahové obvodové lišty
• dveře interiérové nové včetně obložkových zárubní
• renovované vnitřní dvoukřídlé dveře
• renovovaná okna
• kompletní nová koupelna a toaleta
• dlažba BETONICO bílo šedá 60x60 rekt.
• obklad BETONICO bílo šedá 60x60 rekt.
• umyvadlo Laufen pro S 60 cm se skříňkou
• zrcadlo 60 x 80 cm s LED podsvícením
• nové WC závěsné
• nový sprchový kout, ruční sprcha Vario Eco
• SDK strop s bodovými světly na chodbě, WC, koupelně
• nová světla s dálkovým tlumením v pokojích
• před-příprava vývodů pro kuchyňskou linku
• nové vchodové dveře
Kuchyňskou linku si můžete objednat i přes naší spolupracující dodavatele - bližší informace u makléře.
Dům stojí ve vynikající lokalitě s výbornou infrastrukturou a dostupností. V okolí naleznete veškerou občanskou vybavenost. Perfektní dopravní dostupnost k dispozici autobusy, tramvaje 4. min., stanice metro Florenc 1km - 10 min chůze od bytu.
Property characteristics
| Available from | 03/11/2025 | 
|---|---|
| Building construction | Brick | 
| Fully furnished | Unfurnished | 
| Listing ID | 961414 | 
| EPC | F - Very uneconomical | 
| Usable area | 70 m² | 
| Condition | After reconstruction | 
|---|---|
| Layout | 3+kk | 
| Floor | 3. floor out of 4 | 
| Ownership | Personal | 
| Location | Quiet area | 
| Price per unit | CZK 164,286 / m2 | 
Are you choosing a apartment?
Make sure you have all the important information!
What does this listing have to offer?
| Basement: 1.5 m² | 
What you will find nearby
Still looking for the right one?
Set up a watchdog. You will receive a summary of your customized offers 1 time a day by email. With the Premium profile, you have 5 watchdogs at your fingertips and when something comes up, they notify you immediately.






















