
House for sale 6+1 • 220 m² without real estate, Baden-Württemberg
This detached single-family house in a quiet area of Muggensturm impresses with its spacious layout, modern equipment, and lovingly designed details – ideal for families or multi-generational living.
Key Data:
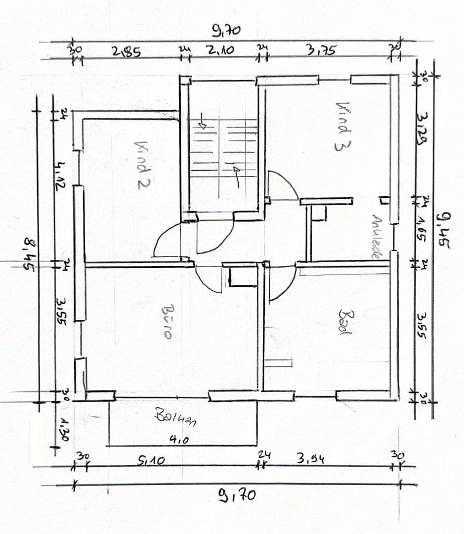
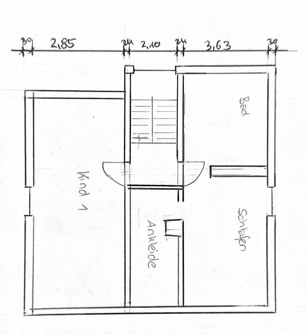
• Living area: approx. 220 m²
• Plot area: approx. 689 m²
• Rooms: 6
• Bathrooms: 2 + separate bathtub & WC in the bedroom
• Fully basement-equipped with sauna
• Construction type: detached
Features & Highlights:
• Underfloor heating in the living room and bathroom
• New pellet heating system including new radiators
• Completely modernized attic with high-quality insulation and large, electric roof windows
• New, modern fitted kitchen
• Recently painted facade
• Balcony power plant for energy savings
• Expanded double garage (approx. 50 m²) – can be used as a party room, including a pool table
• High-quality vinyl flooring in the hallway & upper floor
• Parquet flooring in the bedrooms, children's rooms & kitchen
• Newly landscaped garden – perfect for families with children, including a play tower and sandbox
Special Features:
The house is separable – thanks to the separate staircase, the floors can ideally be used as a multi-generational home or for partial rental.
Enjoy modern residential quality in a quiet, family-friendly location with plenty of space, comfort, and sustainable technology.
The house is located in a quiet and desirable residential area of Muggensturm, a charming community in the Rastatt district between Karlsruhe and Baden-Baden. Muggensturm offers the perfect combination of rural idyll and excellent access to urban infrastructure.
The town has very good transport connections:
• Via the B3 and the A5 motorway, Karlsruhe, Rastatt, and Baden-Baden can be reached within minutes.
• Muggensturm station offers regular connections to Karlsruhe and Rastatt.
• A bus service additionally ensures mobility within the town and to the neighboring communities.
Within the town itself, all the important facilities for daily needs can be found:
• Supermarkets, bakeries, and pharmacies
• Doctors, kindergartens, and a primary school
• Sports clubs, outdoor swimming pool, playgrounds, and numerous leisure opportunities
The surroundings are characterized by plenty of greenery, fields, and meadows – ideal for walks, cycling tours, and family activities. Despite the quiet location, the town center with shopping opportunities and restaurants is quickly accessible.
Muggensturm is known for its family-friendly atmosphere, active community life, and high quality of life – a place where you quickly feel at home.
Property characteristics
| Age | Over 5050 years |
|---|---|
| Condition | Good |
| Listing ID | 961221 |
| Usable area | 220 m² |
| Total floors | 3 |
| Available from | 03/11/2025 |
|---|---|
| Layout | 6+1 |
| EPC | G - Extremely uneconomical |
| Land space | 689 m² |
| Price per unit | €3,632 / m2 |
What does this listing have to offer?
| Balcony | |
| Garage | |
| MHD 5 minutes on foot |
| Basement | |
| Parking | |
| Terrace |
What you will find nearby
Still looking for the right one?
Set up a watchdog. You will receive a summary of your customized offers 1 time a day by email. With the Premium profile, you have 5 watchdogs at your fingertips and when something comes up, they notify you immediately.





















