
House for sale 4+1 • 94 m² without real estateBraunschweig Stöckheim Niedersachsen 38124
This charming terraced mid-town house in Braunschweig-Stöckheim offers modern living on approximately 94 m² of living space in a quiet and sought-after location. Built in 1959, the house was completely renovated in 2025 with a full gut renovation and upgraded energetically to the latest standards.
During the renovation, the old gas heating system was replaced by an efficient heat pump, thereby raising the energy label from H to B. All windows, doors, pipelines, and the electrical wiring were renewed, and the bathroom was redesigned in a modern style. The walls have been skillfully finished and smoothed, creating a contemporary living ambiance.
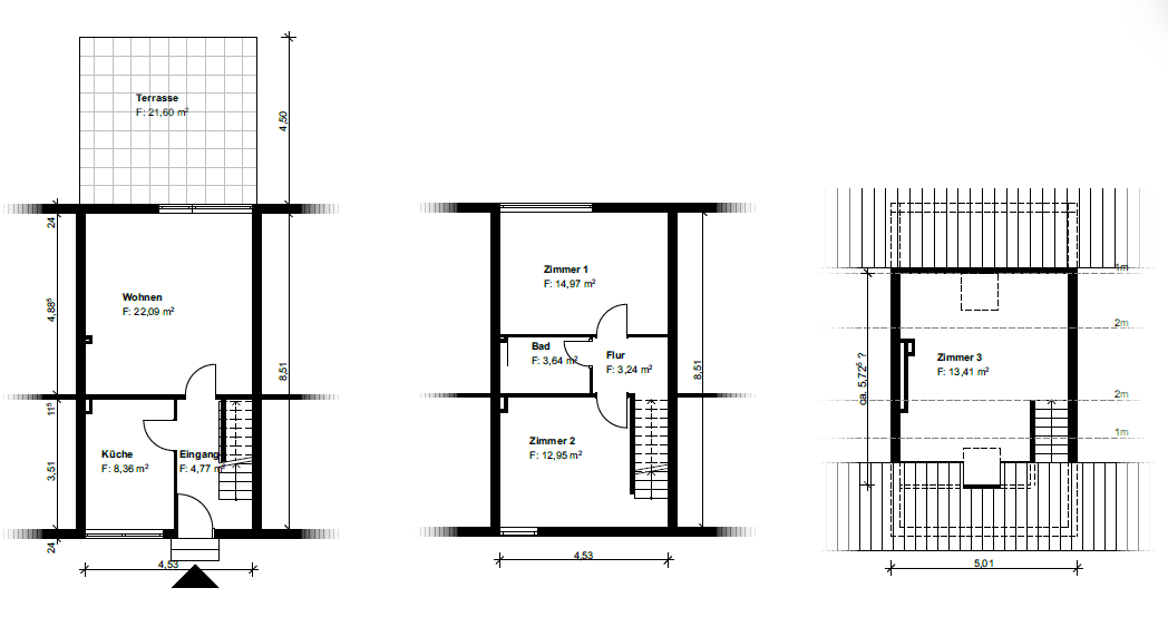
The new terrace extension is particularly noteworthy, featuring a large sliding element that floods the living area with light and provides direct access to the garden. Fireplace connections in both the living room and the attic offer additional design options.
The exterior area also shines with new luster: the front garden has been repaved, the entrance staircase and front door have been replaced, the exterior walls have been insulated and plastered, and the roof refurbished. The existing greenery creates a pleasant atmosphere and makes the garden an ideal retreat with open potential for design.
The property is sold without a kitchen and furniture, offering ample space for individual design. A garage can be acquired as an option (price on request).
With its combination of modern technology, high energy efficiency, and a good spatial layout, this house is perfect for young families and couples who value a sustainable and comfortable home.
The terraced house is located in Braunschweig-Stöckheim, one of the most popular and family-friendly districts in the southern part of Braunschweig. The location combines peaceful living in a green environment with excellent infrastructure.
All everyday amenities are in close proximity: supermarkets, doctors, pharmacies, and restaurants are all quickly accessible. Especially attractive for families is the wide range of kindergartens, elementary schools, and secondary schools available directly in the district.
The public transportation connections are very good – the Braunschweig city center can be reached in a short time by tram and bus. The highways A39 and A36 are also quickly accessible, offering optimal mobility for commuters.
Stöckheim also offers a high recreational value: numerous green spaces, sports clubs, proximity to the Oker River, as well as cycling and walking paths make the district an attractive place to live.
Ideal for young families or couples who value quality, energy efficiency, and a cohesive living environment.
Highlights of the Renovation:
- Energetic upgrade through insulation and a heat pump to energy class B
- Completely renewed windows & doors
- Modernized electrical system & bathrooms; all house pipelines including heating lines renewed
- High-quality wall finishes
- New terrace extension with a large, level-access sliding element to the garden
- Option for fireplace connections in the living room or in the attic
Exterior:
- Front garden: newly laid paving
- Entrance staircase renewed, new front door
- Exterior walls insulated & plastered, roof slates painted
- Garden landscaped and ready for immediate use
Property characteristics
| Age | Over 5050 years | 
|---|---|
| Condition | After reconstruction | 
| Listing ID | 960426 | 
| Usable area | 94 m² | 
| Total floors | 1 | 
| Available from | 31/10/2025 | 
|---|---|
| Layout | 4+1 | 
| EPC | B - Very economical | 
| Land space | 185 m² | 
| Price per unit | €3,713 / m2 | 
What does this listing have to offer?
| Basement | |
| Parking | |
| Terrace | 
| Garage | |
| MHD 1 minute on foot | 
What you will find nearby
Still looking for the right one?
Set up a watchdog. You will receive a summary of your customized offers 1 time a day by email. With the Premium profile, you have 5 watchdogs at your fingertips and when something comes up, they notify you immediately.

























