

Flat to rent 2 bedroom • 55 m² without real estateHamburg Langenhorn Hamburg 22419
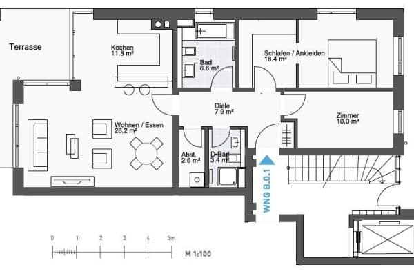
Hamburg Langenhorn Hamburg 22419Public transport 7 minutes of walking • LiftThis modern, fully furnished 2-room apartment is located just a one-minute walk from the Ochsenzoll U-Bahn station. The apartment offers approximately 55 m² of comfortable living space with high-quality fittings, making it ideal for professionals, couples, or expats looking for a ready-to-move-in home in Hamburg.
The open-plan living and dining area is inviting, featuring floor-to-ceiling windows and access to a spacious balcony.
The fitted kitchen comes fully equipped – including a dishwasher, refrigerator, stove, oven, microwave, dishes, and cooking utensils.
The bedroom offers a cozy double bed and a large wardrobe with plenty of storage space.
The modern bathroom features a step-free shower and high-quality sanitary installations.
A notable comfort feature is the underfloor heating in all rooms, which creates a pleasant living climate. A washing machine is also provided in the apartment.
The apartment is rented fully furnished and completely equipped – simply move in and feel at home. It is located in a highly sought-after residential area in Hamburg-Langenhorn, just a one-minute walk from the Ochsenzoll U-Bahn station (U1). From here, you can reach central Hamburg in about 25 minutes and Hamburg Airport (HAM) in roughly 10 minutes – ideal for commuters and travelers.
The immediate surroundings offer excellent infrastructure:
Several supermarkets (Edeka, Aldi, Rewe), bakeries, pharmacies, and doctors are conveniently reachable on foot. Similarly, cafés, restaurants, and a gym are located very close by.
Despite its central transport connections, the apartment is situated in a quiet, green residential area with a high quality of life. The nearby Langenhorn market provides additional shopping opportunities and weekly markets. For outdoor relaxation, the Langenhorner Gardens, the Raakmoor nature reserve, and various walking and jogging paths in the area offer plenty of opportunities to enjoy nature.
By car, the A7 (Schnelsen-Nord exit) is reachable within minutes, making destinations outside Hamburg quickly and conveniently accessible.
Overall, the location impresses with the perfect combination of peaceful living, urban proximity, and excellent transport connections.
Property characteristics
| Age | Over 5050 years |
|---|---|
| Layout | 2 bedroom |
| Usable area | 55 m² |
| Condition | Very good |
|---|---|
| Listing ID | 959640 |
| Price per unit | €33 / m2 |
What does this listing have to offer?
| Balcony | |
| MHD 7 minutes on foot |
| Lift |
What you will find nearby
Still looking for the right one?
Set up a watchdog. You will receive a summary of your customized offers 1 time a day by email. With the Premium profile, you have 5 watchdogs at your fingertips and when something comes up, they notify you immediately.




