
House for sale • 400 m² without real estate, Hesse
, HessePublic transport 1 minute of walking • Lift • ParkingThis well-maintained multi-family house, built in 1998, impresses with its attractive location in the heart of Langen, right in the (pedestrian) center. All everyday shops, restaurants, cafés, and public transport are within walking distance.
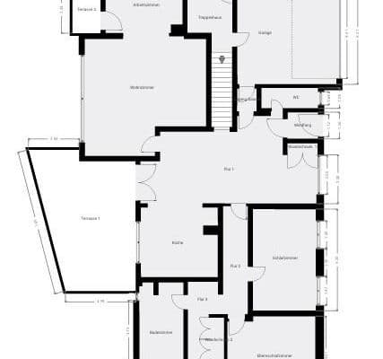
The building offers a total of approximately 275 m² of living space and about 130 m² of commercial space on the ground and first floors. This means the house comprises four residential units and one commercial unit (restaurant). The property is fully rented out, making it a solid investment. The annual net cold rent amounts to approximately €54,240.
The multi-family house consists of two spacious 4-room apartments with around 85 m² of living space each and two well-designed 2-room apartments with approximately 52–54 m² of living space each. All apartments are fitted with tiled floors and underfloor heating. The living areas are bright and modern, featuring window fronts facing south. The commercial unit (restaurant) on the ground and first floors offers about 130 m² of usable space. Spread over two floors, it includes dining areas, two kitchens, toilets, and a break room. A sunny outdoor terrace rounds off the offering.
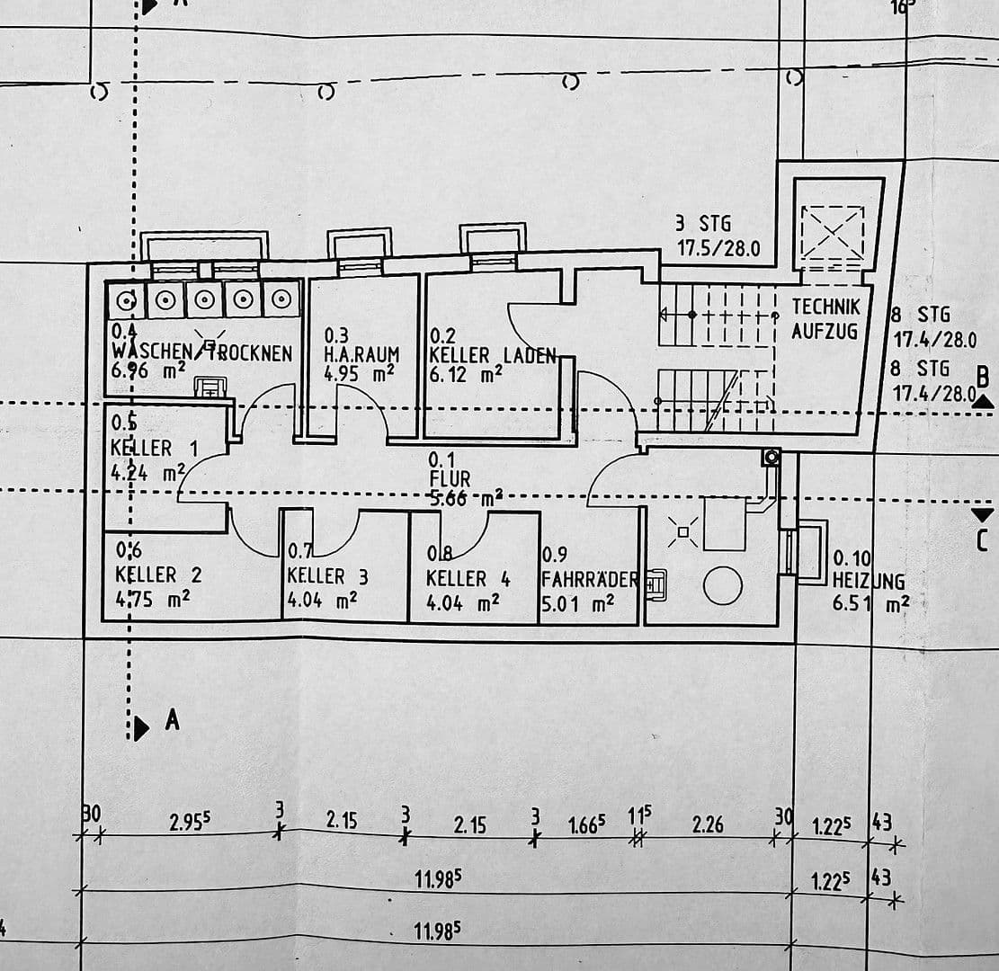
Each residential unit comes with its own basement storage compartment, as well as outdoor parking spaces right by the house.
- Central downtown location in Langen
- Right in the (pedestrian) center
- All shopping options, doctors, schools, and dining establishments in the immediate vicinity
- Excellent transport connections to Frankfurt, Darmstadt, and Offenbach
- Elevator – all floors easily accessible (half-floor access)
- Underfloor heating in all units
- Gas central heating (built in 2005)
- Modern, bright layouts – ideal for singles, couples, and families
- Well-maintained overall condition
Property characteristics
| Age | Over 5050 years |
|---|---|
| Listing ID | 958019 |
| Usable area | 400 m² |
| Total floors | 5 |
| Condition | Good |
|---|---|
| EPC | E - Wasteful |
| Land space | 259 m² |
| Price per unit | €3,375 / m2 |
What does this listing have to offer?
| Basement | |
| Parking |
| Lift | |
| MHD 1 minute on foot |
What you will find nearby
Still looking for the right one?
Set up a watchdog. You will receive a summary of your customized offers 1 time a day by email. With the Premium profile, you have 5 watchdogs at your fingertips and when something comes up, they notify you immediately.






























