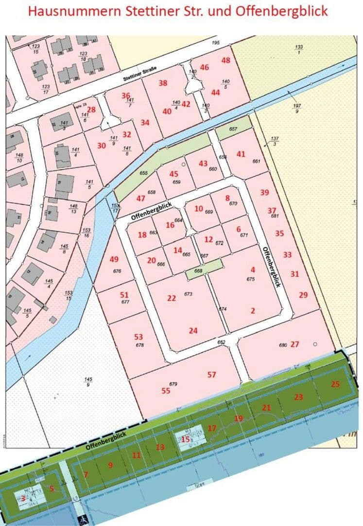
Plot for sale • 496 m² without real estateStettiner Straße 48, , Hesse
Stettiner Straße 48, , HessePublic transport 1 minute of walkingThe offered plots, with sizes ranging from 481m² to 751m², are located in WA1 of the new development area Offenbergblick, B-Plan 67, Sudheimer Feld Ost in 34369 Hofgeismar, Kernstadt.
GRZ: 0.4
GFZ: 0.8
Building height: maximum overall 9.0m
2 full floors plus an attic floor
open construction style
The sale of the plot is handled commission-free through k2s Projektentwicklungs GmbH.
The new development area Offenbergblick is situated in a location that is both central and close to nature in the beautiful southern part of Hofgeismar, near the Albert-Schweitzer School! Diverse shopping, service, leisure, and dining options are nearby, as well as an excellently equipped building and DIY store. Various kindergartens, primary schools, a comprehensive school, a renowned high school, as well as vocational and special education schools, are also located in Hofgeismar.
The historic pedestrian zone of the timber-framed town of Hofgeismar, reachable on foot in 13 minutes, completes this offer for both daily needs and a variety of street and city festivals. Hofgeismar also provides comprehensive medical care through various doctor’s offices, the district hospital, several daycares, and physiotherapy practices. Public transportation is within walking distance, and thanks to the Regiotram at the nearby train station, excellent local public transport connections are ensured in the direction of both Kassel and Warburg.
Property characteristics
| Listing ID | 957752 |
|---|---|
| Price per unit | €250 / m2 |
| Land space | 496 m² |
|---|
What does this listing have to offer?
| MHD 1 minute on foot |
What you will find nearby
Still looking for the right one?
Set up a watchdog. You will receive a summary of your customized offers 1 time a day by email. With the Premium profile, you have 5 watchdogs at your fingertips and when something comes up, they notify you immediately.








































