
House for sale 4+1 • 94 m² without real estateBraunschweig Stöckheim Niedersachsen 38124
Braunschweig Stöckheim Niedersachsen 38124Public transport 1 minute of walking • Parking • GarageThis charming terraced mid-terrace house in Braunschweig-Stöckheim offers modern living on approximately 94 m² of living space in a quiet and desirable location. The house, built in 1959, was extensively renovated in 2025 and brought up to the latest energy standards.
During the renovation, the old gas heating system was replaced by an efficient heat pump, which allowed the energy label to be upgraded from H to B. All windows, doors, pipes, and the electrical system were renewed, and the bathroom was also modernly redesigned. The walls have been skillfully finished and sanded to create a contemporary living atmosphere.
Particularly noteworthy is the new terrace extension with a large, level sliding element that fills the living area with light and provides direct access to the garden. Chimney connections in the living room and in the attic offer additional design possibilities.
The exterior has also been refreshed: the front garden has been newly paved, the entrance staircase and front door have been replaced, the outer walls have been insulated and plastered, and the roof refurbished. The existing landscaping creates a pleasant atmosphere, making the garden an ideal retreat with open design options.
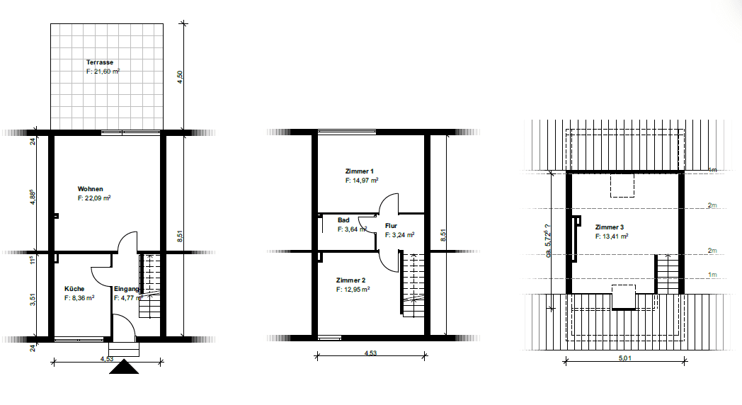
The property is sold without a kitchen and furnishings, offering plenty of scope for personal design. An optional garage can be acquired (price upon request).
Combining modern technology, high energy efficiency, and a well-conceived layout, this house is perfect for young families and couples who value a sustainable and comfortable home. The terraced house is located in Braunschweig-Stöckheim, one of the most popular and family-friendly districts in southern Braunschweig. The location offers peaceful living in a green environment along with excellent infrastructure.
All everyday facilities are in close proximity: supermarkets, doctors, pharmacies, and eateries can be reached quickly. Particularly attractive for families is the wide range of kindergartens, primary schools, and secondary schools right in the district.
Public transport connections are excellent – with tram and bus, you can reach Braunschweig city center in a short time. The highways A39 and A36 are also quickly accessible, providing optimal mobility for commuters.
Stöckheim also offers excellent recreational opportunities: numerous green spaces, sports clubs, proximity to the Oker River, as well as cycling and walking paths make the district an appealing place to live.
Ideal for young families or couples who appreciate quality, energy efficiency, and a well-integrated living environment.
Renovation highlights:
- Energy upgrade through insulation and a heat pump to energy class B
- Windows and doors completely renewed
- Electrical system and bathrooms modernized; all pipes in the house, including heating pipes, replaced
- High-quality wall finishes
- New terrace extension with a large, level sliding element to the garden
- Option for chimney connections in the living room or in the attic
Exterior:
- Front garden: newly laid paving area
- Entrance staircase renewed, new front door
- Exterior walls insulated and plastered, roof tiles painted
- Garden landscaped and ready for immediate use
Property characteristics
| Age | Over 5050 years |
|---|---|
| Condition | After reconstruction |
| Listing ID | 956779 |
| Usable area | 94 m² |
| Total floors | 1 |
| Available from | 26/10/2025 |
|---|---|
| Layout | 4+1 |
| EPC | B - Very economical |
| Land space | 185 m² |
| Price per unit | €3,713 / m2 |
What does this listing have to offer?
| Basement | |
| Parking | |
| Terrace |
| Garage | |
| MHD 1 minute on foot |
What you will find nearby
Still looking for the right one?
Set up a watchdog. You will receive a summary of your customized offers 1 time a day by email. With the Premium profile, you have 5 watchdogs at your fingertips and when something comes up, they notify you immediately.

























